Etagenwohnung in Niebüll

Garage/­Stellplatz

VERMIETUNG: Wohnen im Zentrum von Niebüll - hochwertige 2-Zimmer-Wohnung

Anfragen bisher

Premium

Meine Chancen

Premium

Fairer Preis

Premium

749 €

Kaltmiete

75 m²

2 Zi.

1. OG

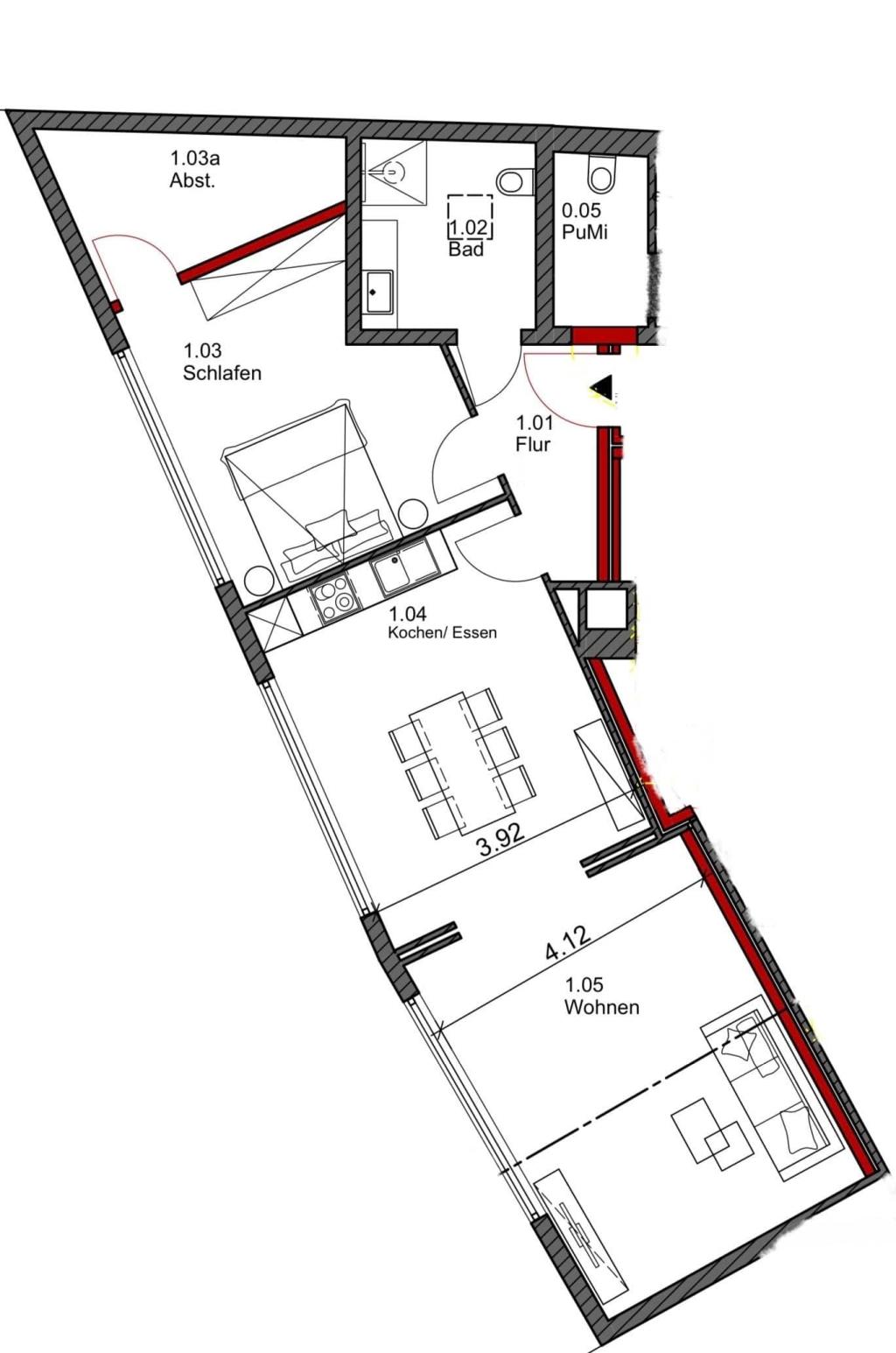
Grundriss

25899 Niebüll

Gewerblicher Anbieter

VR Bank Nord eG
Hauptstraße 30
25899 Niebüll

Details

Zimmerzahl
2
Wohnungstyp
Etagenwohnung
Etage, Geschoss
1
Bezugsfrei ab
16.10.2025
Anzahl Garage/ Stellplatz
1
Objektzustand
Erstbezug
Letzte Modernisierung/ Sanierung
2025

Kosten

Kaltmiete
749 €
Nebenkosten
150 €
Kaution
1.500 €
Was kostet dein Umzug?

Stellplätze

Stellplatztyp
Freiplatz
Anzahl
1

Objektbeschreibung

Diese zur Vermietung stehende, zur Hauptstraße gelegene 2-Zi.-Wohnung wurde komplett renoviert und mit sehr hochwertigen Materialien (Siemens-Küchengeräte, Bad, Gästetoilette, begehbarer Kleiderschrank, Fliesen, Designerplanken) ausgestattet.


Erleben Sie zentrumsnahes Wohnen; Bäcker, Schulen und Supermärkte sind fußläufig bequem erreichbar. Die Wohnung ist ruhig und hell gelegen, insbesondere aufgrund der Dreifachverglasung der neuen Fenster.


Glasfaseranschluss ist vorhanden.


Ein PKW-Stellplatz mit Zufahrt vom rückläufigen Westersteig sowie ein Fahrradabstellraum stehen zur Verfügung.


Es handelt sich um Erstbezug; der Bezug ist ab sofort möglich.


Es wird eine Indexmiete vereinbart.


Haustiere: lediglich 1 Katze (mit Haftpflichtversicherungsnachweis).


Vermietung nur an Nichtraucher.


Bausubstanz & Energieausweis

A+

A

B

C

D

127,4 kWh/(m²*a)

E

F

G

H

Baujahr
1990
Objektzustand
Erstbezug
Letzte Modernisierung
2025
Wesentlicher Energieträger
Erdgas leicht
Heizungsart
Zentralheizung
Energieausweis
liegt vor
Energieausweistyp
Bedarfsausweis
Ausstellungsdatum
01.10.2024
Gültig bis
01.10.2034
Energieeffizienzklasse
D
Endenergiebedarf
127,4 kWh/(m²*a)

Lagebeschreibung

Die Stadt Niebüll mit ca. 10.000 Einwohnern befindet sich im nördlichen Teil des Kreises Nordfriesland. In der schönen landschaftlichen Umgebung des Luftkurortes bieten sich ausreichende Möglichkeiten zur Freizeitgestaltung, wie z. B. Wandern, Radfahren, Reiten oder das Baden in der nahegelegenen Nordsee. In der Stadt sind Kindergärten und alle Schulformen vorhanden. Ebenso finden sich ausreichende Einkaufsmöglichkeiten, Ärzte, Apotheken und eine Klinik im unmittelbaren Umfeld.
In Niebüll besteht die Möglichkeit, mit dem Autozug die Insel Sylt zu erreichen. Ebenso besitzt die Stadt einen Bahnhof der Strecke Hamburg - Westerland (Sylt) sowie die Möglichkeit, mit dem Zug nach Tondern (Dänemark) und Dagebüll (Fähren nach Föhr und Amrum) zu gelangen. Husum und Flensburg sind in ca. 45 Autominuten zu erreichen.
Insbesondere durch seine Nähe zu den Inseln und Halligen sowie der guten Verkehrsanbindung ist Niebüll ein attraktiver Wohnort.
Örtliche Vereine und die Stadt Niebüll stellen für sportliche Aktivitäten großzügige Sportanlagen, ein Hallenbad, eine Tennishalle, Tennisplätze und eine Reithalle zur Verfügung. Ein 18-Loch-Golfplatz ist in der Nachbargemeinde Leck in herrlicher Naturlage vorhanden.


Wohnung finden so einfach wie möglich - das ist unsere Mission!

Kostenlose Basic Features

0 € monatlich


  • Individuelles Such-Profil anlegen
  • Suchaufträge speichern
  • One-Klick Kontaktaufnahme

alles anzeigen

Jetzt kostenlos anmelden

Premium Features

19,99 € monatlich


  • Alle kostenlosen Features
  • Smart-Alarm per Whatsapp
  • Deine Chancen checken
  • Wohngegend analysieren

alles anzeigen

Jetzt Premium freischalten

Gewerblicher Anbieter

VR Bank Nord eG
Hauptstraße 30
25899 Niebüll

Wohnglück-ID:
Objekt-Nr.:
WGL-786455
8948