Zinshaus / Renditenobjekt in Rudolstadt

Wohn- und Geschäftshaus mit historischem Flair im Herzen von Rudolstadt

Anfragen bisher

Premium

Meine Chancen

Premium

Fairer Preis

Premium

299.000 €

Kaufpreis

07407 Rudolstadt

Gewerblicher Anbieter

Volksbank eG Gera • Jena • Rudolstadt
Johannisplatz 7
07743 Jena

Details

Typ der Gewerbeimmobilie
Zinshaus / Renditenobjekt
Baujahr
1545

Kosten

Kaufpreis
299.000 €
Käuferprovision
3,57% inkl. MwSt. vom Kaufpreis
Was kostet dein Umzug?

Objektbeschreibung

Dieses attraktive Wohn- und Geschäftshaus befindet sich in bester Innenstadtlage von Rudolstadt und verbindet historischen Charme mit einer gepflegten, soliden Ausstattung.
Das Gebäude wurde um 1545 errichtet, 1997 umfassend saniert und seitdem fortlaufend instand gehalten.


Die Immobilie bietet flexible Nutzungsmöglichkeiten – ideal für Eigennutzer oder als solide Kapitalanlage.


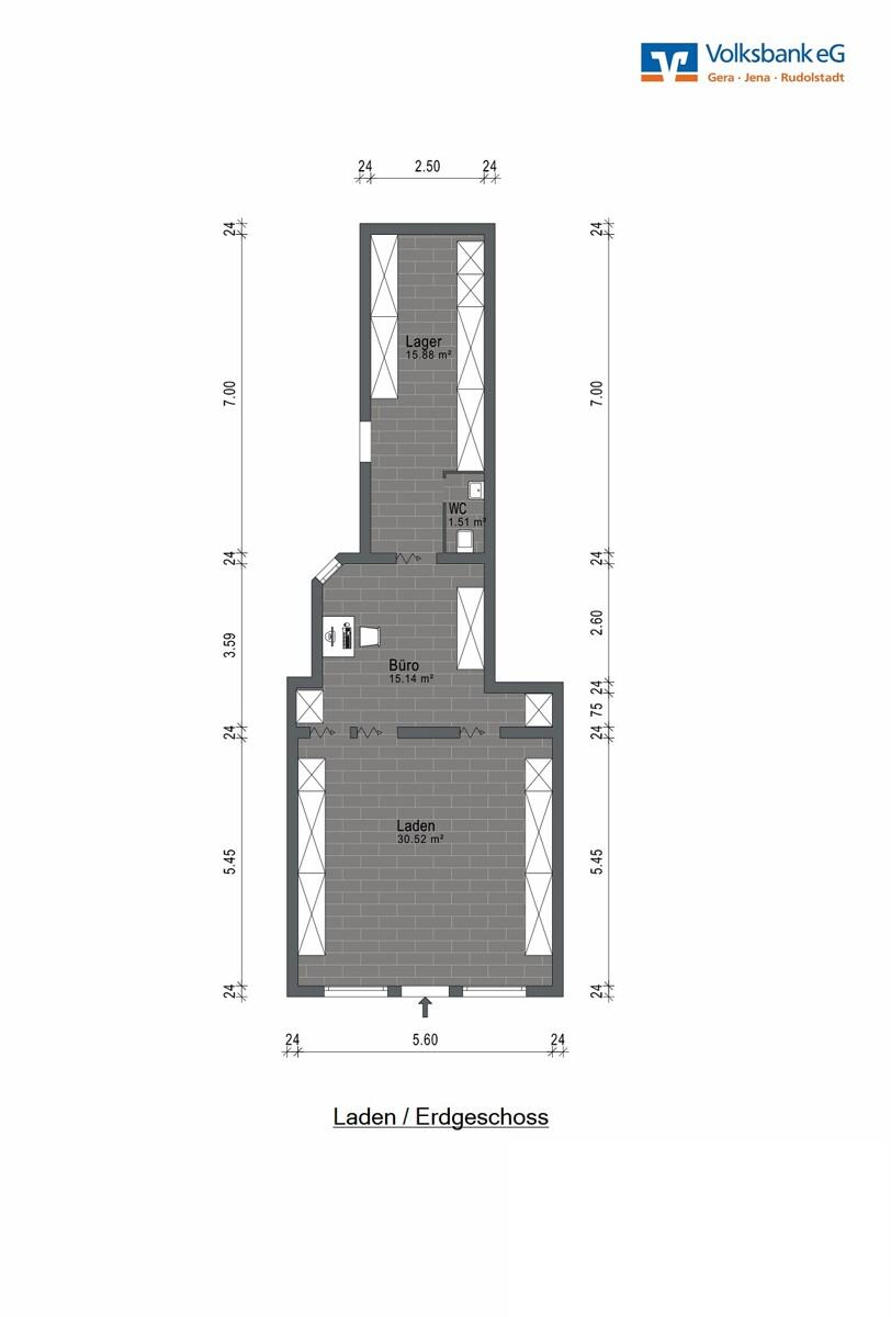
Im Erdgeschoss erwartet Sie eine repräsentative Ladenfläche mit großen Schaufenstern, die sowohl für den Einzelhandel als auch für ein Büro perfekt geeignet ist. In den oberen Etagen befinden sich großzügige Wohnflächen, die teilweise mit Balkon oder besonderen Raumhöhen punkten.


Aufteilung & Flächen:



  • Keller: Lager- und Abstellmöglichkeiten

  • Erdgeschoss: ca. 56 m² Ladenfläche mit Schaufenstern



    1. Obergeschoss: ca. 72 m² Wohnfläche, Balkon





    1. Obergeschoss: ca. 73 m² Wohnfläche



  • Dachgeschoss: ca. 21 m² Studio


Ausstattung:



  • 3 Gas-Etagenheizung (EG, 1. OG , 2.OG +DG gemeinsam)

  • Ladenfläche flexibel nutzbar (Büro oder Einzelhandel)

  • Treppenlift über alle Etagen

  • Balkon im 2. Obergeschoss

  • neues Bad im 2. OG

  • Großzügige Raumaufteilung

  • Innenhof


Besonderheit:



  • Denkmalgeschützte Fassade (Front)


Die Marktstraße liegt im Herzen von Rudolstadt und ist eine ansprechende Adresse für Wohnen und Gewerbe. Das Objekt profitiert von der Fußgängerfrequenz, einer guten Infrastruktur und der Nähe zu Einkaufsmöglichkeiten und Gastronomie aber auch Schulen und öffentlichen Verkehrsmitteln.


Rudolstadt ist bekannt für seine historische Altstadt, kulturellen Veranstaltungen und hohe Lebensqualität.


Rufen Sie uns an und vereinbaren Sie einen Besichtigungstermin.


Bausubstanz & Energieausweis

A+

A

B

C

D

E

F

G

H

Baujahr
1997
Wesentlicher Energieträger
GAS
Heizungsart
Sonstige
Energieausweis
liegt vor
Energieausweistyp
Verbrauchsausweis
Gültig bis
18.06.2035
Energieverbrauchskennwert
150 kWh/(m²*a)
Energieeffizienzklasse
E

Wohnung finden so einfach wie möglich - das ist unsere Mission!

Kostenlose Basic Features

0 € monatlich


  • Individuelles Such-Profil anlegen
  • Suchaufträge speichern
  • One-Klick Kontaktaufnahme

alles anzeigen

Jetzt kostenlos anmelden

Premium Features

19,99 € monatlich


  • Alle kostenlosen Features
  • Smart-Alarm per Whatsapp
  • Deine Chancen checken
  • Wohngegend analysieren

alles anzeigen

Jetzt Premium freischalten

Gewerblicher Anbieter

Volksbank eG Gera • Jena • Rudolstadt
Johannisplatz 7
07743 Jena

Wohnglück-ID:
Objekt-Nr.:
WGL-786217
1406