Einfamilienhaus freistehend in Rengsdorf

Keller

Äußerst geschmackvolles und charmantes Einfamilienhaus in beliebter und zentraler Wohnlage

Anfragen bisher

Premium

Meine Chancen

Premium

Fairer Preis

Premium

379.000 €

Kaufpreis

110 m²

4 Zi.

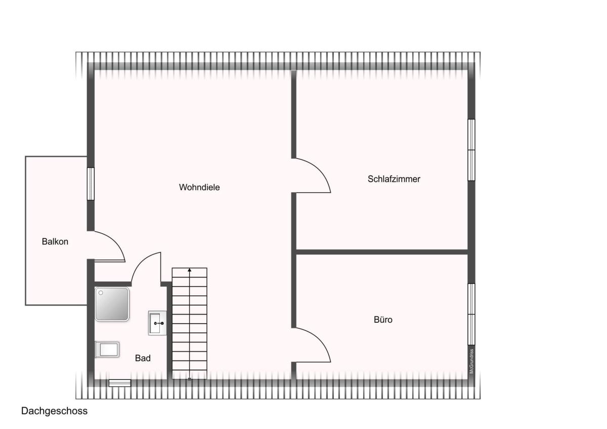
Grundriss

56579 Rengsdorf

Gewerblicher Anbieter

Immobiliengesellschaft der Westerwald Bank mbH
Schloßplatz 6
57610 Altenkirchen (Westerwald)

Details

Grundstücksfläche
335 m²
Zimmerzahl
4
Haustyp
Einfamilienhaus freistehend
Etagenzahl
1
Nutzfläche
30 m²
Baujahr
1951

Kosten

Kaufpreis
379.000 €
Käuferprovision
3,57 %
Was kostet dein Umzug?

Objektbeschreibung

Zum Verkauf steht ein ansprechendes und charmantes Einfamilienhaus mit hübscher und gelungener Raumaufteilung in verkehrsberuhigter, zentraler und beliebter Wohnlage von Rengsdorf mit schöner Aussicht über den Ort.
Ursprünglich wurde die Immobilie schätzungsweise um 1951 in massiver Bauweise errichtet und vom heutigen Eigentümer im Jahre 2015 erworben. Ende der 80iger sowie Anfang der 90iger Jahre und nach Übernahme des Wohnhauses durch den heutigen Eigentümer wurden umfangreiche Renovierungs- und Modernisierungsmaßnahmen durchgeführt, welche technische Maßnahmen als auch die Neugestaltung des Innenbereiches umfassten. Zu erwähnen sind insbesondere der Austausch der Fensteranlagen mit hübschen Klappläden, die Sanitärbereiche sowie die Neuausrichtung der Elektrik. Auch wurde die oberste Geschoßdecke gedämmt.
Heute findet man eine äußerst charmante und einladende Wohnimmobilie, welche sich aufgrund ihrer hübschen und gelungenen Raumaufteilung (trotz überschaubarer Größe) sowohl für Pärchen als auch für eine kleine Familie eignet. Die Immobilie ist vollständig unterkellert und bietet im Bereich des Untergeschosses eine kleine Wellnessoase mit Sauna, Dusche sowie einem hübschen Wintergarten. Diese Flächen sind als Nutzfläche ausgewiesen. Die restlichen Flächen beinhalten die Waschküche und Heizungskeller. Die Böden des Untergeschosses sind komplett gefliest. Des Weiteren bietet die Immobilie eine Speicherfläche, welcher über eine elektronische Zugleiter begehbar ist und sich ideal als zusätzlichen Stauraum anbietet.
Zum Hausangebot gehört zudem ein schöner, kompakter und gewachsener Wohngarten mit toller Aussicht und angenehmer Nachbarschaftsbebauung, welche überwiegend aus Ein- und Zweifamilienhäusern besteht. Der Wohnbalkon, welcher unmittelbar vom Ess- und Küchenbereich aus zugänglich ist, schenkt dank der süd-östlichen Himmelsausrichtung viele Sonnenstunden.
Bei Übernahme der Immobilie können die vorhandene Einbauküche, der Kaminofen sowie weitere Einrichtungsgegenstände übernommen werden. Hier sind individuelle Absprachen möglich.
Besichtigungen sind nach vorheriger Vereinbarung selbstverständlich möglich. Sprechen Sie uns gerne an.


Bausubstanz & Energieausweis

A+

A

B

C

D

E

F

G

H

342,8 kWh/(m²*a)

Baujahr
1951
Wesentlicher Energieträger
Gas
Heizungsart
Gasheizung
Befeuerung
Gasheizung
Energieausweis
liegt vor
Energieausweistyp
Bedarfsausweis
Ausstellungsdatum
30.05.2023
Gültig bis
29.05.2033
Energieeffizienzklasse
H
Endenergiebedarf
342,8 kWh/(m²*a)

Ausstattung

Massivbauweise aus etwa 1951, Kellergeschoß aus Bruchsteinen, massive Innenwände, Außenfassade verputzt und gestrichen, Eingangsüberdachung aus Glas, Satteldach mit Eindeckung in Schiefer, Dämmung der obersten Geschoßdecke, Kunststofffenster isolierverglast aus 1986 mit Klappläden, Gaszentralheizung aus 1993 mit zentraler Warmwasseraufbereitung, weiße Holzinnentüren, Original-Holzinnentreppe weiß gestrichen mit Vinylbelag, Oberböden überwiegend gefliest und mit Vinyl ausgelegt, Neuausrichtung der Elektrik in den 90iger Jahren, Austausch der Sanitärbereiche ebenfalls in den 90iger Jahren, Sauna und Duschbereich im Untergeschoß, Whirlpool im Bereich des Gästebades im Erdgeschoß, der vorhandene Balkon wurde saniert, Einbauschränke vorhanden


überdachter Grillplatz


Lagebeschreibung

Der Luftkurort Rengsdorf hat ca. 2.800 Einwohner und liegt am Rande des Westerwaldes in einer typischen Tallandschaft vor den Toren von Neuwied.
Rengsdorf zeichnet sich durch eine sehr hohe Wohnqualität aus.
Im Ort befinden sich ausreichend Einrichtungen des täglichen Bedarfs, wie z.B. Einkaufsmöglichkeiten, Geldautomaten, Apotheke, Ärzte, Kindergarten, Grundschule, Restaurants, Schwimmbad, u.v.m.
Die Ortsgemeinde Rengsdorf ist Verwaltungssitz der Verbandsgemeinde Rengsdorf-Waldbreitbach und gehört dem Landkreis Neuwied an. Die Gemeinde liegt unmittelbar an der Bundesstraße 256, welche die Kreisstädte Neuwied und Altenkirchen verbindet. Von Rengsdorf aus haben sie zudem hervorragende logistische Anbindungen an die Bundesautobahnen A3, A48 und A61, zu den ICE-Bahnhöfen Montabaur und Siegburg/Bonn, sowie zu den Flughäfen Köln/Bonn und Frankfurt/Main.
Das Wohnhaus selbst befindet sich in sehr ansprechender, verkehrsberuhigter und beliebter Wohnlage von Rengsdorf.


Wohnung finden so einfach wie möglich - das ist unsere Mission!

Kostenlose Basic Features

0 € monatlich


  • Individuelles Such-Profil anlegen
  • Suchaufträge speichern
  • One-Klick Kontaktaufnahme

alles anzeigen

Jetzt kostenlos anmelden

Premium Features

19,99 € monatlich


  • Alle kostenlosen Features
  • Smart-Alarm per Whatsapp
  • Deine Chancen checken
  • Wohngegend analysieren

alles anzeigen

Jetzt Premium freischalten

Gewerblicher Anbieter

Immobiliengesellschaft der Westerwald Bank mbH
Schloßplatz 6
57610 Altenkirchen (Westerwald)

Wohnglück-ID:
Objekt-Nr.:
WGL-786199
2 953 3