Einzelhandel in Raesfeld

Aufzug

Modern & Einladend Ihr Geschäft im besten Licht. Viel Flair und vielseitige Flächen verteilt über drei Geschosse.

Anfragen bisher

Premium

Meine Chancen

Premium

Fairer Preis

Premium

Kaltmiete

46348 Raesfeld

Gewerblicher Anbieter

VON POLL IMMOBILIEN Bocholt - Sascha Mermann Immobilien e. K.
Westend 27
46399 Bocholt

Details

Ladenfläche
652 m²
Lagerfläche
274 m²
Verkaufsfläche
652 m²
Bürofläche
100 m²
Typ der Gewerbeimmobilie
Einzelhandel
Etagenzahl
3
Nutzfläche
1.010 m²
Objektzustand
Gepflegt
Baujahr
2000

Kosten

Kaltmiete
Was kostet dein Umzug?

Objektbeschreibung

Repräsentatives Ladenlokal im Herzen von Raesfeld
Dieses außergewöhnliche Ladenlokal aus dem Baujahr 2000 im Ortskern von Raesfeld vereint stilvolle Architektur, eine erstklassige Ausstattung und eine traditionsreiche Vergangenheit zu einem einzigartigen Gesamtpaket für unternehmerischen Erfolg.


Erstklassige Lage mit hoher Frequenz
Zentral gelegen im belebten Zentrum von Raesfeld, profitiert das Objekt von einer hervorragenden Sichtbarkeit und einer konstant hohen Passantenfrequenz. Großzügige Schaufensterfronten schaffen nicht nur eine einladende Außenwirkung, sondern bieten auch ideale Bedingungen für die hochwertige Präsentation Ihrer Produkte oder Dienstleistungen. Die ansprechende Architektur verleiht dem Gebäude ein modernes, elegantes Erscheinungsbild und unterstreicht den exklusiven Charakter dieses Geschäftssitzes.


Das Interieur ist flexibel gestaltbar und bietet Raum für individuelle Nutzungskonzepte – vom Einzelhandel über Showroom bis hin zu exklusiven Dienstleistungen.
Die Immobilie erstreckt sich über vier Ebenen und bietet eine ideale Raumaufteilung für vielseitige Nutzungsmöglichkeiten:


Das Erdgeschoss umfasst eine Verkaufsfläche mit großzügigen Schaufenstern von ca. 327 m². Neben den gut sichtbaren und auffälligen Schaufenstern, die dem Raum eine helle Atmosphäre verleihen. Im hinteren Bereich befindet sich zudem ein Büroraum, ein Gäste-WC und eine Küche.


Für die Lagerung von Materialien stellt die Immobilie zusätzlich einen Lagerraum und einen weiteren Nebenraum mit Regalen im Erdgeschoss zu Verfügung.


Das erste Obergeschoss bietet eine weitere Verkaufsfläche von ca. 325 m². Durch die abwechslungsreichen Kulissen, die der Etage ein vielfältiges Raumambiente geben, was besonders bei der In Szenesetzung von unterschiedlichen Themenbereichen ansprechend ist.


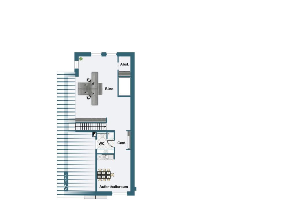
Abseits der Verkaufsflächen steht im zweiten Obergeschoss ein separater Bereich mit ca. 84 m² zur Verfügung, der sich hervorragend für Büronutzung, interne Arbeitsplätze oder diskrete Kundengespräche eignet. Die ruhige Lage innerhalb des Hauses unterstützt konzentriertes Arbeiten auf professionellem Niveau. Zudem verfügt diese Etage über ein weiteres Badezimmer mit Dusche.


Das geräumige Kellergeschoss, ist gefliest und verfügt über weitere Lagerflächen von ca. 274 m².


Bausubstanz & Energieausweis

Objektzustand
Gepflegt
Heizungsart
Sonstige

Ausstattung

Ausstattung auf höchstem Niveau
Die technische und bauliche Ausstattung des Objekts erfüllt alle Ansprüche an ein modernes, professionelles Geschäftsgebäude:
•Repräsentativer Eingangsbereich
•Edle, pflegeleichte Bodenbeläge
•Großflächige, hochwertige Fensterfronten
•Personen- und Lastenaufzug
•Effiziente Klimatisierung
•Stilvolle Beleuchtung
•Moderne Sicherheitstechnik
•Zentrale Ölheizung


Lagebeschreibung

Die Immobilie befindet sich in zentraler, bestens frequentierter Lage im Herzen von Raesfeld. Umgeben von Einzelhandel, Gastronomie und Dienstleistungsbetrieben profitiert der Standort von einer lebendigen Umgebung und hoher Sichtbarkeit.


Raesfeld zählt zu den attraktivsten Gemeinden im westlichen Münsterland – nicht zuletzt durch das bekannte Wasserschloss, das Besucher aus der gesamten Region anzieht und dem Ort ein besonders repräsentatives Flair verleiht.


Dank der Nähe zur B 224 und A31 ist eine schnelle Erreichbarkeit aus dem Münsterland sowie dem Ruhrgebiet gewährleistet – ideal für Kundenverkehr, Mitarbeitende und Lieferanten gleichermaßen.


Wohnung finden so einfach wie möglich - das ist unsere Mission!

Kostenlose Basic Features

0 € monatlich


  • Individuelles Such-Profil anlegen
  • Suchaufträge speichern
  • One-Klick Kontaktaufnahme

alles anzeigen

Jetzt kostenlos anmelden

Premium Features

19,99 € monatlich


  • Alle kostenlosen Features
  • Smart-Alarm per Whatsapp
  • Deine Chancen checken
  • Wohngegend analysieren

alles anzeigen

Jetzt Premium freischalten

Gewerblicher Anbieter

VON POLL IMMOBILIEN Bocholt - Sascha Mermann Immobilien e. K.
Westend 27
46399 Bocholt

WohnglĂĽck-ID:
Objekt-Nr.:
WGL-785083
25202024