Büro / Praxen in Stockstadt am Rhein (Stockstadt)

Garage/­Stellplatz

gepflegte, helle Räume für ihren Erfolg: Praxis, Therapie, Kanzlei, Büro

Anfragen bisher

Premium

Meine Chancen

Premium

Fairer Preis

Premium

64589 Stockstadt

Gewerblicher Anbieter

ohne-makler.net
Humboldtstraße 25 A
21509 Glinde

Details

Bürofläche
120 m²
Typ der Gewerbeimmobilie
Büro / Praxen
Etagenzahl
2
Bezugsfrei ab
01.01.2026
Anzahl Garage/ Stellplatz
1
Objektzustand
Gepflegt
Baujahr
1973

Kosten

Was kostet dein Umzug?

Stellplätze

Stellplatztyp
Freiplatz
Anzahl
1

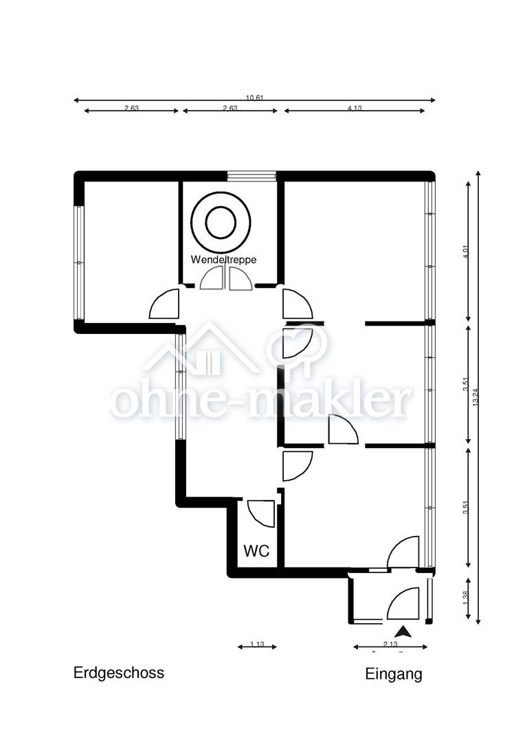
Objektbeschreibung

Ab dem 01.01.26 steht in zentraler Lage von Stockstadt am Rhein eine vielseitig nutzbare, gepflegte Gewerbefläche mit ca. 120 m2 zur Verfügung. Die schönen, zeitlosen Räume erstrecken sich über das Erdgeschoß und das Souterrain und bieten somit flexible Nutzungsmöglichkeiten.
Besonderheiten:
•Großzügige Fenster mit Blick ins Grüne sorgen für viel Tageslicht und ein einladendes Ambiente
•Eigener PKW-Stellplatz und zusätzliche Parkmöglichkeiten in der Straße
•Gepflegtes Umfeld mit gutem Kunden- und Klientenzugang
•Die Fläche lässt sich auf Wunsch an Ihre individuellen Bedürfnisse anpassen. Ideal geeignet für Therapiepraxen, Rechtsanwaltskanzleien, Coachings oder kreative Bürolösungen


Bausubstanz & Energieausweis

Objektzustand
Gepflegt
Heizungsart
Zentralheizung
Befeuerung
Ölheizung
Energieausweis
liegt vor
Energieausweistyp
Bedarfsausweis

Ausstattung

Laminat


Lagebeschreibung

Lage und Verkehrsanbindungen
•Die Gemeinde Stockstadt am Rhein liegt am südlichen Rand des Ballungsgebietes Rhein-Main und verfügt über beste Verkehrsanbindungen:
•naheliegende Autobahnzufahrten (BAB 67 – Pfungstadt bzw. Gernsheim (direkt über die B44) und Groß-Gerau)
•Flughafen Frankfurt, erreichbar in 30 Minuten
•Einwohnerzahl: 6.275 (Stand 2021)
•Naherholung gelingt in größtem hessischen Naturschutzgebiet und Europareservat "Kühkopf-Knoblauchsaue" mit dem Umweltbildungszentrum Schatzinsel Kühkopf
Infrastruktur (im Umkreis von 5 km):
Apotheke, Lebensmittel-Discount, Allgemeinmediziner, Kindergarten, Grundschule, Hauptschule, Öffentliche Verkehrsmittel


Sonstige Angaben

Heizungsart: Zentralheizung
Energieträger: Öl


ohne-makler (OM) ist weder Anbieter noch Vermittler der Immobilie. OM betreibt eine Plattform für Immobilieneigentümer, die unter anderem die gleichzeitige Veröffentlichung einzelner Inserate auf mehreren Immobilienportalen ermöglicht. Die Inhalte dieser Inserate werden ausschließlich von Dritten verantwortet. Für die Richtigkeit, Vollständigkeit oder Rechtmäßigkeit der Angaben übernimmt OM keine Haftung. Hinweise auf mögliche Rechtsverstöße können jederzeit gemeldet werden und werden nach Prüfung umgehend bearbeitet.


Wohnung finden so einfach wie möglich - das ist unsere Mission!

Kostenlose Basic Features

0 € monatlich


  • Individuelles Such-Profil anlegen
  • Suchaufträge speichern
  • One-Klick Kontaktaufnahme

alles anzeigen

Jetzt kostenlos anmelden

Premium Features

19,99 € monatlich


  • Alle kostenlosen Features
  • Smart-Alarm per Whatsapp
  • Deine Chancen checken
  • Wohngegend analysieren

alles anzeigen

Jetzt Premium freischalten

Gewerblicher Anbieter

ohne-makler.net
Humboldtstraße 25 A
21509 Glinde

Wohnglück-ID:
Objekt-Nr.:
WGL-781698
277600