Doppelhaushälfte in Leingarten

Balkon/­Terrasse
Garten/­-mitbenutzung
Keller
Einbauküche
Garage/­Stellplatz

Doppelhaushälfte – Ideal für Ihre Familie!

Anfragen bisher

Premium

Meine Chancen

Premium

Fairer Preis

Premium

694.500 €

Kaufpreis

190,52 m²

6,5 Zi.

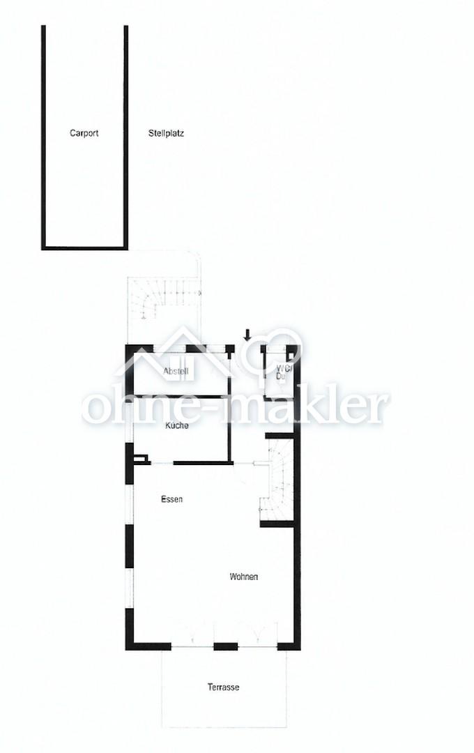
Grundriss

74211 Leingarten

Gewerblicher Anbieter

ohne-makler.net
Humboldtstraße 25 A
21509 Glinde

Details

Grundstücksfläche
256 m²
Zimmerzahl
6,5
Haustyp
Doppelhaushälfte
Etagenzahl
3
Bezugsfrei ab
nach Absprache
Anzahl Schlafzimmer
3
Anzahl Badezimmer
1
Anzahl Garage/ Stellplatz
2
Objektzustand
Gepflegt
Baujahr
2000

Kosten

Kaufpreis
694.500 €
Käuferprovision
keine
Was kostet dein Umzug?

Stellplätze

Stellplatztyp
Freiplatz
Anzahl
2
Stellplatztyp
Carport
Anzahl
1

Objektbeschreibung

Ihr neues Zuhause
In einem beliebten Familien - Wohngebiet in Leingarten können wir Ihnen diese schöne Doppelhaushälfte mit überdurchschnittlich großem Platz- und Zimmerangebot anbieten.
Die Doppelhaushälfte und Einliegerwohnung wurde 2017 renoviert. Im Jahr 2022 wurde die Fassade neu gestrichen.
Der Ort zum Wohlfühlen
Das Haus wurde im Jahre 1999/2000 mit gesamt ca. 190,52 m² Wohnfläche gebaut und liegt in einer ruhigen Anliegerstraße.
Bis unter das Dach können Sie über drei Etagen bis zu 5 Schlafzimmer und einem Bad sowie Küche, einen großzügigen Abstellraum, das Gäste-WC sowie den großen hellen Wohn-/Essbereich nutzen.
Dazu kann bei Bedarf im UG eine kleine 1,5 Zimmer Einliegerwohnung separat vermietet werden.
Ein Garten zur Südseite mit der großen Sonnenterasse wird Ihnen gefallen und lädt zum Verweilen im Grünen ein.


Bausubstanz & Energieausweis

A+

A

B

C

D

E

F

G

H

Objektzustand
Gepflegt
Heizungsart
Zentralheizung
Befeuerung
Gasheizung
Energieausweis
liegt vor
Energieausweistyp
Verbrauchsausweis
Energieverbrauchskennwert
73 kWh/(m²*a)
Energieeffizienzklasse
B

Ausstattung

Terrasse, Garten, Keller, Vollbad, Einbauküche, Gäste-WC, Fliesen


Bemerkungen:
Ausstattung



  • Einbauküche

  • Entkalkungsanlage (2018)

  • 1 Carport mit Anbau

  • 2 Autoabstellplätze

  • Solarthermie vorbereitet


Einliegerwohnung ca. 31m²



  • separater Zugang

  • Küchenzeile

  • Abstellraum mit Platz für Regal, WM und Trockner

  • Wohn-/Schlafbereich

  • Bad


Lagebeschreibung

Leingarten ist eine beliebte und attraktive Stadt mit derzeit rund 12.500 Einwohner. Die Nähe zu Heilbronn mit der Stadtbahnverbindung sowie die sehr gute Infrastruktur bieten eine hohe Wohnqualität.
Eingebettet in eine landschaftlich reizvolle Lage um den Heuchelberg mit Weinbau und vielen Sport- und Naherholungseinrichtungen sowie einem aktivem Vereinsleben garantiert Leingarten einen hohen Freizeitwert.
Zahlreiche Ärzte, Apotheken, Gesundheits- und Pflegeeinrichtungenhaben sind in Leingarten niedergelassen. Dazu bieten mehrere Bäckereien, Metzgereien, Supermärkte und Discounter eine sehr gute Versorgung.
Familien profitieren von 10 Kindergärten und zwei Grundschulen sowie einer Gesamtschule.
Infrastruktur (im Umkreis von 5 km):
Apotheke, Lebensmittel-Discount, Allgemeinmediziner, Kindergarten, Grundschule, Gesamtschule, Öffentliche Verkehrsmittel


Sonstige Angaben

Heizungsart: Zentralheizung
Energieträger: Gas


Die Einliegerwohnung ist derzeit vermietet.


Für eine Besichtigung wünschen wir vorab eine Finanzierungsbestätigung und bitten hier um Verständnis.


Falls es noch offene Fragen gibt, einfach melden.


Makleranfragen nicht erwünscht. Nach § 7 UWG sind unaufgeforderte Kontaktaufnahmen durch Makler ohne ausdrückliche Einwilligung des Empfängers verboten!


ohne-makler (OM) ist weder Anbieter noch Vermittler der Immobilie. OM betreibt eine Plattform für Immobilieneigentümer, die unter anderem die gleichzeitige Veröffentlichung einzelner Inserate auf mehreren Immobilienportalen ermöglicht. Die Inhalte dieser Inserate werden ausschließlich von Dritten verantwortet. Für die Richtigkeit, Vollständigkeit oder Rechtmäßigkeit der Angaben übernimmt OM keine Haftung. Hinweise auf mögliche Rechtsverstöße können jederzeit gemeldet werden und werden nach Prüfung umgehend bearbeitet.


Wohnung finden so einfach wie möglich - das ist unsere Mission!

Kostenlose Basic Features

0 € monatlich


  • Individuelles Such-Profil anlegen
  • Suchaufträge speichern
  • One-Klick Kontaktaufnahme

alles anzeigen

Jetzt kostenlos anmelden

Premium Features

19,99 € monatlich


  • Alle kostenlosen Features
  • Smart-Alarm per Whatsapp
  • Deine Chancen checken
  • Wohngegend analysieren

alles anzeigen

Jetzt Premium freischalten

Gewerblicher Anbieter

ohne-makler.net
Humboldtstraße 25 A
21509 Glinde

Wohnglück-ID:
Objekt-Nr.:
WGL-781576
396682