Dachgeschosswohnung in Nürnberg

Keller
Einbauküche
Garage/­Stellplatz

4 Zimmer-Eigentumswohnung, Nürnberg Innenstadt - am Germanischen Nationalmuseum mit Pkw-Stellplatz

Anfragen bisher

Premium

Meine Chancen

Premium

Fairer Preis

Premium

438.000 €

Kaufpreis

96,8 m²

4 Zi.

3. OG

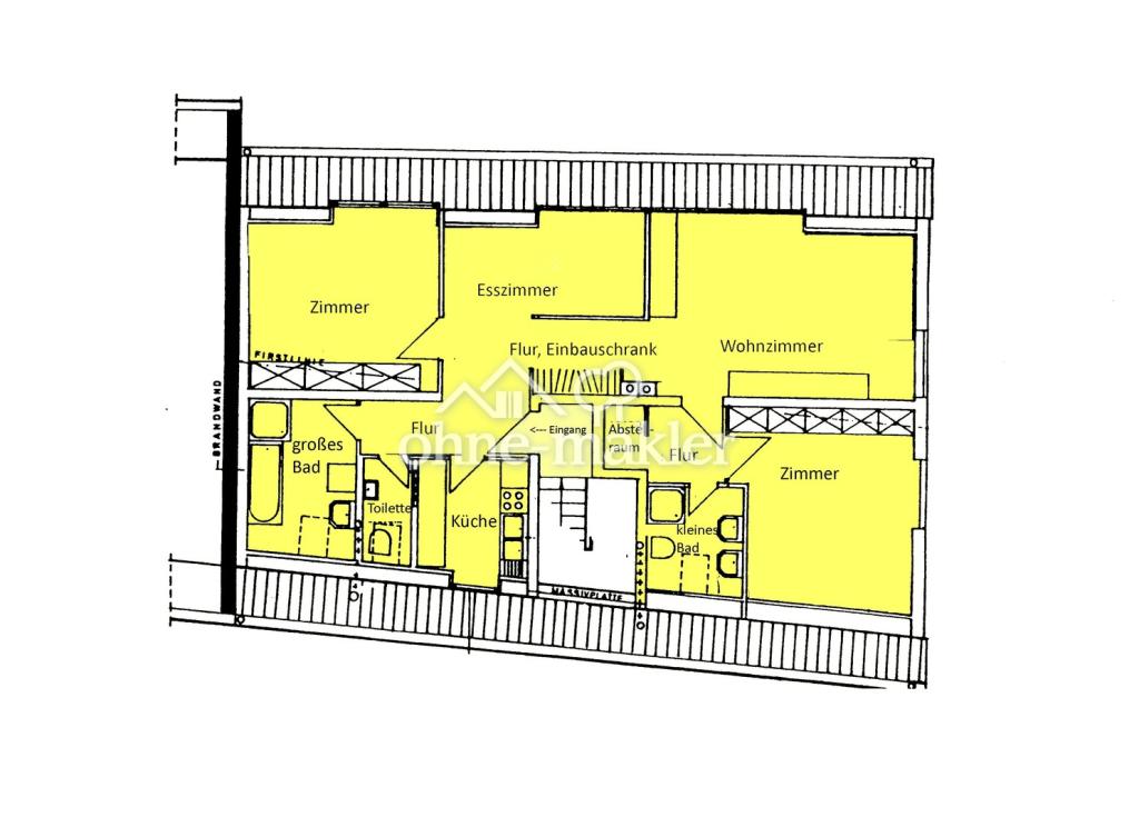
Grundriss

90402 Nürnberg

Gewerblicher Anbieter

ohne-makler.net
Humboldtstraße 25 A
21509 Glinde

Details

Zimmerzahl
4
Wohnungstyp
Dachgeschosswohnung
Etage, Geschoss
3
Etagenzahl
3
Bezugsfrei ab
sofort
Anzahl Schlafzimmer
2
Anzahl Badezimmer
2
Anzahl Garage/ Stellplatz
1
Objektzustand
Gepflegt
Baujahr
1980

Kosten

Kaufpreis
438.000 €
Käuferprovision
keine
Was kostet dein Umzug?

Stellplätze

Stellplatztyp
Freiplatz
Anzahl
1

Objektbeschreibung

Das Wohnhaus umfasst 5 Parteien
Heizungsart: Fernwärme


Die helle, gut geschnittene Wohnung liegt im 3. und damit letzten Obergeschoss. Sie erstreckt sich über die gesamte Etage.


Alle Wohnräume sind durch Fenster an der Giebelseite und durch große Gaubenfenster auf den Traufseiten gut belichtet. Die beiden Bäder und das zusätzliche WC haben Dachflächenfenstern. Das Wohn- und Esszimmer sowie ein weiteres Zimmer sind nach Süden ausgerichtet mit Blick auf das Opernhaus und einen Innenhof mit zwei Bäumen.
Es gibt zwei getrennte Tageslichtbäder, davon das große renovierte Bad mit Badewanne, Dusche, Waschbecken sowie Waschmaschinenanschluss und das kleine Bad mit Dusche, WC und Waschbecken. Zusätzlich ist ein gesondertes, renoviertes WC mit Dachflächenfenster vorhanden.


Im Flur zu Wohnzimmer finden sich große und im Flur zu dem kleinen Bad kleinere Einbauschränke
Im Anschluss an den kleineren Flur steht ein Abstellraum zur Verfügung.


Die vorhandene, ältere Einbauküche ist im Preis enthalten.


Die Wohnung ist beim Auszug des Mieters neu gestrichen worden und befindet sich in einem ordentlichen, altersgemäß Zustand (siehe aktuell angefertigte Fotografieren).
Zur Wohnung gehört ein warmer Keller mit Licht- und Stromanschluss sowie Fenster.


Ein abgeschlossenes Fahrradhaus befindet sich im Innenhof.


Ein eigener, privater Kfz-Stellplatz befindet sich im Innenhof. Dieser Stellplatz ist im Preis enthalten.


Wohngeld: ggw. 187,06 EUR monatlich, zzgl. Fernwärme und zzgl. Instandhaltungsrücklagen


Bausubstanz & Energieausweis

A+

A

B

C

D

E

F

G

H

Objektzustand
Gepflegt
Heizungsart
Zentralheizung
Befeuerung
Fernwärme
Energieausweis
liegt vor
Energieausweistyp
Verbrauchsausweis
Energieverbrauchskennwert
271 kWh/(m²*a)
Energieeffizienzklasse
G

Ausstattung

Keller, Vollbad, Duschbad, Einbauküche, Gäste-WC, Laminat, Teppichboden, Fliesen


Bemerkungen:
Wohnflächen (ca. Werte aus Teilungserklärung)
Wohnzimmer22,16 qm
Offener Essraum8,89 qm
Zimmer 115,24 qm
Zimmer 215,48 qm
Küche5,87 qm
Eingangsbereich7,56 qm
Hinterer Flur2,02 qm
Garderobe mit Einbauschränken3,11 qm
Abstellraum1,24 qm
Großes Bad7,47 qm
Kleines Bad4,51 qm
Gesondertes WC2,27 qm
Gesamtwohnfläche96,79 qm
Alle Angaben basieren auf uns vorliegenden Unterlagen zu der Wohnung, insbesondere der Teilungserklärung. Eigene Berechnungen haben wir nicht anstellen können.


Lagebeschreibung

Absolute Citylage, dennoch ruhig - nur wenige Schritte vom Germanischen Nationalmuseum entfernt in einer kleinen Nebenstraße ohne Durchgangsverkehr
Die Fußgängerzone, Geschäfte, Kinos, Theater, Opernhaus sowie alle Einkaufsmöglichkeiten sind in wenigen Gehminuten erreichbar.


Die U-Bahn-Station Opernhaus liegt nur ca. 300 m entfernt.


Sonstige Angaben

Heizungsart: Zentralheizung
Energieträger: Fernwärme


Für eine Anfrage über dieses Portal mit vollständigen Kontaktdaten wären wir dankbar. Wir bitten um Verständnis, dass wir wegen des für uns erheblichen Aufwands Besichtigungstermine nur mit etwas Vorlauf und bei ernsthaftem Interesse ermöglichen können.


Makleranfragen nicht erwünscht. Nach § 7 UWG sind unaufgeforderte Kontaktaufnahmen durch Makler ohne ausdrückliche Einwilligung des Empfängers verboten!


ohne-makler (OM) ist weder Anbieter noch Vermittler der Immobilie. OM betreibt eine Plattform für Immobilieneigentümer, die unter anderem die gleichzeitige Veröffentlichung einzelner Inserate auf mehreren Immobilienportalen ermöglicht. Die Inhalte dieser Inserate werden ausschließlich von Dritten verantwortet. Für die Richtigkeit, Vollständigkeit oder Rechtmäßigkeit der Angaben übernimmt OM keine Haftung. Hinweise auf mögliche Rechtsverstöße können jederzeit gemeldet werden und werden nach Prüfung umgehend bearbeitet.


Wohnung finden so einfach wie möglich - das ist unsere Mission!

Kostenlose Basic Features

0 € monatlich


  • Individuelles Such-Profil anlegen
  • Suchaufträge speichern
  • One-Klick Kontaktaufnahme

alles anzeigen

Jetzt kostenlos anmelden

Premium Features

19,99 € monatlich


  • Alle kostenlosen Features
  • Smart-Alarm per Whatsapp
  • Deine Chancen checken
  • Wohngegend analysieren

alles anzeigen

Jetzt Premium freischalten

Gewerblicher Anbieter

ohne-makler.net
Humboldtstraße 25 A
21509 Glinde

Wohnglück-ID:
Objekt-Nr.:
WGL-781483
388784