Wohn-Grundstück in Nottuln

Baugrundstück in 1A-Lage - provisionsfreies 451 m² Grundstück

Anfragen bisher

Premium

Meine Chancen

Premium

Fairer Preis

Premium

223.000 €

Kaufpreis

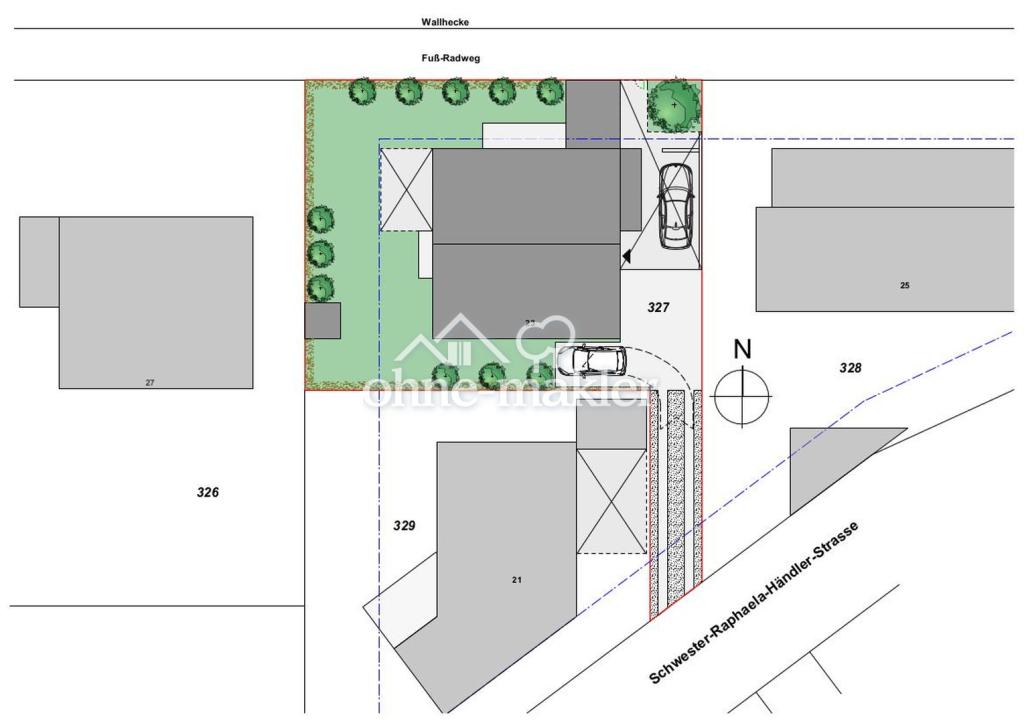
Schwester-Raphaela-Händler-Straße 23
48301 Nottuln

Gewerblicher Anbieter

ohne-makler.net
Humboldtstraße 25 A
21509 Glinde

Details

Grundstücksfläche
451 m²
Typ des Grundstücks
Wohn-Grundstück
Bezugsfrei ab
sofort

Kosten

Kaufpreis
223.000 €
Käuferprovision
keine
Was kostet dein Umzug?

Objektbeschreibung

Das Grundstück liegt im jungen Baugebiet Nottuln Nord, wobei die Nachbarschaft größtenteils Ihre Häuser bereits fertiggestellt hat.
Somit können Sie nach Fertigstellung die ruhige Lage mit gewachsener Nachbarschaft genießen.


Das erschlossene Grundstück ist gemäß dem Bebauungsplan nutzbar und eignet sich ideal für den Bau eines Einfamilienhauses oder Doppelhauses - je nach individuellem Wunsch.


Eine Baugenehmigung zum vorhandenen Architektenentwurf der maximal möglichen Bebauung mit 260 m² Nettogrundfläche, bzw. 180 m² Wohnfläche liegt vor.
Der Entwurf bietet die Möglichkeit, ein EFH für eine Familie oder ein Zweiparteienhaushalt zu generieren.
Dieser Entwurf kann für eine abzustimmende Aufwandsentschädigung übernommen werden.
Durch die vorhandene Baugenehmigung kann somit noch in diesem Jahr mit der Umsetzung Ihres Projektes begonnen werden.


Fazit:
Ein seltenes Angebot in dieser 1A-Lage, ohne Einschränkungen durch Bewerbungskriterien der Gemeinde, ermöglicht Ihnen kurzfristig die Erstellung Ihres neuen Zuhauses.


Bausubstanz & Energieausweis

Heizungsart
Sonstige

Lagebeschreibung

Dieses 451 m² große Grundstück am nördlichen Ortsrand von Nottuln bietet Ihnen die beste Möglichkeit, sich direkt am Naherholungsgebiet der Baumberge Ihr eigenes Zuhause zu erschaffen.


Die Adresse lautet: Schwester-Raphaela-Händler-Straße 23, 48301 Nottuln


Die Ortsrandlage gewährt den direkten Start für Spaziergänge oder Radtouren in landschaftlich reizvoller Umgebung.
Die gleichzeitige Nähe zum Ortskern (mit der wunderbaren historischen Struktur) bietet alle Annehmlichkeiten der vollumfänglich vorhandenen Infrastruktur, beginnend mit dem nur 100 m entfernten neuen Kindergarten, den Grund- und weiterführenden Schulen des Ortes, sowie auch die kurzen Wege für die tägliche Nahversorgung.


Aufgrund der Nähe zur Autobahn A43 und des ÖPNV ist Nottuln bestens an das überregionale Zentrum Münster angeschlossen.
Infrastruktur (im Umkreis von 5 km):
Apotheke, Lebensmittel-Discount, Allgemeinmediziner, Kindergarten, Grundschule, Hauptschule, Realschule, Gymnasium, Öffentliche Verkehrsmittel


Sonstige Angaben

Makleranfragen nicht erwünscht. Nach § 7 UWG sind unaufgeforderte Kontaktaufnahmen durch Makler ohne ausdrückliche Einwilligung des Empfängers verboten!


ohne-makler (OM) ist weder Anbieter noch Vermittler der Immobilie. OM betreibt eine Plattform für Immobilieneigentümer, die unter anderem die gleichzeitige Veröffentlichung einzelner Inserate auf mehreren Immobilienportalen ermöglicht. Die Inhalte dieser Inserate werden ausschließlich von Dritten verantwortet. Für die Richtigkeit, Vollständigkeit oder Rechtmäßigkeit der Angaben übernimmt OM keine Haftung. Hinweise auf mögliche Rechtsverstöße können jederzeit gemeldet werden und werden nach Prüfung umgehend bearbeitet.


Wohnung finden so einfach wie möglich - das ist unsere Mission!

Kostenlose Basic Features

0 € monatlich


  • Individuelles Such-Profil anlegen
  • Suchaufträge speichern
  • One-Klick Kontaktaufnahme

alles anzeigen

Jetzt kostenlos anmelden

Premium Features

19,99 € monatlich


  • Alle kostenlosen Features
  • Smart-Alarm per Whatsapp
  • Deine Chancen checken
  • Wohngegend analysieren

alles anzeigen

Jetzt Premium freischalten

Gewerblicher Anbieter

ohne-makler.net
Humboldtstraße 25 A
21509 Glinde

Wohnglück-ID:
Objekt-Nr.:
WGL-781395
388199