Doppelhaushälfte in Langerwehe (Luchem)

Balkon/­Terrasse
Keller
Einbauküche
Garage/­Stellplatz

TOPANGEBOT****großzügige DHH mit Garage und 4 Stellplätzen in toller Wohnlage***TOPANGEBOT

Anfragen bisher

Premium

Meine Chancen

Premium

Fairer Preis

Premium

365.000 €

Kaufpreis

137 m²

4 Zi.

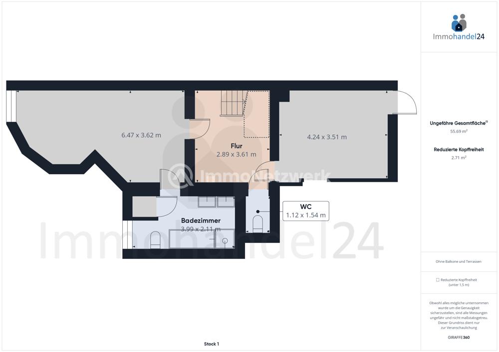
Grundriss

52379 Langerwehe

Gewerblicher Anbieter

ImmoNetzwerk GmbH
Kreuzstraße 65
52351 Düren

Details

Grundstücksfläche
530 m²
Zimmerzahl
4
Haustyp
Doppelhaushälfte
Etagenzahl
2
Anzahl Schlafzimmer
3
Anzahl Badezimmer
2
Anzahl Garage/ Stellplatz
1
Objektzustand
Gepflegt
Baujahr
1982

Kosten

Kaufpreis
365.000 €
Käuferprovision
2,38 % Käuferprovision inklusive gesetzlicher MwSt.
Was kostet dein Umzug?

Objektbeschreibung

Charmante Doppelhaushälfte zur Gestaltung Ihres Familiendomizils


Willkommen in Ihrem neuen Familienheim! Diese großzügige, vollunterkellerte Doppelhaushälfte (DHH) bietet mit ca. 137 m² Wohnfläche und einer Grundstücksgröße von ca. 530 m² reichlich Platz für Ihre Familienmomente.


Das 1982 erbaute Objekt wird von einer Gaszentralheizung aus dem Jahr 1997 beheizt. Ein Energieausweis liegt vor und belegt die Energieeffizienz des Objekts. Für alle, die sich gerne vorab einen räumlichen Eindruck verschaffen wollen, steht ein virtueller Rundgang zur Verfügung: https://tour.giraffe360.com/695fc7d33a9e44fc9874ae021d98e78e/


Eine der Highlights dieser Immobilie ist zweifelsohne das großzügige Büro im Souterrain, das ideale Bedingungen für Ihr Home Office bietet. Mit bis zu vier Stellplätzen direkt am Haus und einer großen Garage finden auch Ihre Fahrzeuge ihren Platz. Sogar ein zusätzlicher großer Stellplatz für ein Wohnmobil oder Wohnwagen ist vorhanden.


Im Obergeschoss erwarten Sie zwei Schlafzimmer und eine Loggia, die zum Entspannen einlädt. Ein vorhandener Kaminofen sorgt dabei für gemütliche Wärme an kühlen Tagen. Leichte Renovierungsarbeiten wie Maler- und Tapezierarbeiten geben Ihnen die Möglichkeit, die Immobilie ganz nach Ihrem Geschmack zu gestalten.


Auf der großen Terrasse mit Südausrichtung können Sie sonnige Tage genießen. Die inkludierte Küche und zwei Bäder, eines im Obergeschoss und eines im Souterrain, komplettieren das Angebot.


Das Haus befindet sich in einem sehr gepflegten Wohnviertel mit netter Nachbarschaft in 52379 Langerwehe Luchem


Zum Objekt gibt es einen virtuellen :
https://tour.giraffe360.com/695fc7d33a9e44fc9874ae021d98e78e/


Bausubstanz & Energieausweis

A+

A

B

C

D

E

F

G

H

Baujahr
1997
Objektzustand
Gepflegt
Wesentlicher Energieträger
GAS
Heizungsart
Zentralheizung
Befeuerung
Gasheizung
Energieausweis
liegt vor
Energieausweistyp
Verbrauchsausweis
Gültig bis
13.01.2034
Energieverbrauchskennwert
123 kWh/(m²*a)
Energieeffizienzklasse
D

Ausstattung

Ausstattungsmerkmale / Highlights :



  • Baujahr 1982

  • 137 m² Wohnfläche

  • großes Büro im Souterrain möglich

  • bis zu 4 Stellplätze direkt am Haus

  • große Garage

  • Gäste WC im Souterrain

  • 2 Schlafzimmer im 1. OG

  • Kaminofen vorhanden

  • sehr gepflegtes Wohnviertel

  • nette Nachbarschaft

  • Loggia im OG

  • große Terrasse mit Südausrichtung

  • Renovierungsarbeiten : klassische Maler .- und Tapezierarbeiten

  • verputzte Wände Struktur

  • Küche inklusive

  • neuer Naturstein im Treppenhaus

  • 2 Bäder ( 1. OG und Souterrain )

  • Holzfenster doppelverglast Meranti aus dem Baujahr 1982


Lagebeschreibung

Lage


Langerwehe Luchem glänzt durch eine hervorragende Infrastruktur und Anbindung. Alle Geschäfte und Dienstleistungen des täglichen Bedarfes finden Sie in unmittelbarer Nähe. Die Autobahn A4 bietet Ihnen eine sehr gute Verkehrsanbindung nach Aachen und Köln.


Darüber hinaus verfügt Langerwehe über einen Bahnhof mit ausgezeichneten Anbindungen, der Ihnen zusätzlich Mobilität gewährleistet. Ob für Pendler oder Ausflüge, mit dem Zug erreichen Sie bequem die Städte Aachen und Köln.


Die Doppelhaushälfte in Langerwehe Luchem vereint komfortables und flexibles Wohnen, ideale Voraussetzungen für Ihre Work-Life-Balance und eine Top-Lage im Stadtviertel. Ein perfektes Zuhause für Paare und Familien.


Sonstige Angaben

virtueller Rundgang :


https://tour.giraffe360.com/695fc7d33a9e44fc9874ae021d98e78e/


Wohnung finden so einfach wie möglich - das ist unsere Mission!

Kostenlose Basic Features

0 € monatlich


  • Individuelles Such-Profil anlegen
  • Suchaufträge speichern
  • One-Klick Kontaktaufnahme

alles anzeigen

Jetzt kostenlos anmelden

Premium Features

19,99 € monatlich


  • Alle kostenlosen Features
  • Smart-Alarm per Whatsapp
  • Deine Chancen checken
  • Wohngegend analysieren

alles anzeigen

Jetzt Premium freischalten

Gewerblicher Anbieter

ImmoNetzwerk GmbH
Kreuzstraße 65
52351 Düren

Wohnglück-ID:
Objekt-Nr.:
WGL-779769
StSt2205