Einzelhandel in Baden-Baden

barrierefrei

Klimatisiert: Laden, Lager, Produktion, Frisör, Physio, etc. 92 - 200qm

Anfragen bisher

Premium

Meine Chancen

Premium

Fairer Preis

Premium

76532 Baden-Baden

Gewerblicher Anbieter

ohne-makler.net
Humboldtstraße 25 A
21509 Glinde

Details

Verkaufsfläche
90 m²
Typ der Gewerbeimmobilie
Einzelhandel
Bezugsfrei ab
sofort
Baujahr
1989

Kosten

Was kostet dein Umzug?

Objektbeschreibung

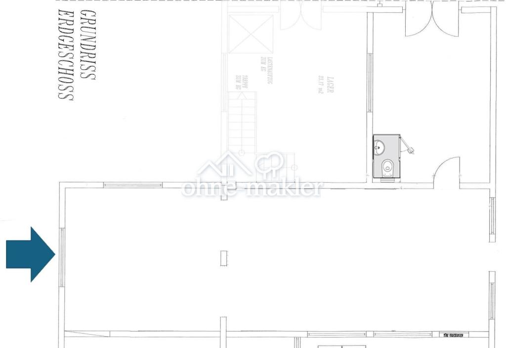
Angeboten wird eine Gewerbeeinheit aus drei zusammenhängenden Räumen in einem größeren Objekt. Es stehen bei Bedarf noch weitere Lagerräume inkl. eines Verbindungsraumes zur Verfügung. Auch zusätzliche Kellerräume (Lastenaufzug vorhanden) zum Lagern sind verfügbar. Die Räume werden mit einer Klimaanlage ausgestattet. Der Zugang erfolgt ebenerdig. Eine Nutzung zur Produktion (normale Raumhöhe, keine Halle nicht mit PKW befahrbar), aber auch als Verkaufsfläche ist denkbar. Auch Frisör/Kosmetik, Onlineshop, Physiopraxis oder andere Dienstleistungen passen gut zum Mietermix.


Eine Einfahrt mit Fahrzeugen ist nicht möglich!


Bausubstanz & Energieausweis

Heizungsart
Wärmepumpe
Befeuerung
Wärmepumpe
Energieausweis
liegt vor
Energieausweistyp
Bedarfsausweis

Ausstattung

Barrierefrei, Fliesen


Bemerkungen:
Das Gebäude ist massiv gebaut. Derzeit sind die Räume noch unrenoviert, nach Absprache kann vieles nach Mieterwunsch durch Mieter oder Vermieter entsprechend angepasst werden. Beispielsweise wird die Toilette neu gemacht, auf Wunsch auch mit Dusche oder separatem Kunden-WC etc. möglich. Die Böden sind gefliest, teilweise sind Fliesen an den Wänden. Eine neue Klimaanlage für gutes Raumklima wird ebenfalls eingebaut. Strom, Starkstrom (32A und 16A) und Wasseranschluss vorhanden. Aktuell sind die Räume unrenoviert und können entweder vom Mieter selbst oder von Vermieterseite (Berücksichtigung bei Miete) entsprechend den Anforderungen der Mieter gestaltet werden.
Ebenso kann die Raumaufteilung unter Beachtung statischer Bedingungen noch verändert werden.


Lagebeschreibung

Die Gewerberäume befinden sich im Gewerbegebiet Oos Nord, verkehrsgünstig gelegen (gut 5 Minuten Fußweg zum Bahnhof Baden-Baden, 2x Bus-Haltestellen in der Straße). Parkplätze sind vorhanden. Es gibt auch weitere Lagerräume im Gebäude, die zu günstigen Konditionen mit angemietet werden können. Supermarkt, Discounter, Bäcker, Autohaus, Gastronomie in direkter Nachbarschaft.
Infrastruktur (im Umkreis von 5 km):
Apotheke, Lebensmittel-Discount, Kindergarten, Grundschule, Gymnasium, Öffentliche Verkehrsmittel


Sonstige Angaben

Heizungsart: Sonstiges (s. Text)
Energieträger: Luft-/Wasserwärme


Makleranfragen nicht erwünscht. Nach § 7 UWG sind unaufgeforderte Kontaktaufnahmen durch Makler ohne ausdrückliche Einwilligung des Empfängers verboten!


ohne-makler (OM) ist weder Anbieter noch Vermittler der Immobilie. OM betreibt eine Plattform für Immobilieneigentümer, die unter anderem die gleichzeitige Veröffentlichung einzelner Inserate auf mehreren Immobilienportalen ermöglicht. Die Inhalte dieser Inserate werden ausschließlich von Dritten verantwortet. Für die Richtigkeit, Vollständigkeit oder Rechtmäßigkeit der Angaben übernimmt OM keine Haftung. Hinweise auf mögliche Rechtsverstöße können jederzeit gemeldet werden und werden nach Prüfung umgehend bearbeitet.


Wohnung finden so einfach wie möglich - das ist unsere Mission!

Kostenlose Basic Features

0 € monatlich


  • Individuelles Such-Profil anlegen
  • Suchaufträge speichern
  • One-Klick Kontaktaufnahme

alles anzeigen

Jetzt kostenlos anmelden

Premium Features

19,99 € monatlich


  • Alle kostenlosen Features
  • Smart-Alarm per Whatsapp
  • Deine Chancen checken
  • Wohngegend analysieren

alles anzeigen

Jetzt Premium freischalten

Gewerblicher Anbieter

ohne-makler.net
Humboldtstraße 25 A
21509 Glinde

Wohnglück-ID:
Objekt-Nr.:
WGL-779047
395617