Einzelhandel in Achern

barrierefrei
Garage/­Stellplatz

Möblierte Ausstellungs- und Bürofläche in zentraler Lage in Achern / erweiterbar um Werkstatt

Anfragen bisher

Premium

Meine Chancen

Premium

Fairer Preis

Premium

2.500 €

Kaltmiete

77855 Achern

Gewerblicher Anbieter

ohne-makler.net
Humboldtstraße 25 A
21509 Glinde

Details

Verkaufsfläche
220 m²
Typ der Gewerbeimmobilie
Einzelhandel
Etagenzahl
2
Bezugsfrei ab
01.10.2025
Anzahl Garage/ Stellplatz
1
Objektzustand
Gepflegt
Baujahr
2000

Kosten

Kaltmiete
2.500 €
Nebenkosten
600 €
Was kostet dein Umzug?

Stellplätze

Stellplatztyp
Freiplatz
Anzahl
5

Objektbeschreibung

Diese moderne und lichtdurchflutete Büro- und Ausstellungsfläche im Gewerbegebiet von Achern bietet Ihnen auf 220 m² eine ideale Arbeitsumgebung. Profitieren Sie von einer hervorragenden Ausstattung und einer zentralen Lage.


Highlights:
•Optisch ansprechend: Ein modernes und gut gepflegtes Gebäude, welches durch raumhohe Verglasung optisch heraussticht und viel Tageslicht bietet.
•Geräumige Büro- und Ausstellungsflächen: Viel Platz für Büros, Ausstellungen oder zusätzliche Arbeitsbereiche.
•Möblierung: Sorgenfrei einziehen - Hochwertige Ausstattung: Klimaanlage, Küchenzeile, Sonnenschutz, Stehtisch inkl. Barhocker, Ledersitzlounge, TV, Catering-Sideboard inkl. Kühlschrank, Besprechungstisch, Glasvitrine, Büromöbel, Schränke, Sitzmöbel, Akustik Deckensegel und Vieles mehr im Mietpreis inklusive.
•Klimaanlage: Das Gebäude ist mit einer modernen Klimaanlage ausgestattet.
•Sicherheitsausstattung: Videoüberwachung auf dem gesamten Außenanlagen-Gelände vorhanden.
•Energieversorgung: Eine Photovoltaikanlage wird in Kürze installiert, um Ihre Stromkosten zu senken.
•Verkehrsanbindung: Sehr gute Anbindung an das Verkehrsnetz – in nur fünf Fahrminuten erreichen Sie die Autobahn Richtung Karlsruhe / Basel.
•Zentrumsnähe: Kurze Wege ins Stadtzentrum von Achern – alles, was Sie brauchen, ist in der Nähe.
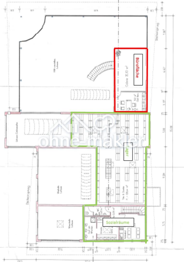
•Erweiterbar um Werkstatt: Angrenzend an die Büro-und Ausstellungsfläche befindet sich eine 670 m² große Werkstatt inkl. Lagerfläche, Sozialräume und großer Annahmefläche (Fläche auf dem Grundriss in grün markiert), welche optional ebenfalls mitvermietet werden kann.


Die Büro-und Ausstellungsfläche (auf dem Grundriss in rot markiert) befindet sich in einem sehr guten Zustand.


Fünf Parkplätze sind bei der Anmietung der gesamten 220 m² im Mietpreis inbegriffen. Weitere Stellplätze können für 20 € / Stellplatz monatlich optional hinzugebucht werden.


Es fällt keine Maklerprovision an.


Für weitere Informationen oder zur Vereinbarung eines Besichtigungstermins kontaktieren Sie uns bitte.


Wir freuen uns auf Ihre Anfrage!


Bausubstanz & Energieausweis

Objektzustand
Gepflegt
Heizungsart
Sonstige
Energieausweis
liegt vor
Energieausweistyp
Verbrauchsausweis

Ausstattung

Barrierefrei, Fliesen


Lagebeschreibung

Achern hat etwa 25.000 Einwohner und ist somit eine mittelgroße Stadt. Die Stadt ist bekannt für ihre malerische Lage am Fuße des Schwarzwaldes und bietet eine hohe Lebensqualität. Durch ihre zentrale Lage im Südwesten Deutschlands, in unmittelbarer Nähe zu den größeren Städten Karlsruhe und Straßburg, profitiert Achern von einer hervorragenden Verkehrsanbindung und einer hohen Attraktivität für Unternehmen. Durch die Nähe zu Autobahnen und internationalen Flughäfen, insbesondere dem Flughafen Karlsruhe/Baden-Baden, ist Achern für Unternehmen von überregionaler Bedeutung gut erreichbar.
Ein weiterer wichtiger Aspekt von Achern ist die gute Anbindung an den öffentlichen Nahverkehr. Die Stadt liegt an der Bahnstrecke von Karlsruhe nach Freiburg, was eine schnelle Erreichbarkeit anderer Städte ermöglicht.
Insgesamt bietet Achern ein dynamisches und wachsendes wirtschaftliches Umfeld, das sowohl großen Unternehmen als auch kleinen und mittelständischen Betrieben hervorragende Perspektiven bietet. Die Kombination aus günstiger Lage, guter Infrastruktur und vielfältigen Branchen macht die Stadt zu einem bedeutenden Wirtschaftsstandort in der Region.


Sonstige Angaben

Makleranfragen nicht erwünscht. Nach § 7 UWG sind unaufgeforderte Kontaktaufnahmen durch Makler ohne ausdrückliche Einwilligung des Empfängers verboten!


ohne-makler (OM) ist weder Anbieter noch Vermittler der Immobilie. OM betreibt eine Plattform für Immobilieneigentümer, die unter anderem die gleichzeitige Veröffentlichung einzelner Inserate auf mehreren Immobilienportalen ermöglicht. Die Inhalte dieser Inserate werden ausschließlich von Dritten verantwortet. Für die Richtigkeit, Vollständigkeit oder Rechtmäßigkeit der Angaben übernimmt OM keine Haftung. Hinweise auf mögliche Rechtsverstöße können jederzeit gemeldet werden und werden nach Prüfung umgehend bearbeitet.


Wohnung finden so einfach wie möglich - das ist unsere Mission!

Kostenlose Basic Features

0 € monatlich


  • Individuelles Such-Profil anlegen
  • Suchaufträge speichern
  • One-Klick Kontaktaufnahme

alles anzeigen

Jetzt kostenlos anmelden

Premium Features

19,99 € monatlich


  • Alle kostenlosen Features
  • Smart-Alarm per Whatsapp
  • Deine Chancen checken
  • Wohngegend analysieren

alles anzeigen

Jetzt Premium freischalten

Gewerblicher Anbieter

ohne-makler.net
Humboldtstraße 25 A
21509 Glinde

Wohnglück-ID:
Objekt-Nr.:
WGL-776688
382222