Doppelhaushälfte in Quickborn

Das Rundum-Sorglos-Paket

Anfragen bisher

Premium

Meine Chancen

Premium

Fairer Preis

Premium

620.000 €

Kaufpreis

105 m²

4 Zi.

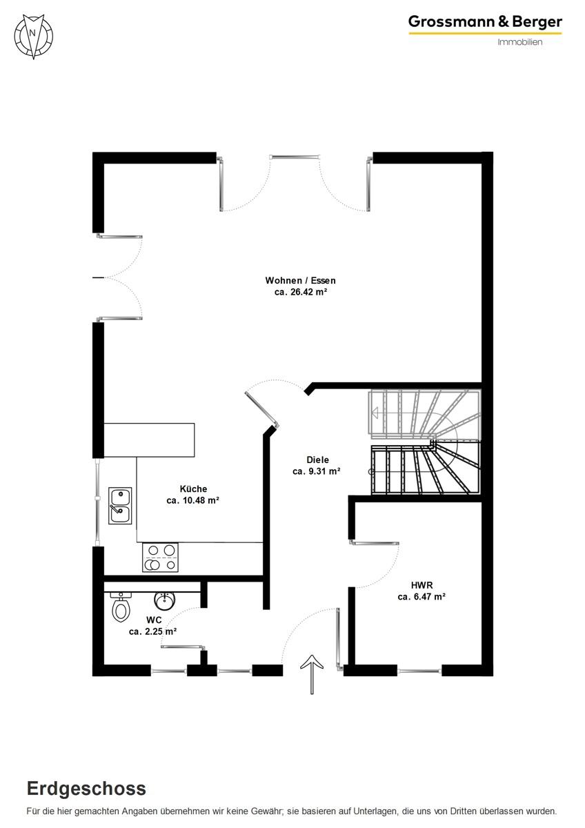
Grundriss

25451 Quickborn

Gewerblicher Anbieter

Grossmann & Berger GmbH
Rathausallee 27a
22846 Norderstedt

Details

Grundstücksfläche
441 m²
Zimmerzahl
4
Haustyp
Doppelhaushälfte
Anzahl Badezimmer
1
Objektzustand
Erstbezug
Baujahr
2026

Kosten

Kaufpreis
620.000 €
Käuferprovision
8.032,50 € inkl. MwSt. (entspricht 3,57% berechnet auf den Grundstückspreis)
Was kostet dein Umzug?

Objektbeschreibung

Bei diesem Angebot handelt es sich um eine Neubau-Doppelhaushälfte, welche vom Bauunternehmen Dirk Kage GmbH auf einem ca. 441 m² großen Grundstück errichtet wird. Derzeit befindet sich auf dem insgesamt ca. 896 m² großen Grundstück noch ein älteres Bestandsgebäude. Die Kosten für den Abriss der Bestandsimmobilie wird zwischen den beiden Doppelhauspartner geteilt. Die Courtage in Höhe von 3,57 % inklusive MwSt. ist jeweils zu zahlen auf den Grundstücksanteil - hier in Höhe von 225.000,00 €. Der ausgewiesene Kaufpreis bezieht sich auf den Ankauf des Grundstücks, die Erstellungskosten des Hauses sowie die Baunebenkosten. Diese sind in dem Angebotspreis bereits enthalten. Eine Aufstellung der Baunebenkostenzusammensetzung lassen wir Ihnen gern zukommen. Die dafür veranschlagten Kosten verstehen sich als vorläufige Kalkulation und können im Einzelfall noch variieren. Die abgebildeten Einrichtungs- und Ausstattungsgegenstände sind als Beispiele zu verstehen. Die Maße des abgebildeten Objektes können von der tatsächlichen Größe abweichen. Baurechtliche und bautechnische Änderungen bleiben vorbehalten. Maßgebend für die Häuser ist der notariell geschlossene Kaufvertrag.


Bausubstanz & Energieausweis

Objektzustand
Erstbezug
Heizungsart
Sonstige

Ausstattung

Die Doppelhaushälfte bietet vier Zimmer auf ca. 105 m² Wohnfläche. Bei der derzeitigen Planung stehen Ihnen im Erdgeschoss eine großzügige Diele, ein Gäste-WC, ein Hauswirtschaftsraum sowie der große Wohn- und Essbereich mit offener Küche zur Verfügung. Das Dachgeschoss verfügt über drei Schlaf- bzw. Kinderzimmer sowie ein Vollbad.
Das Haus erhält eine energieeffiziente Luft-Wasser-Wärmepumpe und eine Fußbodenheizung im Erd- und im Dachgeschoss. Außerdem wird eine kontrollierte Be- und Entlüftungsanlage installiert. Das Leistungsspektrum beinhaltet darüber hinaus auch Fenster mit erhöhter Sicherheit.
Malerarbeiten (Malervlies mit Anstrich) sind im Preis inbegriffen, ebenso wie die Oberbelagsarbeiten (in allen nicht gefliesten Räumen, Designfußboden, diverse Dekore stehen zur Auswahl). Außerdem enthalten sind das Bodengutachten, die Mehrspartenhauseinführung sowie das Gartenpaket.
Weitere Details können direkt mit dem Bauträger besprochen oder der umfangreichen Baubeschreibung entnommen werden, die wir Ihnen gern zur Verfügung stellen.


Lagebeschreibung

Diese Doppelhaushälfte befindet sich in einer ruhigen und dennoch zentralen Lage in Quickborn. Die Umgebung bietet eine perfekte Mischung aus ländlichem Charme und städtischen Annehmlichkeiten, die ein ideales Wohnumfeld für Familien und Berufspendler darstellt.
Die Anbindung an den öffentlichen Nahverkehr ist hervorragend, mit einer Bushaltestelle, die nur etwa 550 Meter entfernt liegt und der AKN-Station "Quickborn Süd", welche sich ca. einen Kilometer entfernt befindet. Die AKN-Bahnlinie wird derzeit zur S-Bahn ausgebaut. Die nächste Autobahnanbindung liegt lediglich 3,8 Kilometer entfernt.
Familien mit Kindern profitieren von der günstigen Nähe zu mehreren Bildungseinrichtungen. Ein Kindergarten ist nur 750 Meter entfernt, während eine Grundschule und ein Gymnasium in weniger als einem Kilometer zu erreichen sind. Ein Spielplatz ist fußläufig entfernt. Auch für den täglichen Bedarf ist gesorgt, mit Einkaufsmöglichkeiten in einer bequemen Entfernung von 800 Metern. Freizeitaktivitäten bietet Quickborn ebenfalls mit dem Kino, einem Freibad sowie diversen Sportvereinen.


Sonstige Angaben

Hinweis:
Angaben nach GEG: Energieausweis befindet sich in Erstellung.


Wohnung finden so einfach wie möglich - das ist unsere Mission!

Kostenlose Basic Features

0 € monatlich


  • Individuelles Such-Profil anlegen
  • Suchaufträge speichern
  • One-Klick Kontaktaufnahme

alles anzeigen

Jetzt kostenlos anmelden

Premium Features

19,99 € monatlich


  • Alle kostenlosen Features
  • Smart-Alarm per Whatsapp
  • Deine Chancen checken
  • Wohngegend analysieren

alles anzeigen

Jetzt Premium freischalten

Gewerblicher Anbieter

Grossmann & Berger GmbH
Rathausallee 27a
22846 Norderstedt

Wohnglück-ID:
Objekt-Nr.:
WGL-776284
WB 8340