Wohn-Grundstück in Ansbach

Ihr Projekt im Herzen Ansbachs! Genehmigtes 5-Parteienhaus - moderner Wohnkomfort mit vielen Extras

Anfragen bisher

Premium

Meine Chancen

Premium

Fairer Preis

Premium

200.000 €

Kaufpreis

91522 Ansbach

Gewerblicher Anbieter

VON POLL IMMOBILIEN Ansbach - Wittmann Real Estate GmbH
Karlstraße 9
91522 Ansbach

Details

Grundstücksfläche
729 m²
Typ des Grundstücks
Wohn-Grundstück

Kosten

Kaufpreis
200.000 €
Käuferprovision
Käuferprovision beträgt 3,57 % (inkl. MwSt.) des beurkundeten Kaufpreises
Was kostet dein Umzug?

Objektbeschreibung

In begehrter Lage südlich des Stadtzentrums präsentiert sich dieses rund 729 m² große Grundstück als hervorragende Investitionsmöglichkeit für Bauträger, Projektentwickler oder Kapitalanleger. Die Kombination aus einer gewachsenen Wohnlage, guter Erreichbarkeit und bereits bestehender baurechtlicher Grundlage macht dieses Grundstück besonders attraktiv für die Realisierung eines modernen Mehrfamilienhauses.


Die Umgebung zeichnet sich durch eine sehr gute Infrastruktur aus: Einkaufsmöglichkeiten, Schulen, Kitas, ärztliche Versorgung und Freizeitangebote befinden sich in direkter Nähe und sind bequem zu Fuß erreichbar. Auch die Anbindung an den öffentlichen Nahverkehr sowie an überregionale Verkehrswege ist ausgezeichnet – ein idealer Standort für zentrumsnahes und dennoch ruhiges Wohnen.


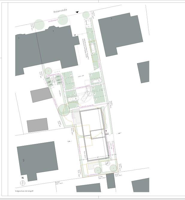
Für das Grundstück liegt bereits ein positiver Vorbescheid zur Errichtung eines Mehrfamilienhauses vor. Vorgesehen ist derzeit die Bebauung mit einem 5-Familienhaus, das durch eine großzügige Penthouse-Wohnung im obersten Geschoss abgerundet wird – ein modernes Wohnkonzept, das sowohl Kapitalanleger als auch Eigennutzer anspricht. Alternativ besteht die Möglichkeit, ein klassisches 6-Familienhaus zu realisieren. Diese Flexibilität erlaubt eine Anpassung an unterschiedliche Zielgruppen und Marktbedürfnisse.


Auch an die notwendige Infrastruktur für die zukünftigen Bewohner wurde gedacht: Ausreichend Stellplätze sind auf dem Grundstück einplanbar und gewährleisten einen hohen Wohnkomfort.


Insgesamt bietet dieses Grundstück eine seltene Gelegenheit, in guter Lage ein zukunftsorientiertes Wohnprojekt umzusetzen – sei es zur langfristigen Vermietung, als Teilverkauf oder zur Eigennutzung. Die solide Lage, die planungsrechtliche Klarheit und die vielfältigen Bebauungsmöglichkeiten machen dieses Angebot zu einer besonders interessanten Option im städtischen Raum.


Bausubstanz & Energieausweis

Heizungsart
Sonstige

Ausstattung

Nachfolgend zusammengefasst einige Highlights in der Aufzählung:



  • Ca. 729 m² Grundstücksfläche

  • südlich vom Stadtzentrum gelegen

  • Sehr gute Infrastruktur

  • Viele gut fußläufig erreichbar

  • Vorbescheid über die Errichtung eines Mehrfamilienhauses liegt vor

  • 5-Familienhaus mit einer großzügige Penthouse-Wohnung im Obergeschoss möglich

  • Alternativ ist auch ein klassisches 6-Familienhaus projektierbar

  • Zusätzlich sind ausreichend Stellplätze geplant


Dies sind nur einige der Möglichkeiten dieser ertragreichen Investitionsmöglichkeit. Überzeugen Sie sich selbst bei einer persönlichen Besichtigung vor Ort. Wir freuen uns auf Ihre Anfrage.


Lagebeschreibung

Die Stadt Ansbach mit ca. 40.000 Einwohnern liegt sehr verkehrsgünstig direkt an der B14 und B13 sowie der Autobahn A6. Der Landkreis Ansbach zählt derzeit ca. 180.000 Einwohner. Die Metropolregion Nürnberg / Fürth / Erlangen erreichen Sie in max. 30 Minuten mit dem Auto oder bequem mit der S-Bahn. Bushaltestellen des öffentlichen Nahverkehrs sowie der Bahnhof und Einkaufsmöglichkeiten befinden sich in der Umgebung. Das Anwesen selbst befindet sich verkehrsgünstig sehr gut gelegen direkt an der Westtangente, so dass eine perfekte Verbindung in alle Richtungen gegeben ist.


Grundschule, Realschule und mehrere Gymnasien, sowie eine Reihe von Kindergärten sind vor Ort. Ärzte, Apotheken und ein Krankenhaus gewährleisten die gesundheitliche Versorgung. Bäcker, Metzger und Lebensmittelmarkt sind in unmittelbarer Nähe. Das große Einkaufszentrum Brückencenter beheimatet eine Reihe von unterschiedlichen Geschäften für jeden Bedarf und lädt zum Besuch ein.


Ansbach ist nicht nur Wirtschafts- sondern auch Wohnstandort. Ein reichhaltiges Kultur- und Freizeitangebot verbunden mit vielschichtigen Einkaufsmöglichkeiten und einem landschaftlich reizvollen Umland schaffen in Ansbach ein attraktive Lebensqualität.


Sonstige Angaben

GELDWÄSCHE: Als Immobilienmaklerunternehmen ist die von Poll Immobilien GmbH nach § 2 Abs. 1 Nr. 14 und § 11 Abs. 1, 2 Geldwäschegesetz (GwG) dazu verpflichtet, bei der Begründung einer Geschäftsbeziehung die Identität des Vertragspartners festzustellen und zu überprüfen, bzw. sobald ein ernsthaftes Interesse an der Durchführung des Immobilienkaufvertrages besteht. Hierzu ist es erforderlich, dass wir nach § 11 Abs. 4 GwG die relevanten Daten Ihres Personalausweises festhalten (wenn Sie als natürliche Person handeln) – beispielsweise mittels einer Kopie. Bei einer juristischen Person benötigen wir eine Kopie des Handelsregisterauszugs, aus welchem der wirtschaftlich Berechtigte hervorgeht. Das Geldwäschegesetz sieht vor, dass der Makler die Kopien bzw. Unterlagen fünf Jahre aufbewahren muss. Als unser Vertragspartner haben Sie auch eine Mitwirkungspflicht nach § 11 Abs. 6 GwG.


HAFTUNG: Wir weisen darauf hin, dass die von uns weitergegebenen Objektinformationen, Unterlagen, Pläne etc. vom Verkäufer bzw. Vermieter stammen. Eine Haftung für die Richtigkeit oder Vollständigkeit der Angaben übernehmen wir daher nicht. Es obliegt daher unseren Kunden, die darin enthaltenen Objektinformationen und Angaben auf ihre Richtigkeit hin zu überprüfen. Alle Immobilienangebote sind freibleibend und vorbehaltlich Irrtümer, Zwischenverkauf- und Vermietung oder sonstiger Zwischenverwertung.


UNSER SERVICE FÜR SIE ALS EIGENTÜMER:
Planen Sie den Verkauf oder die Vermietung Ihrer Immobilie, so ist es für Sie wichtig, deren Marktwert zu kennen. Lassen Sie kostenfrei und unverbindlich den aktuellen Wert Ihrer Immobilie professionell durch einen unserer Immobilienspezialisten einschätzen. Unser bundesweites und internationales Netzwerk ermöglicht es uns, Verkäufer bzw. Vermieter und Interessenten bestmöglich zusammenzuführen.


Wohnung finden so einfach wie möglich - das ist unsere Mission!

Kostenlose Basic Features

0 € monatlich


  • Individuelles Such-Profil anlegen
  • Suchaufträge speichern
  • One-Klick Kontaktaufnahme

alles anzeigen

Jetzt kostenlos anmelden

Premium Features

19,99 € monatlich


  • Alle kostenlosen Features
  • Smart-Alarm per Whatsapp
  • Deine Chancen checken
  • Wohngegend analysieren

alles anzeigen

Jetzt Premium freischalten

Gewerblicher Anbieter

VON POLL IMMOBILIEN Ansbach - Wittmann Real Estate GmbH
Karlstraße 9
91522 Ansbach

Wohnglück-ID:
Objekt-Nr.:
WGL-776216
25208750