Mehrfamilienhaus in Illingen (Uchtelfangen)

Garten/­-mitbenutzung
Garage/­Stellplatz

Großzügiges Zweifamilienhaus mit Einliegerwohnung, Garten und Tiefgarage in Illingen-Uchtelfangen

Anfragen bisher

Premium

Meine Chancen

Premium

Fairer Preis

Premium

515.000 €

Kaufpreis

245 m²

9 Zi.

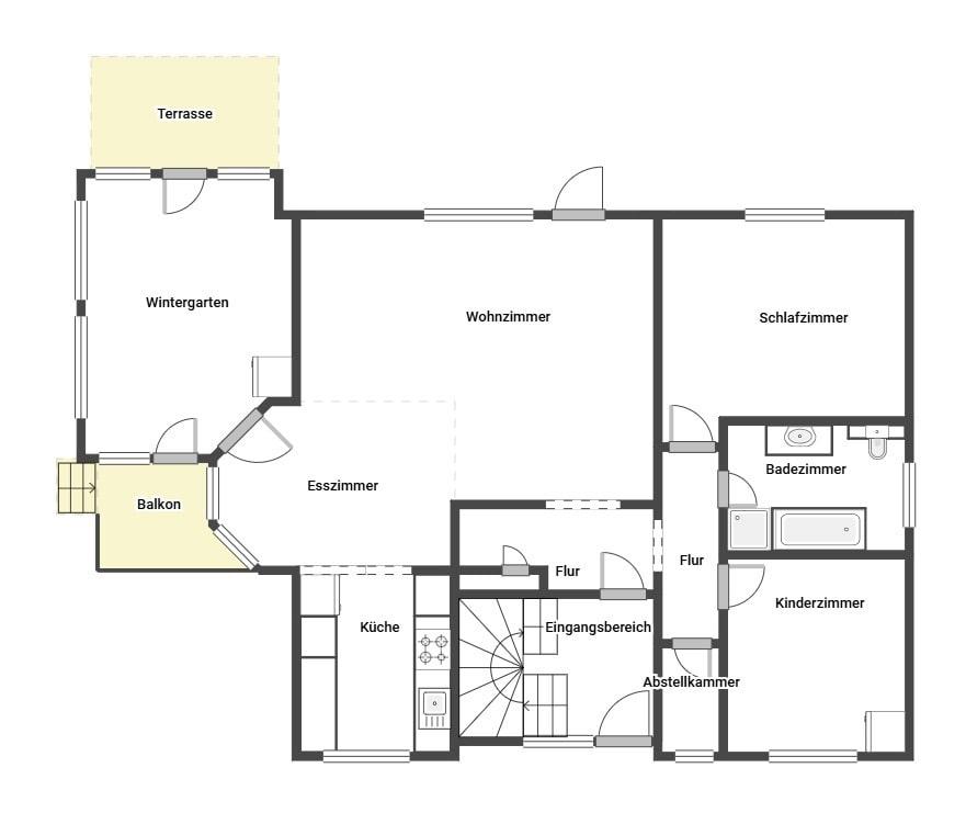
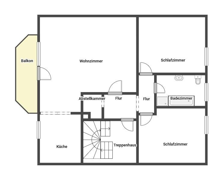
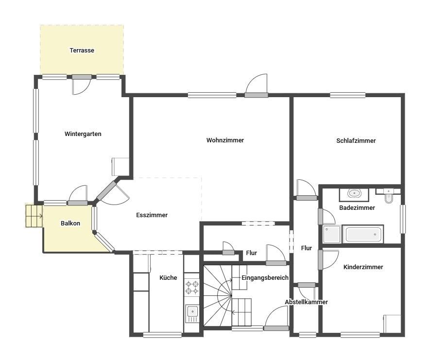
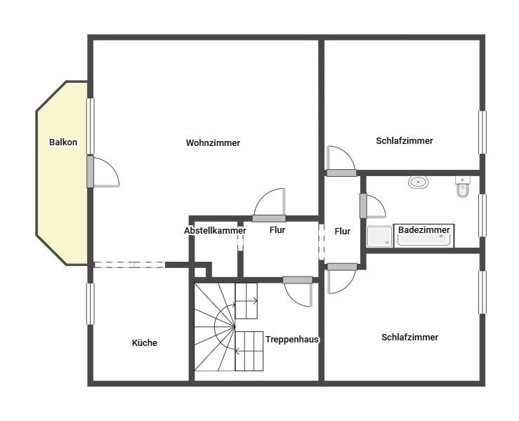
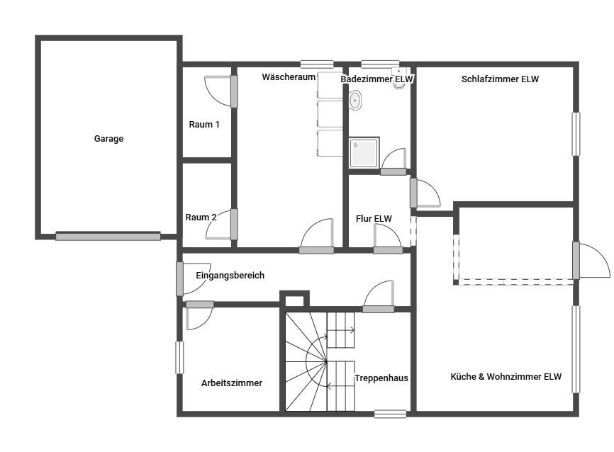
Grundriss

66557 Illingen

Gewerblicher Anbieter

Bank 1 Saar Immobilien GmbH
Kaiserstr. 17-19
66111 Saarbrücken

Details

Grundstücksfläche
996 m²
Zimmerzahl
9
Haustyp
Mehrfamilienhaus
Etagenzahl
3
Anzahl Schlafzimmer
5
Anzahl Badezimmer
3
Anzahl Garage/ Stellplatz
1
Objektzustand
Gepflegt
Letzte Modernisierung/ Sanierung
2025
Baujahr
1994

Kosten

Kaufpreis
515.000 €
Käuferprovision
3,57 %
Was kostet dein Umzug?

Stellplätze

Stellplatztyp
Freiplatz
Anzahl
7

Objektbeschreibung

In zentraler Lage von Illingen-Uchtelfangen erwartet Sie dieses gepflegte und großzügige Zweifamilienhaus mit Einliegerwohnung. Das 1993 errichtete Wohnhaus bietet auf drei Ebenen eine Wohnfläche mit 9 Zimmern, die sowohl für eine Mehrgenerationennutzung, zur teilweisen Vermietung oder als Kapitalanlage hervorragend geeignet ist.


Ein weiteres Highlight ist der im Jahr 2025 neu errichtete Wintergarten, der dem Haus eine helle, moderne Note verleiht und zusätzlichen Wohnkomfort bietet.


Die Ausstattung im Überblick:



  • Baujahr 1993, Wintergarten-Anbau von 2025

  • je eine Wohneinheit im Erdgeschoß und Dachgeschoß plus Einliegerwohnung im Untergeschoß mit zwei eigenen Zugängen

  • jeweils ein Bad pro Wohneinheit

  • großzügiger Grundriss mit 9 Zimmern (UG 2, EG 4, DG 3)

  • Holzfenster, doppelt verglast

  • Gasetagenheizungen

  • Fußböden überwiegend Laminat

  • Ziegeldach gedämmt und in gutem Zustand

  • Einbauküche im Erdgeschoss (ca. 10–15 Jahre alt)

  • Drainage vorhanden

  • schöner Garten mit zwei Gartenhäusern, zwei Terrassen, Teich und einem Balkon im Obergeschoss

  • Tiefgarage und weitere Stellmöglichkeiten vor dem Haus


Das Dachgeschoss weist einen gewissen Renovierungsbedarf auf – insbesondere fehlen die Bodenbeläge – und bietet Ihnen die Möglichkeit, den Bereich nach eigenen Vorstellungen fertigzustellen.


Das Haus wird komplett leerstehend verkauft und kann somit kurzfristig übernommen werden.


Ihr Immobilienspezialist im Saarland!


Bausubstanz & Energieausweis

A+

A

B

C

98,9 kWh/(m²*a)

D

E

F

G

H

Baujahr
1994
Objektzustand
Gepflegt
Letzte Modernisierung
2025
Wesentlicher Energieträger
Gas
Heizungsart
Etagenheizung
Befeuerung
Gasheizung
Energieausweis
liegt vor
Energieausweistyp
Bedarfsausweis
Ausstellungsdatum
28.08.2025
Gültig bis
27.08.2035
Energieeffizienzklasse
C
Endenergiebedarf
98,9 kWh/(m²*a)

Ausstattung

Individuelle Ausstattungsmerkmale:

- Garten/ Gartenmitbenutzung
- Garage/ Stellplatz


Lagebeschreibung

Das Anwesen liegt in Illingen-Uchtelfangen, einem beliebten Wohnort mit guter Infrastruktur und angenehmem Umfeld. Einkaufsmöglichkeiten, Schulen, Kindergärten sowie ärztliche Versorgung sind im Ort und in der Umgebung vorhanden.


Die Verkehrsanbindung ist hervorragend:


Autobahn A1 und A8 sind in wenigen Minuten erreichbar und verbinden Uchtelfangen mit den Städten Saarbrücken, Neunkirchen und Trier.


Über die öffentlichen Verkehrsmittel (Busverbindungen im Ort) besteht eine gute Anbindung an das regionale ÖPNV-Netz.


Eine Lage, die sowohl ruhiges Wohnen im Grünen als auch eine schnelle Erreichbarkeit der umliegenden Städte ermöglicht.


Sonstige Angaben

Sprechen Sie uns gerne auf eine Finanzierung bei unserer Hausbank an.
Sie bekommen sehr kurzfristig einen persönlichen Termin für eine Baufinanzierungsberatung. Dank regionaler Fachexpertise können wir schnell ein attraktives Angebot unterbreiten und Ihren Traum vom Haus kompetent realisieren!


Wohnung finden so einfach wie möglich - das ist unsere Mission!

Kostenlose Basic Features

0 € monatlich


  • Individuelles Such-Profil anlegen
  • Suchaufträge speichern
  • One-Klick Kontaktaufnahme

alles anzeigen

Jetzt kostenlos anmelden

Premium Features

19,99 € monatlich


  • Alle kostenlosen Features
  • Smart-Alarm per Whatsapp
  • Deine Chancen checken
  • Wohngegend analysieren

alles anzeigen

Jetzt Premium freischalten

Gewerblicher Anbieter

Bank 1 Saar Immobilien GmbH
Kaiserstr. 17-19
66111 Saarbrücken

Wohnglück-ID:
Objekt-Nr.:
WGL-770809
007101#eBkRJ