Reihenhaus in Niederzier

Balkon/­Terrasse

"Ideal für alle Handwerker!" Sanierungsbedürftiges Einfamilienhaus mit potenzialstarkem Grundstück

Anfragen bisher

Premium

Meine Chancen

Premium

Fairer Preis

Premium

115.000 €

Kaufpreis

132 m²

5 Zi.

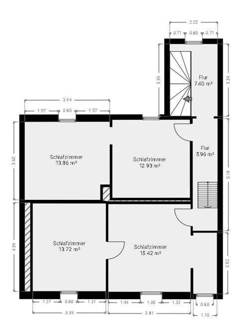
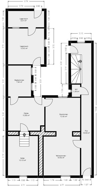
Grundriss

52382 Niederzier / Hambach

Gewerblicher Anbieter

Sparkassen-Immobilien GmbH
Zehnthofstr. 15-21
52349 Düren

Details

Grundstücksfläche
921 m²
Zimmerzahl
5
Haustyp
Reihenhaus
Etagenzahl
2
Bezugsfrei ab
nach Vereinbarung
Anzahl Schlafzimmer
4
Anzahl Badezimmer
1
Objektzustand
Sanierungsbedürftig
Baujahr
1920

Kosten

Kaufpreis
115.000 €
Käuferprovision
3,57 % inkl. ges. MwSt vom beurkundeten Kaufpreis
Was kostet dein Umzug?

Objektbeschreibung

Dieses Reihenmittelhaus befindet sich auf einem beeindruckend großen Grundstück von 921 m² in der beliebten und ruhigen Wohnlage von Niederzier-Hambach. Das Grundstück bietet nicht nur ausreichend Platz für individuelle Gestaltungsmöglichkeiten, sondern auch Potenzial für eine großzügige Gartenanlage oder einen Neubau.


Das Haus wurde Schätzungen zu Folge ca. 1920 erbaut und nach dem Krieg neu errichtet. Das Haus selbst muss entweder vollständig kernsaniert oder abgerissen und neu gebaut werden. Derzeit befindet sich das Gebäude in einem sanierungsbedürftigen Zustand, was Ihnen jedoch die Möglichkeit gibt, das Objekt nach Ihren eigenen Vorstellungen und Wünschen zu gestalten. Hier können Sie Ihr Traumhaus verwirklichen – ob als modernes Reihenhaus oder als individuelles Neubauprojekt.


Mit einer Wohnfläche von ca. 132 m² und einer Grundstücksfläche von 921 m² bietet das Haus ausreichend Platz für eine großzügige Wohnraumgestaltung. Nutzen Sie die Chance, auf diesem weitläufigen Grundstück ein Zuhause nach Ihren Vorstellungen zu schaffen!


Bausubstanz & Energieausweis

A+

A

B

C

D

E

F

G

H

600,9 kWh/(m²*a)

Baujahr
1980
Objektzustand
Sanierungsbedürftig
Wesentlicher Energieträger
HOLZ
Heizungsart
Ofenheizung
Energieausweis
liegt vor
Energieausweistyp
Bedarfsausweis
Gültig bis
23.06.2035
Energieeffizienzklasse
H
Endenergiebedarf
600,9 kWh/(m²*a)

Ausstattung


  • teilweise unterkellert

  • einfachverglaste Holzfenster

  • ausbaufähiges Dachgeschoss

  • Kohleheizung


Sonstige Angaben

Wir bitten um Verständnis, dass Besichtigungstermine erst nach Vorlage eines entsprechenden Finanzierungszertifikates abgestimmt werden können. Selbstverständlich stehen wir Ihnen gerne für ein unverbindliches Finanzierungsgespräch zur Verfügung und beraten Sie gerne hinsichtlich möglicher Förderungen etc. Sprechen Sie uns einfach an.


Wohnung finden so einfach wie möglich - das ist unsere Mission!

Kostenlose Basic Features

0 € monatlich


  • Individuelles Such-Profil anlegen
  • Suchaufträge speichern
  • One-Klick Kontaktaufnahme

alles anzeigen

Jetzt kostenlos anmelden

Premium Features

19,99 € monatlich


  • Alle kostenlosen Features
  • Smart-Alarm per Whatsapp
  • Deine Chancen checken
  • Wohngegend analysieren

alles anzeigen

Jetzt Premium freischalten

Gewerblicher Anbieter

Sparkassen-Immobilien GmbH
Zehnthofstr. 15-21
52349 Düren

Wohnglück-ID:
Objekt-Nr.:
WGL-770504
10012278