Wohnung in Augsburg (Kriegshaber)

Aufzug
Balkon/­Terrasse
barrierefrei
Dachboden
Einbauküche
Garage/­Stellplatz

NEUBAU: barrierefreie 2 Z-Wohnung 3. OG mit EBK, Balkon & TG

Anfragen bisher

Premium

Meine Chancen

Premium

Fairer Preis

Premium

1.100 €

Kaltmiete

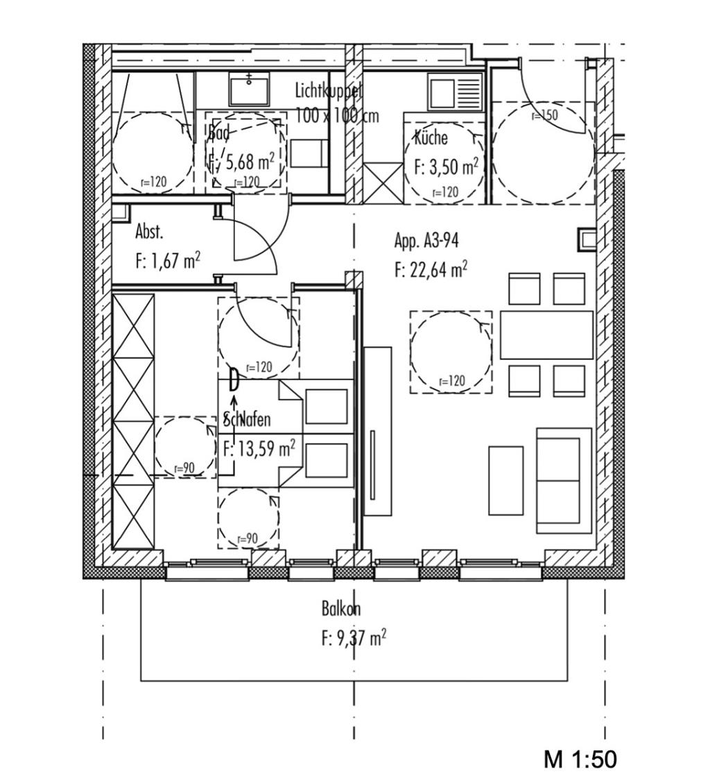
51,77 m²

2 Zi.

3. OG

Grundriss

Tunnelstr. 94
86156 Augsburg Kriegshaber

Privater Anbieter

Details

Zimmerzahl
2
Immobilienart
Wohnung
Etage, Geschoss
3
Etagenzahl
3
Bezugsfrei ab
01.11.2025
Anzahl Schlafzimmer
1
Anzahl Badezimmer
1
Anzahl Garage/ Stellplatz
1
Baujahr
2025

Kosten

Kaltmiete
1.100 €
Nebenkosten
200 €
Heizkosten sind in Nebenkosten enthalten
Kaution
3.300 €
Was kostet dein Umzug?

Stellplätze

Stellplatztyp
Tiefgarage
Anzahl
1
Miete
90 €

Objektbeschreibung

Diese wunderschöne neue 2 Zimmer Wohnung freut sich schon auf ihren ersten Mieter - vielleicht auf Sie? Der einladende Wohn- / Essbereich begrüßt Sie hell mit angrenzender offener Küche inkl. Einbauküche mit Markengeräten im Wert von ca. 7000 €. Von hier betreten Sie den nach Südosten ausgerichteten Balkon. Das Schlafzimmer bietet ebenfalls direkten Zugang zum Balkon. Ein Oberlicht im Badezimmer sorgt auch hier für Tageslicht.

Sowohl eine Abstellkammer innerhalb der Wohnung als auch ein ca. 3 qm großer Abstellraum, nur wenige Meter von der Wohnung entfernt, bieten Platz für Ihre Vorräte und Habseligkeiten.


Das Besondere an der 51,77 qm großen Wohnung ist die Lage innerhalb des modernen, energieeffizienten Objekts. Sie liegt im 3. OG (mit Aufzug) und hat keine Wand, die direkt an eine andere Wohnung angrenzt, sowie keinen Durchgangsverkehr - Sie sollten also Ihre Ruhe haben. Sie haben Angst vor der nahen B17? Erfreulicherweise sorgen die baulichen Gegebenheiten sogar für Ruhe auf dem Balkon.


Die lichtdurchflutete Wohnung überzeugt durch eine zeitgemäße, hochwertige Ausstattung mit Parkett, Fußbodenheizung, elektrischen Rollläden, Handtuchheizkörper und Klingelanlage mit Video und Gegensprechanlage.


Für Ihre Mobilität gehören sowohl ein Tiefgaragenstellplatz mit Steckdose (90 € mtl.) als auch ein überdachter Fahrradstellplatz zur Wohnung. Sie erreichen schnell die B17 und somit auch die A8 Richtung München oder Stuttgart. Die öffentlichen Verkehrsmittel sind gut erreichbar und bringen Sie rasch in die Augsburger Innenstadt, zur Universität oder zum Uniklinikum.


Sie sind Berufspendler auf der Suche nach einem Zweitwohnsitz oder Single mit gehobenem Anspruch? Dann ist dies Ihre neue Traumwohnung in Augsburg Kriegshaber. Kontaktieren Sie uns gerne und wir vereinbaren einen Termin zur Besichtigung.


* Bilder bearbeitet

Bausubstanz & Energieausweis

A+

A

B

68,8 kWh/(m²*a)

C

D

E

F

G

H

Baujahr
2022
Wesentlicher Energieträger
FERN
Heizungsart
Fernwärme
Energieausweis
liegt vor
Energieausweistyp
Bedarfsausweis
Ausstellungsdatum
04.09.2025
Gültig bis
03.09.0035
Energieeffizienzklasse
B
Endenergiebedarf
68,8 kWh/(m²*a)

Wohnung finden so einfach wie möglich - das ist unsere Mission!

Kostenlose Basic Features

0 € monatlich


  • Individuelles Such-Profil anlegen
  • Suchaufträge speichern
  • One-Klick Kontaktaufnahme

alles anzeigen

Jetzt kostenlos anmelden

Premium Features

19,99 € monatlich


  • Alle kostenlosen Features
  • Smart-Alarm per Whatsapp
  • Deine Chancen checken
  • Wohngegend analysieren

alles anzeigen

Jetzt Premium freischalten

Privater Anbieter

Wohnglück-ID:
Objekt-Nr.:
WGL-768058