Gastgewerbe in Wörnitz

Garage/­Stellplatz

Top Lage, viel Fläche und enormes Potenzial - Pension, Gasthof, Tankstelle und 90 LKW Stellplätze!

Anfragen bisher

Premium

Meine Chancen

Premium

Fairer Preis

Premium

Kaufpreis

91637 Wörnitz / Mittelstetten

Gewerblicher Anbieter

VON POLL IMMOBILIEN Ansbach - Wittmann Real Estate GmbH
Karlstraße 9
91522 Ansbach

Details

Grundstücksfläche
22.339 m²
Gastronomiefläche
438 m²
Zimmerzahl
22
Typ der Gewerbeimmobilie
Gastgewerbe
Etagenzahl
2
Nutzfläche
324 m²
Anzahl Garage/ Stellplatz
2
Objektzustand
Gepflegt
Baujahr
1958

Kosten

Kaufpreis
Käuferprovision
Käuferprovision beträgt 3,57 % (inkl. MwSt.) des beurkundeten Kaufpreises
Was kostet dein Umzug?

Stellplätze

Stellplatztyp
Freiplatz
Anzahl
90
Stellplatztyp
Garage
Anzahl
2

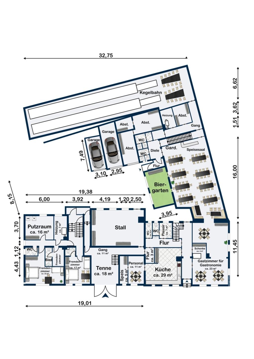
Objektbeschreibung

Diese großzügige Immobilie befindet sich auf einem ca. 22.000 m² großen Grundstück und bietet eine Vielzahl an Möglichkeiten im Gastgewerbe. Das Anwesen verfügt über insgesamt 22 Zimmer und eignet sich ideal als Beherbergungsbetrieb, Eventlocation oder Kapitalanlage. Ergänzt wird das Angebot durch die vorhandene separate Betreiberwohnung, welche ein gemütliches Wohnen auf dem Gelände ermöglicht oder gewinnbringend vermietet werden kann.


Das Gastgewerbe umfasst eine Fläche von ca. 438 m², inklusive einem großen Saal von ca. 117 m² sowie einem Nebenraum mit ca. 30 m². Im Saal befindet sich zudem eine Kinderspielecke, um auch den kleinen Gästen einen angenehmen Aufenthalt zu bieten. Des Weiteren verfügt die Immobilie über eine vollwertige Bundeskegelbahn, die für Unterhaltung sorgt.


Die Fremdenzimmer erstrecken sich über eine Fläche von ca. 232 m² und umfassen insgesamt 16 Zimmer, jeweils mit eigenem Badezimmer ausgestattet.


Zur Immobilie gehören auch Garagenplätze sowie Parkplätze für eine bequeme Anreise. Des Weiteren befindet sich auf dem Gelände eine eigene Tankstelle für LKWs, was besonders für geschäftlich Reisende, sowie den Fernverkehr von Vorteil ist. Zusätzlich stehen ca. 90 Stellplätze für LKWs und Busse zur Verfügung.


Zusammengefasst bietet sich Ihnen hiermit die perfekte Kombination aus Investition und individueller Verwirklichung. Von der bekannten und gut eingeführten Gastronomie mit großem Speisesaal und Nebenräumen, über die große voll ausgestattete Gastroküche, hin zur Bundeskegelbahn und den Pensionszimmern zur Vermietung, bieten sich hier vielfältige Möglichkeiten der Nutzung. Ergänzt wird das Angebot über die auf dem Grundstück befindliche Tankstelle, welche für sehr gute Pachteinnahmen sorgt und einen langfristigen Pachtvertrag abgesichert ist. Die ca. 90 LKW Stellplätze sind derzeit für 5€/Nacht an Fernfahrer vermietet und zu ca. 80% jährlich ausgelastet.


Die vielfältigen Nutzungsmöglichkeiten, die großzügigen Räumlichkeiten und die umfangreiche Ausstattung machen diese Immobilie zu einer attraktiven Investition im Gastgewerbe. Interessenten haben hier die Chance, ein vielseitiges Objekt zu erwerben, das sowohl für touristische als auch für geschäftliche Zwecke geeignet ist.


Bausubstanz & Energieausweis

Baujahr
1958
Objektzustand
Gepflegt
Wesentlicher Energieträger
FERN
Heizungsart
Sonstige
Energieausweis
liegt vor
Energieausweistyp
Verbrauchsausweis
Gültig bis
09.04.2034

Ausstattung

Nachfolgend zusammengefasst einige Ausstattungshighlights in der Aufzählung:


Gastronomie ca. 438 m²




  • Vollständig ausgestattete Gastroküche




  • Eventsaal ca. 117 m² plus Nebenraum mit ca. 30 m²




  • Kinderspielecke im Saal




  • Zwei Bundeskegelbahnen


    Fremdenzimmer ca. 232 m²




  • 16 Fremdenzimmer mit eigenen Badezimmer




  • Sauna




  • Garagenplätze


    Parkplätze




  • Eigene Tankstelle für die LKWs (Diesel/Wasserstoff/Gas)




  • 90 Stellplätze für LKWs und Busse (aktuell ca. 80% Auslastung/Jahr und 5€ Stellplatzgebühr/Nacht)




  • Beheizung über Nahwärme




  • Top Lage am Autobahnkreuz 6/7




  • Günstige Stellplatzmiete - hierdurch hohe Auslastung




  • Bekannte Gastronomie - guter Ruf




  • Großer Saal für Hochzeiten/Feiern/Events




  • Pension mit 12 Zimmern zur Vermietung




  • Betreiberwohnung




Dies ist nur ein Auszug der Besonderheiten, welche Sie bei einer persönlichen Besichtigung vor Ort erwarten. Wir freuen uns auf Ihre Anfrage und die gemeinsame Besichtigung.


Lagebeschreibung

Die Gemeinde 91637 Wörnitz liegt malerisch im Landkreis Ansbach in Bayern, Deutschland. Mit einer ruhigen und charmanten Atmosphäre bietet dieser Ort eine ideale Umgebung für alle, die die Vorzüge des Landlebens schätzen.


Geografische Lage: Wörnitz befindet sich in der fruchtbaren Region Frankenhöhe und ist von einer reizvollen Naturlandschaft umgeben. Die Lage zeichnet sich durch ihre Nähe zu regionalen Städten und Verkehrsanbindungen aus.


Verkehrsanbindungen: Die gute Erreichbarkeit über Straßenverbindungen macht Wörnitz sowohl für Pendler als auch für Einwohner attraktiv. Die Gemeinde liegt in der Nähe wichtiger Verkehrsadern, die eine bequeme Anbindung an umliegende Städte und Autobahnen ermöglichen.


Infrastruktur: Wörnitz bietet eine solide Infrastruktur mit verschiedenen Einrichtungen, darunter Schulen, Einkaufsmöglichkeiten, Gesundheitsdienste und Freizeitmöglichkeiten. Die lokalen Geschäfte und Märkte tragen zum lebendigen Gemeinschaftsgefühl bei.


Natur und Erholung: Die Umgebung von Wörnitz lädt zu Outdoor-Aktivitäten ein. Umgeben von grünen Wiesen, Wäldern und Naturreservaten gibt es zahlreiche Wander- und Radwege, die die Schönheit der Landschaft erlebbar machen.


Kulturelles Erbe: Die Gemeinde kann stolz auf ihr kulturelles Erbe sein, das sich in historischen Gebäuden, Kirchen und Veranstaltungen widerspiegelt. Die Bewahrung der lokalen Geschichte ist ein wichtiger Aspekt des Lebens in Wörnitz.


Sonstige Angaben

Es liegt ein Energieverbrauchsausweis vor.
Dieser ist gültig bis 9.4.2034.
Endenergieverbrauch für die Wärme beträgt 184.70 kwh/(m²a).
Endenergieverbrauch für den Strom beträgt 75.30 kwh/(m²
a).
Wesentlicher Energieträger der Heizung ist Fernwärme.


GELDWÄSCHE: Als Immobilienmaklerunternehmen ist die von Poll Immobilien GmbH nach § 2 Abs. 1 Nr. 14 und § 11 Abs. 1, 2 Geldwäschegesetz (GwG) dazu verpflichtet, bei der Begründung einer Geschäftsbeziehung die Identität des Vertragspartners festzustellen und zu überprüfen, bzw. sobald ein ernsthaftes Interesse an der Durchführung des Immobilienkaufvertrages besteht. Hierzu ist es erforderlich, dass wir nach § 11 Abs. 4 GwG die relevanten Daten Ihres Personalausweises festhalten (wenn Sie als natürliche Person handeln) – beispielsweise mittels einer Kopie. Bei einer juristischen Person benötigen wir eine Kopie des Handelsregisterauszugs, aus welchem der wirtschaftlich Berechtigte hervorgeht. Das Geldwäschegesetz sieht vor, dass der Makler die Kopien bzw. Unterlagen fünf Jahre aufbewahren muss. Als unser Vertragspartner haben Sie auch eine Mitwirkungspflicht nach § 11 Abs. 6 GwG.


HAFTUNG: Wir weisen darauf hin, dass die von uns weitergegebenen Objektinformationen, Unterlagen, Pläne etc. vom Verkäufer bzw. Vermieter stammen. Eine Haftung für die Richtigkeit oder Vollständigkeit der Angaben übernehmen wir daher nicht. Es obliegt daher unseren Kunden, die darin enthaltenen Objektinformationen und Angaben auf ihre Richtigkeit hin zu überprüfen. Alle Immobilienangebote sind freibleibend und vorbehaltlich Irrtümer, Zwischenverkauf- und Vermietung oder sonstiger Zwischenverwertung.


UNSER SERVICE FÜR SIE ALS EIGENTÜMER:
Planen Sie den Verkauf oder die Vermietung Ihrer Immobilie, so ist es für Sie wichtig, deren Marktwert zu kennen. Lassen Sie kostenfrei und unverbindlich den aktuellen Wert Ihrer Immobilie professionell durch einen unserer Immobilienspezialisten einschätzen. Unser bundesweites und internationales Netzwerk ermöglicht es uns, Verkäufer bzw. Vermieter und Interessenten bestmöglich zusammenzuführen.


Wohnung finden so einfach wie möglich - das ist unsere Mission!

Kostenlose Basic Features

0 € monatlich


  • Individuelles Such-Profil anlegen
  • Suchaufträge speichern
  • One-Klick Kontaktaufnahme

alles anzeigen

Jetzt kostenlos anmelden

Premium Features

19,99 € monatlich


  • Alle kostenlosen Features
  • Smart-Alarm per Whatsapp
  • Deine Chancen checken
  • Wohngegend analysieren

alles anzeigen

Jetzt Premium freischalten

Gewerblicher Anbieter

VON POLL IMMOBILIEN Ansbach - Wittmann Real Estate GmbH
Karlstraße 9
91522 Ansbach

Wohnglück-ID:
Objekt-Nr.:
WGL-763848
24208571