Einzelhandel in Schwerte
				barrierefrei
			
		
				Garage/Stellplatz
			
		Einzelhandelsfläche / Verbrauchermarkt zu vermieten - bezugsfrei
1.300.000 €
Kaufpreis
			58239 Schwerte
		
		
	Gewerblicher Anbieter
Wohn Konzept Immobilien
Postfach 680123
30629 Hannover
			
			
Einzelhandelsfläche / Verbrauchermarkt zu vermieten - bezugsfrei
Details
        Ladenfläche
      
      
        950 m²
      
	  
        Lagerfläche
      
      
        350 m²
      
	  
        Verkaufsfläche
      
      
        950 m²
      
	  
        Freifläche
      
      
        600 m²
      
	  
        Bürofläche
      
      
        20 m²
      
	  
        Typ der Gewerbeimmobilie
      
      
        Einzelhandel
      
	  
        Etagenzahl
      
      
        1
      
	  
        Bezugsfrei ab
      
      
        01.10.2025
      
	  
        Anzahl Garage/ Stellplatz
      
      
        1
      
	  
        Objektzustand
      
      
        Gepflegt
      
	  
			Kaufpreis
		
		
			1.300.000 €
		
	
				Käuferprovision
			
			
				5,95 % incl. MwSt.
			
		
				Das vom Käufer der Immobilie zu zahlende Maklerhonorar beträgt 2 Nettokaltmieten inklusive der gesetzlichen Mehrwertsteuer und ist mit Unterzeichnung des Mietvertrages zur Zahlung fällig.
Alle Daten in diesem Exposee beruhen auf Angaben des Verkäufers. Die Objektangaben wurden mit großer Sorgfalt zusammengestellt. Für die Richtigkeit der Verkäufer-, Anbieter- und Angebotsangaben können wir keine Haftung übernehmen. Irrtümer bleiben vorbehalten.
			
		
		Was kostet dein Umzug?
	
	
Stellplätze
        Stellplatztyp
      
      
        Freiplatz
      
	  
        Anzahl
      
      
        20
      
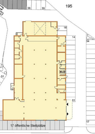
	  Objektbeschreibung
Aktuell leerstehender Verbrauchermarkt, mit einer Gesamtfläche von ca. 1.300 m².
20 Stellplätze sind auf dem Grundstück.
Alternative Nutzungen sind möglich, Handwerker, Lagerfläche, Büro und Verkauf, usw..
Bausubstanz & Energieausweis
				Objektzustand
			
			
				Gepflegt
			
		
				Heizungsart
			
			
				Zentralheizung
			
		
				Befeuerung
			
			
				Gasheizung
			
		Ausstattung
Baujahrestypische Ausstattung, das Objekt steht aktuell leer.
Lagebeschreibung
Das Objekt befindet sich in einem Mischgebiet im Stadtteil Westhofen.
Wohnung finden so einfach wie möglich - das ist unsere Mission!
Kostenlose Basic Features
0 € monatlich
- Individuelles Such-Profil anlegen
- Suchaufträge speichern
- One-Klick Kontaktaufnahme
alles anzeigen
Jetzt kostenlos anmeldenPremium Features
19,99 € monatlich
- Alle kostenlosen Features
- Smart-Alarm per Whatsapp
- Deine Chancen checken
- Wohngegend analysieren
alles anzeigen
Jetzt Premium freischaltenGrundriss
Gewerblicher Anbieter
Wohn Konzept Immobilien
Postfach 680123
30629 Hannover
			
			
Wohnglück-ID:
 
      Objekt-Nr.:
 
    WGL-763362
 
      58239-15-5997