Einfamilienhaus freistehend in Selbach (Selbach (Sieg))

Garten/­-mitbenutzung

Wohnimmobilie am Ortsrand von Selbach/Brunken mit großzügig arrondierten Wiesen- und Freiflächen

Anfragen bisher

Premium

Meine Chancen

Premium

Fairer Preis

Premium

169.000 €

Kaufpreis

100 m²

5 Zi.

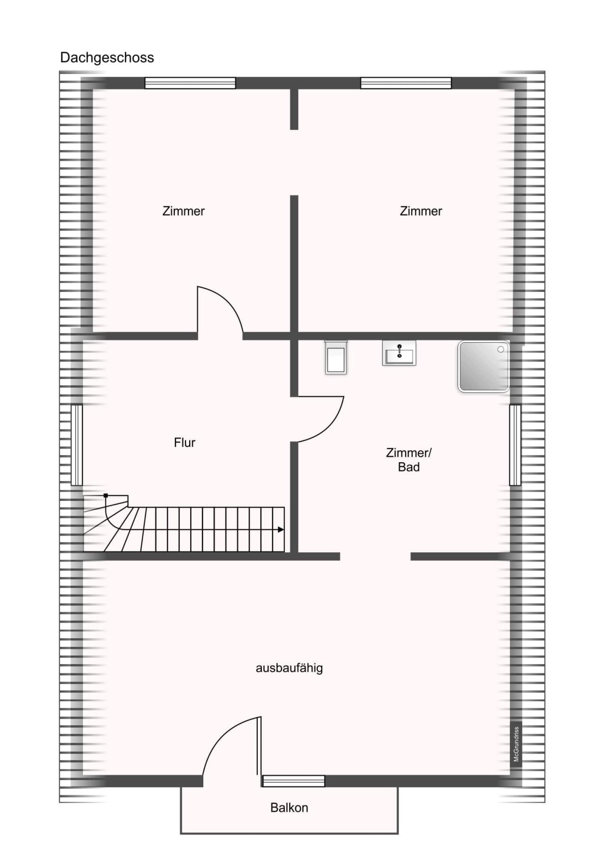
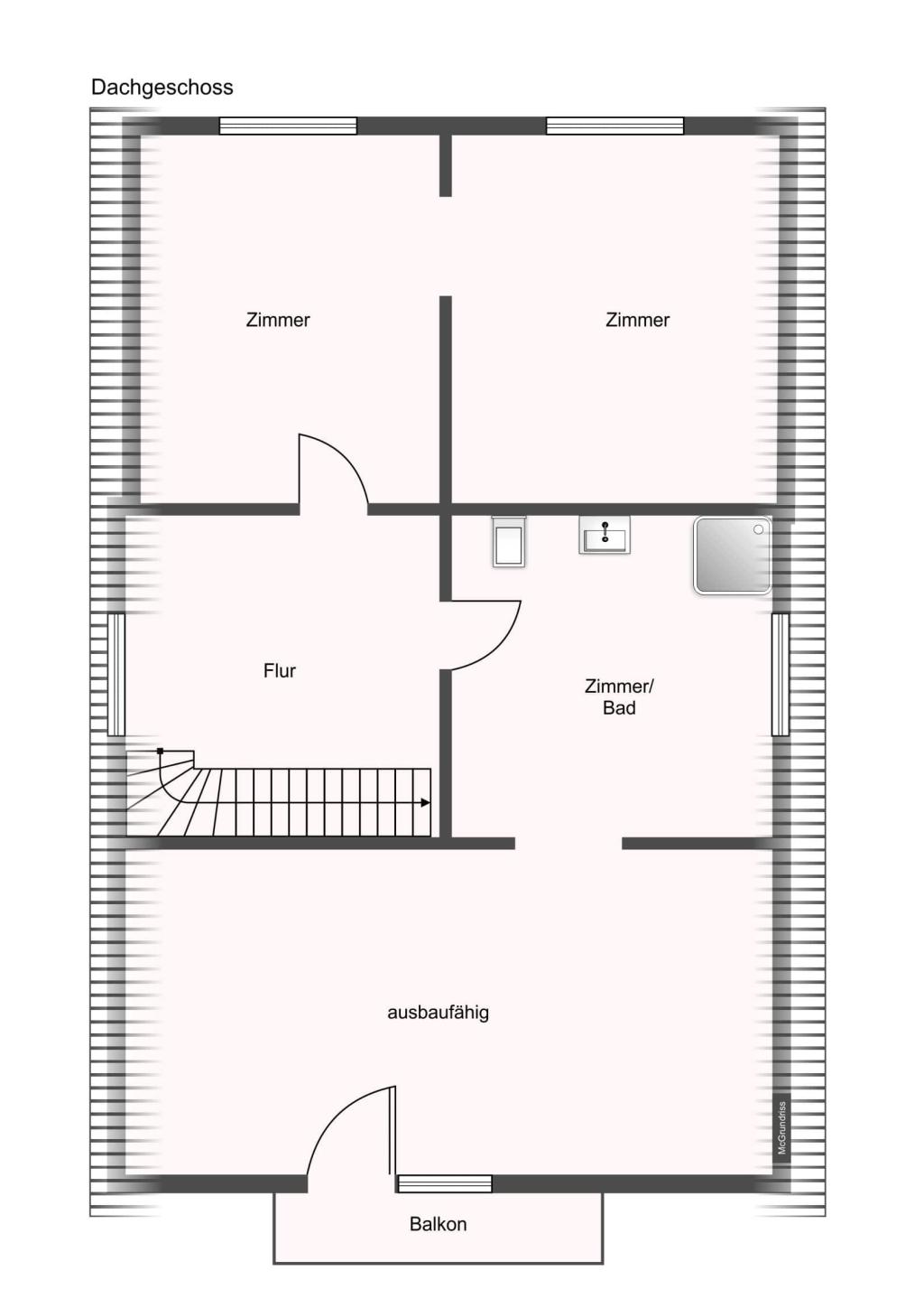
Grundriss

57537 Selbach

Gewerblicher Anbieter

Immobiliengesellschaft der Westerwald Bank mbH
Schloßplatz 6
57610 Altenkirchen (Westerwald)

Details

Grundstücksfläche
10.052 m²
Zimmerzahl
5
Haustyp
Einfamilienhaus freistehend
Baujahr
1850

Kosten

Kaufpreis
169.000 €
Käuferprovision
3 %
Was kostet dein Umzug?

Objektbeschreibung

Eine ideale Wohnimmobilie für jene, welche gerne naturnah leben möchten und zudem zeitgemäße Modernisierungen des Wohnhauses nicht scheuen.


Im Ursprung wurde die Immobilie um 1800 in Fachwerkbauweise errichtet und befindet sich seit je her im Familienbesitz.


Zum Wohnhaus gehören großzügig arrondierte Wiesen- und Freiflächen, welche unmittelbar an die Immobilie angrenzen sowie geräumige Nebengebäude.


Das Erdgeschoss verfügt über zwei Zimmer, eine Küche sowie ein Badezimmer, welches vor wenigen Jahren erneuert wurde. Im Bereich des Dachgeschosses stehen zwei weitere Zimmer zur Verfügung, welche zum Schlafen oder als Büro genutzt werden können.
Sofern weiterer Wohnraum benötigt wird, könnten weitere Flächen im Erd- (rd. 26 m² Wfl.) und Dachgeschoss (rd. 22 m² Wfl.) ausgebaut werden, welche sich derzeit im Rohbau befinden.


Das Wohnhaus ist teilweise mit einem Gewölbekeller in Bruchstein unterkellert und beinhaltet neben klassischen Kellerräumlichkeiten, weitere Abstellflächen.


Eine Garage mit rd. 65 m² Nutzfläche, welche separat zugänglich ist, rundet das Angebot ab und sorgt für die Unterbringung eines PKWs.


Gerne stellen wir Ihnen die Immobilie im Rahmen einer ausführlichen Besichtigung vor. Die Übernahme kann, nach vorheriger Absprache, kurzfristig erfolgen.


Bausubstanz & Energieausweis

A+

A

B

C

D

E

F

G

H

383,41 kWh/(m²*a)

Baujahr
1850
Wesentlicher Energieträger
Elektroenergie, Holz
Heizungsart
Elektroheizung
Befeuerung
Elektroheizung
Energieausweis
liegt vor
Energieausweistyp
Bedarfsausweis
Ausstellungsdatum
21.08.2025
Gültig bis
20.08.2035
Energieeffizienzklasse
H
Endenergiebedarf
383,41 kWh/(m²*a)

Ausstattung

Fachwerkhaus im Ursprung aus 1800 mit Wärmedämmverbundsystem, Gefache tlw. mit Lehm tlw. mit Bims, Fachwerkinnenwände, Teilunterkellerung (Gewölbekeller; Bruchsteinmauerwerk), massive Geschossdecke zwischen Keller- und Erdgeschoß, Holzbalkendecke zwischen Erd- und Obergeschoß, Beheizung mittels Elektro-Nachtspeicheröfen, Warmwasserbereitung mittels Durchlauferhitzer, Holzfenster (isolierverglast), Satteldach mit Eindeckung in Bitumen-Dachbahnen (ungedämmt), Holzinnentreppe, einfache Holzinnentüren, Oberböden überwiegend in Teppich, PVC, Fliesen sowie Laminat


Garage, großzügiger Balkon, überdachter Eingangsbereich


Das Wohnhaus befindet sich in einem renovierungsbedürftigen Zustand.


Lagebeschreibung

Selbach (Sieg) ist eine Ortsgemeinde im Landkreis Altenkirchen in Rheinland-Pfalz. Sie gehört der Verbandsgemeinde Wissen an und liegt etwa 4 km südöstlich der Stadt Wissen und 3 km westlich von Gebhardshain.
Zur Ortsgemeinde Selbach (Sieg) gehören die Ortsteile Selbach, Brunken und Kirchseifen sowie der Weiler Neuhöfchen. Teile von Kirchseifen und Neuhöfchen liegen auf dem Stadtgebiet von Wissen. Der Hauptort Selbach liegt in einem ruhigen Tal, in dem fünf Bäche fließen, die anderen Ortsteile befinden sich auf teilweise plateauartigen Lagen.
In Selbach frequentieren relativ eng getaktete öffentliche Buslinien; eine Landesstraße (L289) und zwei Kreisstraßen (K123 und K130) verbinden den Ort mit dem Umland. Der RegioBahnhof in Wissen bietet schnelle Zugverbindungen nach Siegen, Köln und Aachen.
Schulen, Ärzte und zahlreiche Einkaufsmöglichkeiten bietet das 4 km entfernte Mittelzentrum Wissen.


Die Immobilie befindet sich in schöner Naturlage am Ortsrand von Selbach/Brunken.


Wohnung finden so einfach wie möglich - das ist unsere Mission!

Kostenlose Basic Features

0 € monatlich


  • Individuelles Such-Profil anlegen
  • Suchaufträge speichern
  • One-Klick Kontaktaufnahme

alles anzeigen

Jetzt kostenlos anmelden

Premium Features

19,99 € monatlich


  • Alle kostenlosen Features
  • Smart-Alarm per Whatsapp
  • Deine Chancen checken
  • Wohngegend analysieren

alles anzeigen

Jetzt Premium freischalten

Gewerblicher Anbieter

Immobiliengesellschaft der Westerwald Bank mbH
Schloßplatz 6
57610 Altenkirchen (Westerwald)

Wohnglück-ID:
Objekt-Nr.:
WGL-762860
2 967 3