Büro / Praxen in Gera

Garage/­Stellplatz

Vielseitig nutzbare Gewerbefläche! Sie entscheiden über den Umbau!

Anfragen bisher

Premium

Meine Chancen

Premium

Fairer Preis

Premium

Erdg.

Friedrich-Naumann-Platz 3
07548 Gera

Gewerblicher Anbieter

Weidener Immobilien
Dornaer Straße 9
07545 Gera

Details

Ladenfläche
200 m²
Lagerfläche
200 m²
Bürofläche
200 m²
Büroteilfläche
200 m²
Typ der Gewerbeimmobilie
Büro / Praxen
Etagenzahl
5
Bezugsfrei ab
nach Absprache
Anzahl Garage/ Stellplatz
1
Objektzustand
Renovierungsbedürftig
Baujahr
1910

Kosten

Was kostet dein Umzug?

Stellplätze

Stellplatztyp
Garage
Anzahl
1

Objektbeschreibung

Für weitere Informationen stehen wir Ihnen gerne zur Verfügung. Sie erreichen uns unter der Telefonnummer 0365 - 855 236-0 oder besuchen unsere Website unter www.WEIDENER.immo.


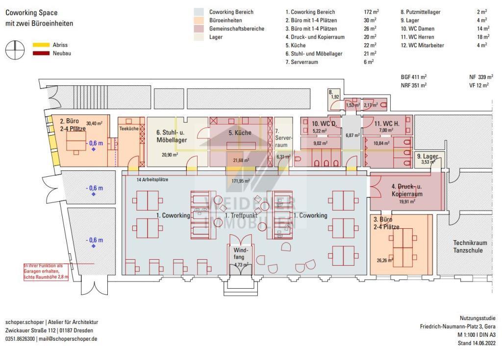
Nutzen Sie Ihre Chance und mieten dieses Gewerbe vollständig oder teilweise an! Ob Office, Coworking, Lagerhalle, Intensivpflege, Tagespflege, Physiotherapie-, Einzel-, Gemeinschaftspraxis oder Sonstiges, hier sind Sie richtig!


Die Erdgeschoss-Gewerbefläche befindet sich im Hinterhaus des Objekts, welches 1910 erbaut wurde und ehemalig als Spielothek genutzt wurde. Die Geschäftsräume der Spielothek wurden im Jahr 2022 geschlossen und stehen derzeit leer, einschließlich einer angrenzenden Fläche.


Die Wärmeversorgung erfolgt über drei unabhängige Heizungsanlagen.


Hinweis zum Energieausweis: Ein Energieausweis ist für dieses Objekt nicht erforderlich, da es als Kulturdenkmal nach § 2 Abs. 1+2 (ThürDSchG) eingestuft ist.


Es ist wichtig zu betonen, dass kein Exposé den persönlichen Eindruck ersetzen kann. Wir stehen Ihnen gerne zur Verfügung, um einen individuellen Besichtigungstermin zu vereinbaren.


Bausubstanz & Energieausweis

Objektzustand
Renovierungsbedürftig
Heizungsart
Zentralheizung
Befeuerung
Gasheizung

Ausstattung

Ausstattung:
Zur Vermietung steht eine Gewerbefläche von ca. 400 m². Je nach Renovierung und Umbau entsteht eine Nutzfläche von 280 m² bis 350 m². Es ist ebenso möglich eine Teilfläche von 150 m² bzw. 175 m² zu mieten.


In Abstimmung mit dem Eigentümer kann die Immobilie nach Ihren Vorstellungen renoviert und umgebaut werden. Folgende Nutzungen sind möglich:



  • Einzel- oder Gemeinschaftpraxis

  • Office bzw. Büro

  • CO-Working Space

  • Physiotherapie

  • Tagespflege oder Intensivpflege

  • Lagerhalle


Lagebeschreibung

Lage:
Das Objekt befindet sich in einer erstklassigen Wohnlage im äußerst beliebten Stadtteil Gera-Untermhaus. Diese Lage bietet eine ausgezeichnete Infrastruktur. In unmittelbarer Nähe finden sich öffentliche Verkehrsmittel, Ärzte, Einkaufsmöglichkeiten und verschiedene Freizeitangebote. Dies schafft eine hohe Lebensqualität. Das Stadtzentrum von Gera sowie die Autobahn A4 sind bequem und schnell zu erreichen, was eine hervorragende Anbindung an die umliegenden Regionen gewährleistet.


Die Umgebung der Immobilie bietet einige natürliche Schönheiten und Erholungsmöglichkeiten. Die Weiße Elster fließt in unmittelbarer Nähe, und das Gelände der ehemaligen Bundesgartenschau erstreckt sich praktisch vor der Haustür. Hier können Sie die Natur in vollen Zügen genießen und sich bei zahlreichen Freizeitaktivitäten und sportlichen Unternehmungen entspannen. Der Geraer Stadtwald ist ebenfalls leicht erreichbar und bietet weitere Möglichkeiten für Sport und Naherholung.


Die Lage dieses Objekts in Gera-Untermhaus bietet somit eine ideale Kombination aus urbanem Leben, erstklassiger Infrastruktur und einer grünen Umgebung, die zahlreiche Möglichkeiten für Sport und Erholung bietet.


Sonstige Angaben

Kontaktaufnahme und Besichtigungstermin


Sie interessieren sich für diese Immobilie? Das freut uns sehr!


Bitte senden Sie uns Ihre Anfrage schriftlich über dieses Portal oder direkt an Herrn Schröter aus unserem kompetenten Vermietungsteam von Weidener Immobilien unter:

empfang@immobilien-weidener.de


Um Ihnen das Exposé ohne Verzögerung zusenden zu können, bitten wir Sie, bei Ihrer Anfrage Ihre vollständige Anschrift sowie Ihre Telefonnummer anzugeben. Bitte haben Sie Verständnis, dass wir ausschließlich Anfragen mit vollständigen Kontaktdaten (inklusive E-Mail-Adresse und Telefonnummer) berücksichtigen können.


Gerne können Sie bereits erste Terminvorschläge für eine Besichtigung übermitteln. Wir setzen uns im Anschluss zeitnah telefonisch mit Ihnen in Verbindung, um Ihren Wunschtermin zu bestätigen und alle weiteren Schritte persönlich mit Ihnen abzustimmen.


Wir bitten um Ihr Verständnis, dass die Eigentümer Grundstücksbesichtigungen nur nach Terminvereinbarung wünschen und direkte Ansprachen vermeiden möchten.


Persönlich. Verlässlich. Weidener Immobilien.

Mit unserer langjährigen Marktkenntnis und einem engagierten Team bieten wir Ihnen individuelle Betreuung auf Augenhöhe – vom ersten Kontakt bis zur Schlüsselübergabe.


Kontakt:

Tel.: 0365 - 855 236-0

E-Mail: empfang@immobilien-weidener.de

Web: www.WEIDENER.immo


Alle Angaben beruhen auf Informationen des Eigentümers. Für deren Richtigkeit übernehmen wir keine Haftung.


Wir freuen uns auf Ihre Nachricht und darauf, Sie bald persönlich kennenzulernen!


Wohnung finden so einfach wie möglich - das ist unsere Mission!

Kostenlose Basic Features

0 € monatlich


  • Individuelles Such-Profil anlegen
  • Suchaufträge speichern
  • One-Klick Kontaktaufnahme

alles anzeigen

Jetzt kostenlos anmelden

Premium Features

19,99 € monatlich


  • Alle kostenlosen Features
  • Smart-Alarm per Whatsapp
  • Deine Chancen checken
  • Wohngegend analysieren

alles anzeigen

Jetzt Premium freischalten

Gewerblicher Anbieter

Weidener Immobilien
Dornaer Straße 9
07545 Gera

Wohnglück-ID:
Objekt-Nr.:
WGL-762625
2428