Etagenwohnung in Sellin

Aufzug
Balkon/­Terrasse
Keller
möbliert
Einbauküche
Garage/­Stellplatz

Repräsentativ und idyllisch: 3-Zimmer-Wohnung im Seepark in Sellin

Anfragen bisher

Premium

Meine Chancen

Premium

Fairer Preis

Premium

230.000 €

Kaufpreis

52 m²

3 Zi.

1. OG

18586 Sellin

Gewerblicher Anbieter

McMakler GmbH
Am Postbahnhof 17
10243 Berlin

Details

Zimmerzahl
3
Wohnungstyp
Etagenwohnung
Etage, Geschoss
1
Etagenzahl
4
Bezugsfrei ab
ab sofort
Anzahl Schlafzimmer
2
Anzahl Badezimmer
1
Anzahl Garage/ Stellplatz
1
Objektzustand
Gepflegt
Baujahr
1996

Kosten

Kaufpreis
230.000 €
Käuferprovision
Die Provision i.H.v. 3,57 % inkl. MwSt. ist mit Kaufvertragsbeurkundung fällig, sofern der Verkaufspreis über 83.000,00 € liegt. Liegt der Verkaufspreis dagegen bei/unter 83.000,00 €, ist die fest vereinbarte Mindestprovision i.H.v. mind. 5.950,00
Was kostet dein Umzug?

Objektbeschreibung

Objektnr: 1064611


Herzlich willkommen zu Ihrem Traumurlaub in Sellin! Dieses exklusive Ferienapartment im Seepark bietet Ihnen die perfekte Mischung aus Komfort, Lage und Ausstattung. Nur einen Katzensprung entfernt vom Schwimmbad und fußläufig zur charmanten Promenade sowie dem feinen Sandstrand, ist diese Wohnung der ideale Ausgangspunkt für Ihren Ostseeurlaub.


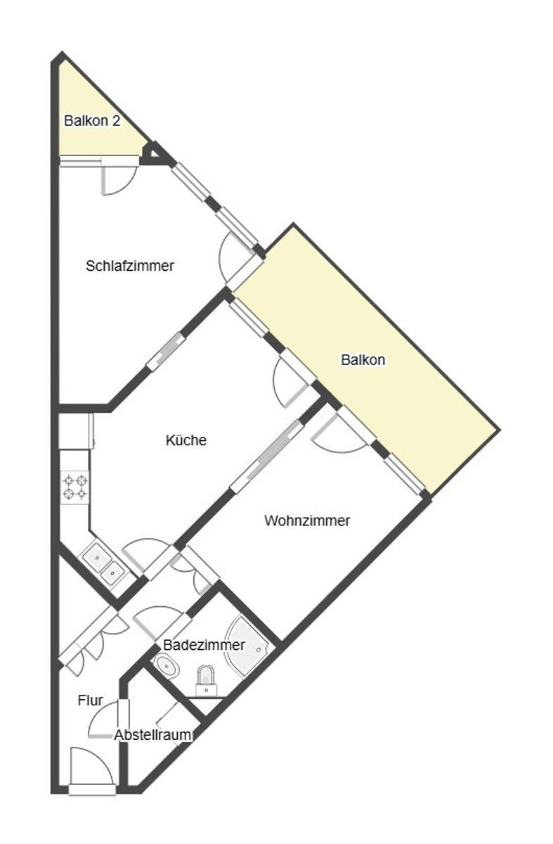
Die Ferienwohnung beeindruckt mit einem durchdachten Grundriss. Ein einladender Flur heißt Sie willkommen und führt Sie in das Herz der Wohnung: den offenen Wohn- und Essbereich mit einer voll ausgestatteten Küche. Dieser Bereich lädt nicht nur zum Kochen und Genießen ein, sondern kann auch mühelos in ein zweites Schlafzimmer verwandelt werden – ideal für Familien oder Freunde.


Das separate Schlafzimmer verspricht erholsame Nächte und Privatsphäre. Das moderne Duschbad sorgt für einen frischen Start in den Tag, während der praktische Abstellraum zusätzlichen Stauraum bietet.


Ein Highlight sind die 2 Balkone, die Ihnen einen herrlichen Ort bieten, um die frische Meeresbrise zu genießen oder den Tag bei einem Glas Wein ausklingen zu lassen. Zugänglich ist der große Balkon von allen Wohnbereichen.


Der Seepark, bekannt für seine hervorragende Vermietung und Beliebtheit bei Gästen, garantiert Ihnen eine rentable Investition und unvergessliche Urlaubserlebnisse. Nutzen Sie diese Gelegenheit und sichern Sie sich Ihr eigenes Stück Paradies an der Ostsee!


Bausubstanz & Energieausweis

A+

A

B

C

D

E

F

G

H

Baujahr
1996
Objektzustand
Gepflegt
Wesentlicher Energieträger
Fernwärme
Heizungsart
Fernwärme
Befeuerung
Fernwärme
Energieausweis
liegt vor
Energieausweistyp
Verbrauchsausweis
Energieverbrauchskennwert
86 kWh/(m²*a)
Energieeffizienzklasse
C

Ausstattung


  • In ruhiger Umgebung in Strandnähe von Sellin (Nebenstraße), zum Vermieten, aber auch zur Selbstnutzung - komfortabler Personenaufzug

  • Entspannung unter freiem Himmel dank 2 Balkonen

  • Optimal für schnellen Einzug dank gepflegtem Zustand, Hausgeld: ca. 354 €

  • Solide Ausstattung der möblierten Wohnung umfasst eine Einbauküche

  • Ein Mehr an Sorgenfreiheit schaffen ein Keller, TG-Stellplatz für Ihren Pkw, eine Hausreinigung und ein Winterdienst


Lagebeschreibung

Lage: Meeresklima in Strandnähe schafft eine entspannte Atmosphäre
Bildung und Betreuung: Kindergarten und Schule in unter 2 km
Nahversorgung: Supermarkt, Apotheke fußläufig, Apotheke, Post- und Bankfiliale in max. ca. 800 m
Anbindung: B196 schnell erreichbar


Sonstige Angaben

Vereinbaren Sie noch heute einen Besichtigungstermin!








Alle Angaben sind ohne Gewähr und basieren ausschließlich auf Informationen, die uns von unserem Auftraggeber zur Verfügung gestellt wurden. Wir übernehmen keine Gewähr für die Vollständigkeit, Richtigkeit und Aktualität der Angaben.


Wohnung finden so einfach wie möglich - das ist unsere Mission!

Kostenlose Basic Features

0 € monatlich


  • Individuelles Such-Profil anlegen
  • Suchaufträge speichern
  • One-Klick Kontaktaufnahme

alles anzeigen

Jetzt kostenlos anmelden

Premium Features

19,99 € monatlich


  • Alle kostenlosen Features
  • Smart-Alarm per Whatsapp
  • Deine Chancen checken
  • Wohngegend analysieren

alles anzeigen

Jetzt Premium freischalten

Gewerblicher Anbieter

McMakler GmbH
Am Postbahnhof 17
10243 Berlin

Wohnglück-ID:
Objekt-Nr.:
WGL-762430
6752cff35ff220c88b10c11d