Hallen / Lager / Produktion in Jebenhausen (Göppingen)

Büro 140m² und Produktionsflächen 640m² in modernem Architektur Neubau

Anfragen bisher

Premium

Meine Chancen

Premium

Fairer Preis

Premium

73035 Jebenhausen

Gewerblicher Anbieter

ohne-makler.net
Humboldtstraße 25 A
21509 Glinde

Details

Grundstücksfläche
5.000 m²
Lagerfläche
995 m²
Freifläche
2.400 m²
Typ der Gewerbeimmobilie
Hallen / Lager / Produktion
Etagenzahl
2
Bezugsfrei ab
nach Absprache
Objektzustand
Erstbezug
Baujahr
2025

Kosten

Was kostet dein Umzug?

Objektbeschreibung

Das Gebäude befindet sich aktuell noch in der Fertigstellung. Es wird voraussichtlich 10/2025 fertig gestellt und gliedert sich in:
1x Doppelgeschossiges massives Bürogebäude und
1x eingeschossige Halle mit 640m²
1x eingeschossige Halle mit 375m² - (separate Anzeige)


In dieser Anzeige wird die Halle-1 mit ihren 640m² mit den angeschlossenem Bürotrakt (140m² Büro + Sozialräume ca 70m² ) vermietet.
Hallenhöhe ist 5,5m mit großen Toren mit 4x4m somit können auch Sprinter und LKW zum beladen in die Halle fahren. Die Halle Wurde für Produktionstätigkeiten konzipiert, daher wurden an jede Stahlstütze ein separater Elektroverteiler mit 3x 230V + Starkstrom angebracht sowie Druckluft und ein Leerohr für EDV Leitungen. Maximale Anschlussleistung ohne Trafostation: 125A, Trafo Station kann nachgerüstet werden bei Bedarf.
Es gäbe auch die Option beide Hallenteile inklusive des Büros zu mieten.


Auf Anfrage können auch weitere Außenflächen angemietet werden.


Das Gebäude wurde nach aktuellen Gebäudeenergiegesetzt erbaut, und ist daher sehr Energieeffizient und sparsam in Bezug auf die Heiz und Kühllasten.


Die Halle wurde mit lichtdurchlässigen Fassadenelementen und Flachdach ausgeführt, was zu großen Licht durchfluteten Räumen führt. Neben den Dachfenstern sorgen Fenster in der Fassade und Dach für weiteren Tageslichteinfall.
Optimal für Produktionstätigkeiten das sich ihre Mitarbeiter setzt wohlfühlen.


Die Flächenheizung ist so ausgelegt, dass sie im Winter zum Heizen genutzt werden kann wie auch im Sommer um die Räumlichkeiten herunter zu kühlen, das gilt auch für die gesamte Produktionsfläche. Fußbodenheizung im gesamten Gebäude. Die Büro und Sozialräume sind noch zusätzlich mit einer Deckenheizung bzw Kühlung ausgestattet.


Objektbeschreibung
Gelegenheit! Attraktive Büros + Produktionshallen mit lichtdurchfluteten Räumen in sehr verkehrsgünstiger Lage im Industriegebiet Göppingen-Jebenhausen, Erstbezug!


Das Gebäude besteht aus 4 Einheiten (2x Büro, 2x Produktion/Lager) mit einer Gesamtfläche von ca. 1185 m² ist ab dem 01.11.2025 verfügbar und soll langfristig vermietet werden. Die Mindestmietdauer beträgt 3 Jahre.


Die Mietflächen können im Gesamten oder auf Wunsch auch einzeln gemietet werden.
Die Außenflächen von ca. 2000m² können auf bedarf auch dazu gemietet werden.
PKW-Stellplätze direkt vor dem Gebäude, können auf Wunsch dazu gemietet werden.


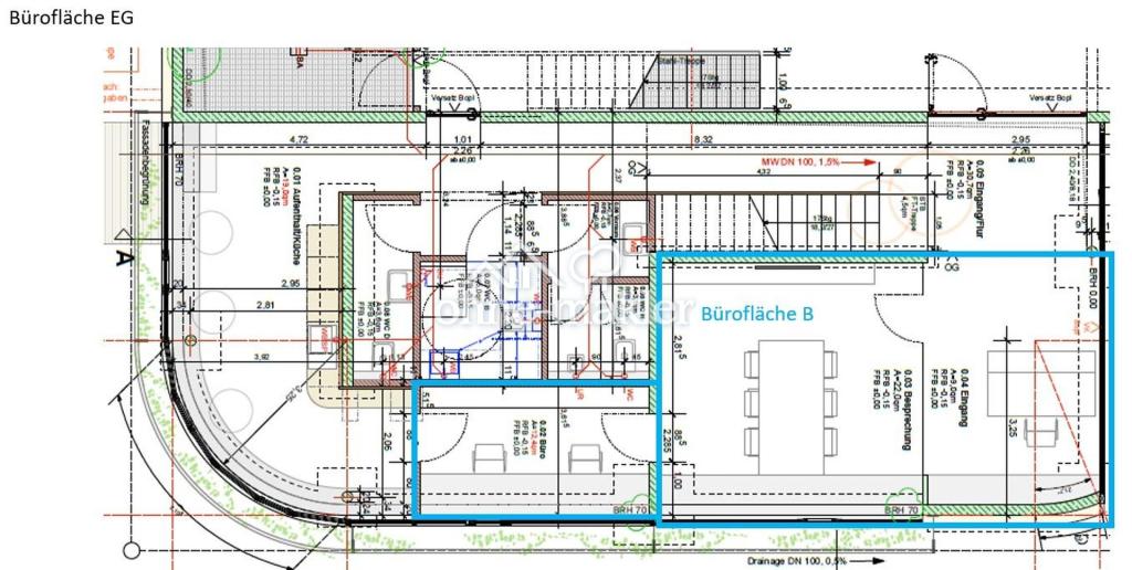
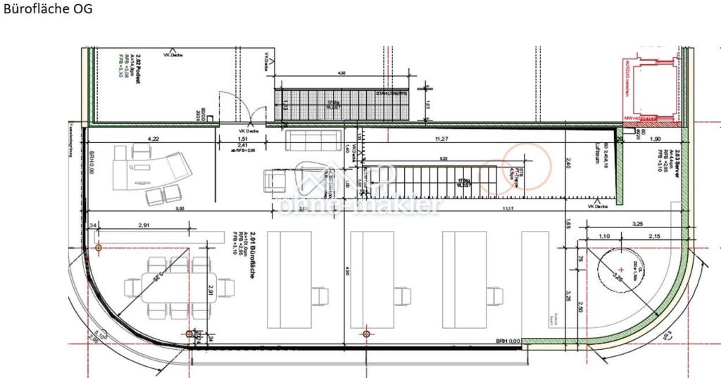
Einheit 1 - Büro EG + Sozialräume EG - 128 m²
Einheit 2 – Büro OG - 120m²
Einheit 3 - Produktionshalle 1 -640m²
Hallenhöhe 5,5m
Einheit 4 - Produktionshalle 2 -375m²
Hallenhöhe 5,5m,Meisterbüro, Küchenzeile und WC


Der Energieausweis ist erstellt und liegt zur Besichtigung vor.


Bausubstanz & Energieausweis

Objektzustand
Erstbezug
Heizungsart
Fußbodenheizung
Befeuerung
Elektroheizung

Ausstattung

Bemerkungen:
Die technische Gebäudeausstattung entspricht modernsten Ansprüchen, so dass sich hier Mitarbeiter und Besucher gleichermaßen wohlfühlen. Auf Sie warten lichtdurchflutete und bezugsfertige Räumlichkeiten, die einen perfekten Arbeitsplatz für Sie und Ihre Mitarbeitenden schaffen.
Zur Ausstattung gehören unter anderem Internet über Glasfaser, eine hocheffiziente Gebäudetechnik.


Ausstattung:
•Photovoltaik-Anlage
•moderne Gebäudeautomation für Heizung, Kühlung und Licht
•Heizungsart: Wärmepumpe nach neustem Standard
•Glasfaseranschluss (beantragt)
•barrierefreier Zugang
•10 PKW-Stellplätze, teilweise mit E-Ladestation
•ansprechende und moderne Architektur
•perfekte Anbindung (Auto, öffentliche Buse, Fahrrad)
•Flügelgeglättete Bodenplatte
•Fußbodenheizung im Gesamten Gebäude inkl. Produktion
•Deckenkühlung im Büro
•Wärmepumpe mit COP 5
•2x Ebenerdige Sektionaltore (B/H = 4,0 x 4,5 m)
•Druckluftverrohrung
•Separater Server und Technikraum


Lagebeschreibung

Die Stadt Göppingen hat ca. 58.000 Einwohner und ist im Hinblick auf Gewerbe und Handel sowie Verwaltungs- und Bildungseinrichtungen der Mittelpunkt des Landkreises Göppingen mit ca. 255.000 Menschen. Göppingen verfügt über alle Versorgungs- und Infrastruktureinrichtungen des täglichen und periodischen Bedarfs sowie über ein umfassendes Freizeit-/Kulturangebot.


Das Objekt befindet sich in Göppingen-Jebenhausen im Gewerbegebiet. Im unmittelbaren Umfeld befinden sich überwiegend mittelständische Gewerbebetriebe.


Fahrzeiten:



  • Stuttgart ca. 25 Minuten

  • Ulm ca. 25 Minuten

  • Esslingen ca. 25 Minuten

  • Wendlingen ca. 22 Minuten

  • Kirchheim ca. 20 Minuten

  • Stuttgart-Flughafen ca. 30 Minuten

  • Reutlingen ca. 50 Minuten


Sonstige Angaben

Heizungsart: Fußbodenheizung
Energieträger: Strom
Energieausweis nicht vorhanden


Anmietung von Teilflächen denkbar. Bitte nennen Sie uns Ihre Anforderungen.
Das Grundstück /Gebäude ist dafür vorbereitet eine eigene Trafostation aufstellen zu können, falls dies notwendig werden sollte.


Eine Besichtigung ist nach Vereinbarung jederzeit möglich.
Sie mieten direkt vom Bauherren ohne Makler und ohne zusätzliche Kosten.


ohne-makler (OM) ist weder Anbieter noch Vermittler der Immobilie. OM betreibt eine Plattform für Immobilieneigentümer, die unter anderem die gleichzeitige Veröffentlichung einzelner Inserate auf mehreren Immobilienportalen ermöglicht. Die Inhalte dieser Inserate werden ausschließlich von Dritten verantwortet. Für die Richtigkeit, Vollständigkeit oder Rechtmäßigkeit der Angaben übernimmt OM keine Haftung. Hinweise auf mögliche Rechtsverstöße können jederzeit gemeldet werden und werden nach Prüfung umgehend bearbeitet.


Wohnung finden so einfach wie möglich - das ist unsere Mission!

Kostenlose Basic Features

0 € monatlich


  • Individuelles Such-Profil anlegen
  • Suchaufträge speichern
  • One-Klick Kontaktaufnahme

alles anzeigen

Jetzt kostenlos anmelden

Premium Features

19,99 € monatlich


  • Alle kostenlosen Features
  • Smart-Alarm per Whatsapp
  • Deine Chancen checken
  • Wohngegend analysieren

alles anzeigen

Jetzt Premium freischalten

Gewerblicher Anbieter

ohne-makler.net
Humboldtstraße 25 A
21509 Glinde

Wohnglück-ID:
Objekt-Nr.:
WGL-761226
319685