Reihenhaus in Darmstadt (Arheilgen)

Balkon/­Terrasse
Einliegerwohnung
Garten/­-mitbenutzung
Gäste WC
Keller
Garage/­Stellplatz

Wohnhaus als Generationenwohnen konzipiert in Arheilgen

Anfragen bisher

Premium

Meine Chancen

Premium

Fairer Preis

Premium

630.000 €

Kaufpreis

192 m²

6 Zi.

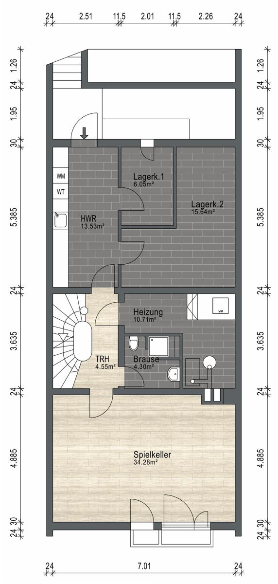
Grundriss

64291 Darmstadt-Arheilgen

Gewerblicher Anbieter

Volksbank Immobilien GmbH -Ein Tochterunternehmen der Volksbank Darmstadt Mainz eG
Schulstraße 4
64521 Groß-Gerau

Details

Grundstücksfläche
283 m²
Zimmerzahl
6
Haustyp
Reihenhaus
Etagenzahl
4
Bezugsfrei ab
Herbst/Winter 2025
Anzahl Badezimmer
4
Anzahl Garage/ Stellplatz
2
Objektzustand
Renovierungsbedürftig
Baujahr
1978

Kosten

Kaufpreis
630.000 €
Käuferprovision
3,57 % des Kaufpreises inkl. MwSt.
Was kostet dein Umzug?

Stellplätze

Stellplatztyp
Freiplatz
Anzahl
2
Stellplatztyp
Garage
Anzahl
1

Objektbeschreibung

In gesuchter Randlage einer Sackgasse des Darmstädter Stadtteils Arheilgen wurde dieses Reihenhaus für die Nutzung von 2 Generationen konzipiert und umgesetzt. Der Bauherr hat die Herausforderung von großzügiger Wohnfläche und Grundstücksausnutzung im Reihenhauscharakter zweckmäßig umgesetzt. Sowohl im EG als auch OG sind so eine 2 bzw. 3-Zi.-Wohnung mit Küche, Bad, Gäste-WC und Wintergarten bzw. Loggia entstanden. Der Wintergarten verbindet gekonnt den wohldimensionierten Gartenbereich mit dem Wohnbereich. Im DG steht weitere Fläche zur evtl. Wohnnutzung bereit, hier ist bereits eine 2-Zi.Wohnung mit Küche und Duschbad realisiert worden. Der Kellerbereich bietet ausreichende Möglichkeiten der Nutzung. Vor Ihrem Einzug setzen Sie die zeitgemäße Modernisierung um. Eine Garage und 1 Stellplatz gehören ebenfalls zu diesem interessanten Angebot.


Bausubstanz & Energieausweis

A+

A

B

C

93,6 kWh/(m²*a)

D

E

F

G

H

Baujahr
1978
Objektzustand
Renovierungsbedürftig
Wesentlicher Energieträger
Gas
Heizungsart
Zentralheizung
Befeuerung
Gasheizung
Energieausweistyp
Bedarfsausweis
Gültig bis
04.09.2035
Energieeffizienzklasse
C
Endenergiebedarf
93,6 kWh/(m²*a)

Lagebeschreibung

Der Darmstädter Stadtteil Arheilgen hebt sich besonders durch seine eigene Infrastruktur ab. Das Objekt befindet sich in ruhiger gesuchter Wohnlage des Darmstädter Stadtteils Arheilgen. In der örtlichen Umgebung finden Sie alles für den täglichen Bedarf.
Die Straßenbahnhaltestelle Richtung Darmstadt ist fußläufig erreichbar, die S-Bahn-Station Darmstadt-Frankfurt-Bad Soden erreichen Sie mit dem ortsinternen Linienverkehr oder per Rad.
Die BAB A5 Anschlussstelle Weiterstadt sowie die A661 Anschlussstelle Egelsbach sind in 6-7 Km erreichbar.


Sonstige Angaben

Erfolgte Modernisierungen:



  • 2009 Gas-Heizung

  • 2019 Hebeanlage

  • 2000/2005 Dachflächenfenster


Wohnung finden so einfach wie möglich - das ist unsere Mission!

Kostenlose Basic Features

0 € monatlich


  • Individuelles Such-Profil anlegen
  • Suchaufträge speichern
  • One-Klick Kontaktaufnahme

alles anzeigen

Jetzt kostenlos anmelden

Premium Features

19,99 € monatlich


  • Alle kostenlosen Features
  • Smart-Alarm per Whatsapp
  • Deine Chancen checken
  • Wohngegend analysieren

alles anzeigen

Jetzt Premium freischalten

Gewerblicher Anbieter

Volksbank Immobilien GmbH -Ein Tochterunternehmen der Volksbank Darmstadt Mainz eG
Schulstraße 4
64521 Groß-Gerau

Wohnglück-ID:
Objekt-Nr.:
WGL-753595
10142#rS2fVz