Dachgeschosswohnung in Fraureuth

Garage/­Stellplatz

Erstbezug nach Renovierung - Dachgeschosswohnung in Fraureuth

Anfragen bisher

Premium

Meine Chancen

Premium

Fairer Preis

Premium

408 €

Kaltmiete

68 m²

3 Zi.

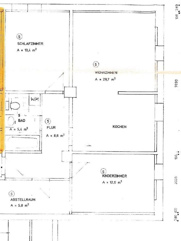
Grundriss

Hauptstraße 70
08427 Fraureuth

Gewerblicher Anbieter

Volksbank Chemnitz Immobiliengesellschaft mbH
Zschopauer Straße 254
09126 Chemnitz

Details

Zimmerzahl
3
Wohnungstyp
Dachgeschosswohnung
Etagenzahl
3
Anzahl Badezimmer
1
Anzahl Garage/ Stellplatz
1
Letzte Modernisierung/ Sanierung
2025
Baujahr
1910

Kosten

Kaltmiete
408 €
Nebenkosten
120 €
Kaution
816 €
Was kostet dein Umzug?

Stellplätze

Stellplatztyp
Freiplatz
Anzahl
1

Objektbeschreibung

Die helle Dachgeschosswohnung in Fraureuth ist gerade frei geworden und wird aktuell von den Eigentümern renoviert. Die Wohnung befindet sich in einem gepflegtem Mehrfamilienhaus, welches nur wenige Mietparteien besitzt. Die 3-Raum-Wohnung mit ca. 68m², im Dachgeschoss, verfügt über eine helle Küche, ein innen liegendes Bad mit neuer Walk Inn Dusche, sowie über ein Wohn- und ein Schlafzimmer sowie Kinderzimmer. Alle Räume werden mit Laminat oder Fliesen ausgestattet. In der Wohnung und auf dem Hausflur befinden sich zusätzliche Abstellmöglichkeiten.
Für die zukünftigen Mieter stehen ausreichend kostenfreie Parkmöglichkeiten zur Verfügung und der Hinterhof kann ebenfalls mit genutzt werden.
Besichtigungen werden gern individuell terminiert.
Für die zukünftigen Mieter stehen ausreichend kostenfreie Parkmöglichkeiten zur Verfügung und der Hinterhof kann ebenfalls mit genutzt werden.
Besichtigungen werden gern individuell terminiert.


Bausubstanz & Energieausweis

A+

A

B

C

D

E

F

G

H

Baujahr
1910
Letzte Modernisierung
2025
Wesentlicher Energieträger
Gas
Heizungsart
Zentralheizung
Befeuerung
Gasheizung
Energieausweis
liegt vor
Energieausweistyp
Verbrauchsausweis
Ausstellungsdatum
26.07.2022
Gültig bis
25.07.2032
Energieeffizienzklasse
C

Ausstattung

Individuelle Ausstattungsmerkmale:

- Bad mit Walk Inn Dusche

+ Dachgeschosswohnung



  • neu Renoviert. (Wand und Bodenbeläge sowie Keramik im Bad und Walk Inn Dusche)

  • 3-Raum-Wohnung mit ca. 68m²

  • Abstellraum

  • Innen liegendes Bad mit Walk Inn Dusche

  • Laminat- und Fliesenböden

  • kostenfreie Parkmöglichkeiten


Lagebeschreibung

Das Objekt befindet sich in Fraureuth. Die sächsische Gemeinde gehört zum Landkreis Zwickau und hat ca. 5500 Einwohner.
In weniger als 15 km erreichen Sie die Städte Zwickau, Greiz, Reichenbach, Werdau und Crimmitschau.
Im Ort selbst finden sich die Einrichtungen des öffentlichen Lebens wie Einkaufmöglichkeiten, Ärzte, Schulen und öffentliche Verkehrsmittel.
In Fraureuth finden sich verschiedene Vereine, ein Freibad, eine Sport- und Mehrzweckhalle sowie verschiedene Rad- und Wanderwege befinden sich in der Umgebung.


Sonstige Angaben

Der Inhalt unseres Exposé wurde mit Sorgfalt zusammengestellt. Wir weisen darauf hin, dass die von uns weitergegebenen Objektinformationen vom Vermieter/Eigentümer bzw. von einem vom Vermieter/Eigentümer beauftragten Dritten stammen und von uns auf ihre Richtigkeit nicht überprüft worden sind. Es ist Sache des Kunden, diese Angaben auf ihre Richtigkeit hin zu überprüfen. Als Makler geben wir diese Informationen nur weiter und übernehmen für die Richtigkeit keinerlei Haftung.


Wohnung finden so einfach wie möglich - das ist unsere Mission!

Kostenlose Basic Features

0 € monatlich


  • Individuelles Such-Profil anlegen
  • Suchaufträge speichern
  • One-Klick Kontaktaufnahme

alles anzeigen

Jetzt kostenlos anmelden

Premium Features

19,99 € monatlich


  • Alle kostenlosen Features
  • Smart-Alarm per Whatsapp
  • Deine Chancen checken
  • Wohngegend analysieren

alles anzeigen

Jetzt Premium freischalten

Gewerblicher Anbieter

Volksbank Chemnitz Immobiliengesellschaft mbH
Zschopauer Straße 254
09126 Chemnitz

Wohnglück-ID:
Objekt-Nr.:
WGL-752493
02877