Einfamilienhaus freistehend in Bad Neuenahr-Ahrweiler (Ahrweiler)

Garage/­Stellplatz

Abrissobjekt zur Projektierung - auch als Mehrfamilienhaus möglich

Anfragen bisher

Premium

Meine Chancen

Premium

Fairer Preis

Premium

354.000 €

Kaufpreis

200 m²

8 Zi.

Grundriss

53474 Bad Neuenahr-Ahrweiler / Ahrweiler

Gewerblicher Anbieter

IMMOTAS GmbH & Co. KG
Bahnhofstraße 16
67269 Grünstadt

Details

Grundstücksfläche
576 m²
Zimmerzahl
8
Haustyp
Einfamilienhaus freistehend
Etagenzahl
2
Nutzfläche
80 m²
Anzahl Garage/ Stellplatz
1
Objektzustand
Abrissobjekt
Baujahr
1953

Kosten

Kaufpreis
354.000 €
Käuferprovision
3,57 % inkl. MwSt.
Was kostet dein Umzug?

Stellplätze

Stellplatztyp
Garage
Anzahl
2

Objektbeschreibung

Willkommen in Bad Neuenahr-Ahrweiler, einem bezaubernden Ortsteil von Ahrweiler, der durch seine idyllische Lage und hervorragende Infrastruktur besticht. Hier präsentieren wir Ihnen die besondere Gelegenheit, ein Grundstück mit großem Entwicklungspotenzial zu erwerben.


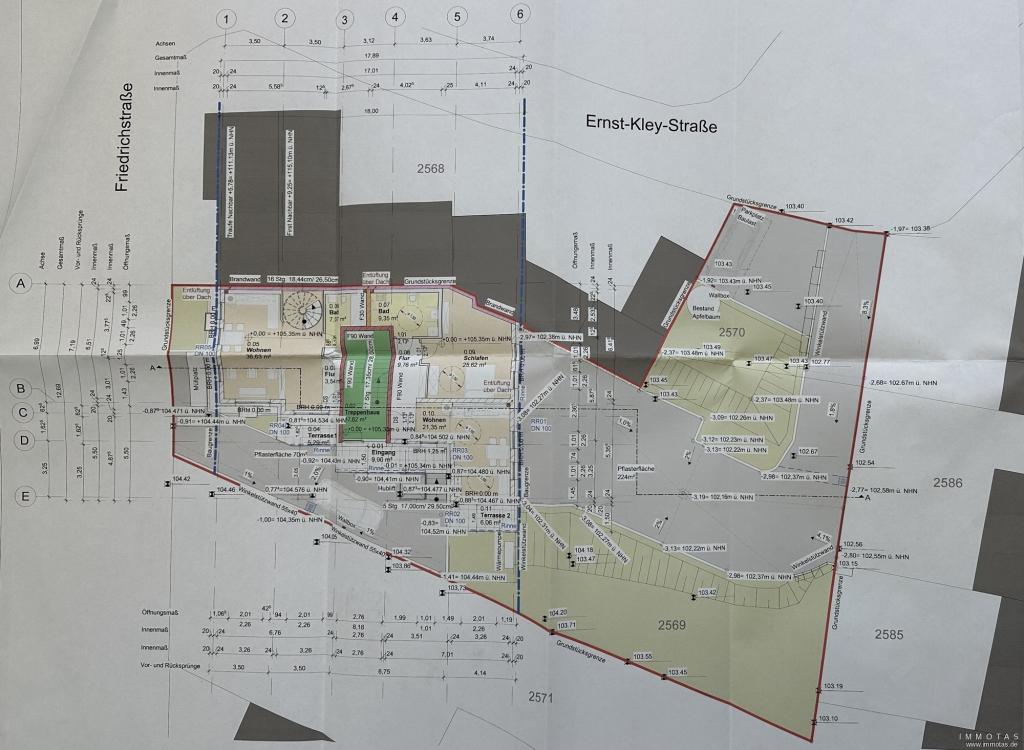
Das im Jahr 1953 errichtete Einfamilienhaus (Doppelhaushälfte) auf diesem Grundstück ist als Abrissobjekt vorgesehen. Dies bietet eine großartige Möglichkeit für all jene, die den Raum für ein neues, modernes Bauprojekt nutzen möchten. Ein Bauantrag für ein Mehrfamilienhaus wurde bereits im März 2023 genehmigt und ist hier als Projektierung eingestellt.


Mit einer Grundstücksgröße von 576 m² und der Möglichkeit, eine erneute Baugenehmigung für ein Mehrfamilienhaus zu beantragen, eröffnet sich hier ein attraktives Szenario für Investoren und Entwickler. Bei der erneuten Antragsstellung könnten auch Anpassungen an der ursprünglichen Projektierung vorgenommen werden, was zusätzliche Flexibilität für Ihre Visionen bietet.


Ob Sie ein ambitionierter Investor sind oder ein innovatives Bauvorhaben realisieren möchten – dieses Grundstück in einer der begehrtesten Gegenden von Ahrweiler offeriert Ihnen vielfältige Möglichkeiten. Nutzen Sie diese Chance, Ihre eigenen Pläne auf einem vielversprechenden Grundstück zu verwirklichen: https://immotas.de/de/immobilie/abrissobjekt-zur-projektierung-auch-als-mehrfamilienhaus-moeglich-9250f344


Bausubstanz & Energieausweis

Objektzustand
Abrissobjekt
Heizungsart
Sonstige
Energieausweis
Laut Gesetz nicht erforderlich

Ausstattung

Abrissobjekt - ehemaliges "Fluthaus"


1953 Baujahr Einfamilienhaus (Doppelhaushälfte)
zweigeschossige Massivbauweise
teilweise unterkellert
Dachgeschoss zu Wohnzwecken ausgebaut


Es wurde bereits vor über zwei Jahren ein Bauantrag zur Errichtung eines Mehrfamilienhauses genehmigt. Dieser wird als Projektierungsbeispiel den Unterlagen beigefügt. Eine Neugenehmigung müsste allerdings nochmals eingeholt werden - in diesem Rahmen könnten dann auch bei Bedarf Veränderungen an der Projektierung vorgenommen bzw. angefragt werden.


Lagebeschreibung

Das Einfamilienhaus befindet sich in der charmanten Stadt Bad Neuenahr-Ahrweiler, im Ortsteil Ahrweiler, einer der malerischsten Regionen Deutschlands. Eingebettet in die idyllische Landschaft des Ahrtals, bietet diese Lage eine harmonische Balance zwischen Natur und urbanem Leben. Die Region ist bekannt für ihre Weinberge und die beeindruckende Ahrschleife, die ein Paradies für Naturliebhaber und Wanderfreunde ist.


Trotz seiner ruhigen, naturnahen Umgebung zeichnet sich Ahrweiler durch eine hervorragende Infrastruktur aus. Das Stadtzentrum ist schnell erreichbar und bietet eine Vielzahl von Einkaufsmöglichkeiten, gemütlichen Cafés und erstklassigen Restaurants. Darüber hinaus ist Bad Neuenahr-Ahrweiler für seine Thermalbäder und Gesundheitsangebote bekannt, was es zu einem Anziehungspunkt für Erholungssuchende macht.


Verkehrstechnisch ist die Lage günstig. Sie profitieren von einer guten Anbindung an das öffentliche Verkehrsnetz, während die Autobahn A61 in kurzer Fahrzeit zu erreichen ist und somit eine schnelle Verbindung zu den umliegenden Großstädten gewährleistet. Auch das Bildungsangebot in der Region ist vielfältig, mit einer Reihe von Schulen und Kindergärten in der Nähe.


Diese Lage verbindet die Vorzüge ländlicher Idylle mit den Annehmlichkeiten städtischen Lebens und schafft somit ein perfektes Umfeld für Familien und all jene, die ein Zuhause in einer freundlichen und lebenswerten Gemeinschaft suchen.


Sonstige Angaben

Wenn Sie Interesse an diesem Objekt haben, sprechen Sie uns an. Auch in Finanzierungsfragen helfen wir Ihnen gerne weiter. Sollten Sie eine Immobilie zu verkaufen haben oder suchen Sie einen Nachmieter für Ihre Wohnung/Ihr Haus, informieren wir Sie gerne unverbindlich über unseren Service, der professionellen Immobilienvermarktung. Wir freuen uns auf Ihre Anfrage!


Wohnung finden so einfach wie möglich - das ist unsere Mission!

Kostenlose Basic Features

0 € monatlich


  • Individuelles Such-Profil anlegen
  • Suchaufträge speichern
  • One-Klick Kontaktaufnahme

alles anzeigen

Jetzt kostenlos anmelden

Premium Features

19,99 € monatlich


  • Alle kostenlosen Features
  • Smart-Alarm per Whatsapp
  • Deine Chancen checken
  • Wohngegend analysieren

alles anzeigen

Jetzt Premium freischalten

Gewerblicher Anbieter

IMMOTAS GmbH & Co. KG
Bahnhofstraße 16
67269 Grünstadt

Wohnglück-ID:
Objekt-Nr.:
WGL-751551
SP-25-KG-65