Reihenhaus in Tholey (Scheuern)

Garten/­-mitbenutzung

Eigenheim selbst gestalten! GĂĽnstig kaufen und nach eigenen Vorstellungen kernsanieren

Anfragen bisher

Premium

Meine Chancen

Premium

Fairer Preis

Premium

59.000 â‚¬

Kaufpreis

100 m²

4 Zi.

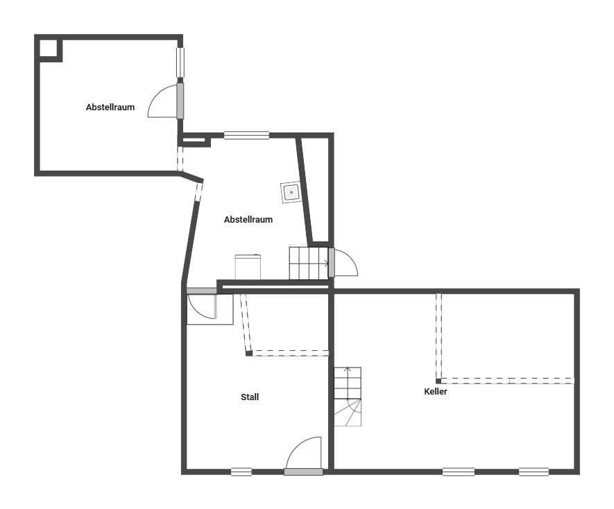
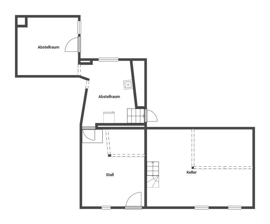
Grundriss

66636 Tholey

Gewerblicher Anbieter

Bank 1 Saar Immobilien GmbH
Kaiserstr. 17-19
66111 SaarbrĂĽcken

Details

Grundstücksfläche
358 m²
Zimmerzahl
4
Haustyp
Reihenhaus
Etagenzahl
2
Bezugsfrei ab
ab sofort
Anzahl Schlafzimmer
3
Anzahl Badezimmer
1

Kosten

Kaufpreis
59.000 €
Käuferprovision
2975 EUR
Was kostet dein Umzug?

Objektbeschreibung

Dieses sanierungsbedürftige Einfamilienhaus mit ca. 100 m² Wohnfläche und insgesamt zwei bis drei Schlafzimmern bietet kreativen Köpfen und handwerklich Begabten die ideale Gelegenheit, sich den Traum vom Eigenheim nach eigenen Vorstellungen und individuellen Bedürnissen zu verwirklichen.


Das Gebäude weist einen erheblichen Sanierungsstau auf und muss vollständig kernsaniert werden – von der Elektrik über die Heizung bis hin zu Fenstern, Dach und Sanitäranlagen. Es handelt sich um ein klassisches Handwerkerhaus, das durch seinen günstigen Einstiegspreis besonders interessant ist für Investoren, Selbstnutzer mit handwerklichem Geschick oder Bauprojekte im Familienverbund.


Zusätzlich gehört eine angebaute, ehemalige Scheune zum Objekt, die vielfältiges Ausbaupotenzial bietet und sich ideal zur Erweiterung der Wohnfläche oder für kreative Nutzungskonzepte eignet.


Die genaue Raumaufteilung im Wohnhaus ist wie folgt:


Erdgeschoss:
Diele, KĂĽche mit Zugang zum Garten, Esszimmer, Wohnzimmer


Obergeschoss: Flur, Schlafzimmer 1, Schlafzimmer 2 (Durchgangszimmer), Schlafzimmer 3, kleines Dusch-Bad


Darüber hinaus ist das das Haus voll unterkellert und bietet weitere Nutzfläche in Keller- und Nebenräumen.


Highlights:



  • GroĂźer Gestaltungsspielraum: Ideal fĂĽr individuelle Grundrisslösungen je nach persönlichen BedĂĽrfnissen und moderne Wohnkonzepte

  • Garten in Hanglage in angenehmer Größe: RĂĽckwärtig gelegen, mit viel Potenzial fĂĽr Terrasse, Hochbeet oder naturnahe Gestaltung

  • Ruhiger Ortsteil mit guter Anbindung, angenehmer Nachbarschaft und ländlichem Charme

  • Schnäppchenpreis: geringe Anschaffungskosten - mehr Kapital zum sanieren!

  • Ideal fĂĽr Eigenleister: Kein Denkmalschutz – Sie haben alle Freiheiten fĂĽr Umgestaltung, Ausbau und Modernisierung


Wir freuen uns auf Ihre Kontaktaufnahme!
Ihr Immobilienspezialist im Saarland


Bausubstanz & Energieausweis

Heizungsart
Sonstige
Energieausweis
Laut Gesetz nicht erforderlich

Lagebeschreibung

Die Immobilie befindet sich in der Hauptverkehrsstraße im idyllischen Ortsteil Scheuern, einem Teil der bekannten Gemeinde Tholey im nördlichen Saarland. Scheuern zeichnet sich durch seine ruhige, familienfreundliche Atmosphäre und die naturnahe Umgebung aus. Der Ort liegt am Fuße des Schaumbergs, einem beliebten Ausflugsziel mit vielfältigen Freizeitmöglichkeiten und einem hohen Erholungswert.
Trotz der verkehrstechnisch stärker frequentierten Lage herrscht in der Straße ein angenehmes, dörfliches Wohnklima mit gewachsener Nachbarschaft.

Infrastruktur und Anbindung:
Alle wichtigen Einrichtungen des täglichen Bedarfs sind in wenigen Minuten erreichbar – darunter Supermärkte, Bäckereien, Apotheken sowie ärztliche Versorgung. Schulen und Kindergärten befinden sich sowohl direkt im Ort als auch in den Nachbarorten und sind gut mit dem Bus erreichbar. Eine Bushaltestelle liegt in fußläufiger Entfernung.
Die Anbindung an den überregionalen Verkehr ist hervorragend: Die Autobahn A1 ist nur wenige Fahrminuten entfernt und ermöglicht eine schnelle Verbindung nach Saarbrücken, Trier und ins benachbarte Rheinland-Pfalz. Auch der öffentliche Nahverkehr ist gut ausgebaut.

Freizeit & Natur:
Die Umgebung lädt zu Spaziergängen, Wanderungen und Radtouren ein – sei es im nahegelegenen Naturpark Saar-Hunsrück, auf dem Schaumbergplateau oder entlang der malerischen Feld- und Waldwege rund um Scheuern. Das Erlebnisbad am Schaumberg, Wanderwege wie der Schaumberg-Tafeltour oder kulturelle Angebote in Tholey – darunter die berühmte Benediktinerabtei – bieten zusätzliche Freizeitqualität.


Wohnung finden so einfach wie möglich - das ist unsere Mission!

Kostenlose Basic Features

0 € monatlich


  • Individuelles Such-Profil anlegen
  • Suchaufträge speichern
  • One-Klick Kontaktaufnahme

alles anzeigen

Jetzt kostenlos anmelden

Premium Features

19,99 € monatlich


  • Alle kostenlosen Features
  • Smart-Alarm per Whatsapp
  • Deine Chancen checken
  • Wohngegend analysieren

alles anzeigen

Jetzt Premium freischalten

Gewerblicher Anbieter

Bank 1 Saar Immobilien GmbH
Kaiserstr. 17-19
66111 SaarbrĂĽcken

WohnglĂĽck-ID:
Objekt-Nr.:
WGL-746572
006903#eBkRJ