Erdgeschosswohnung in Saarbrücken (St. Johann)

Gäste WC
Garage/­Stellplatz

SB-Dudweiler - Altengerechte Wohnung im KFW 40 Energiesparhaus - Hohe Steuervorteile sichern !

Anfragen bisher

Premium

Meine Chancen

Premium

Fairer Preis

Premium

363.000 €

Kaufpreis

96,8 m²

3 Zi.

66125 Saarbrücken

Gewerblicher Anbieter

Scherf Profi Immobilien Service GmbH
Paulinstraße 104
54292 Trier

Details

Zimmerzahl
3
Wohnungstyp
Erdgeschosswohnung
Bezugsfrei ab
kurzfristig beziehbar
Anzahl Schlafzimmer
2
Anzahl Badezimmer
1
Anzahl Garage/ Stellplatz
1
Objektzustand
Erstbezug
Baujahr
2025

Kosten

Kaufpreis
363.000 €
Käuferprovision
keine
Was kostet dein Umzug?

Stellplätze

Stellplatztyp
Tiefgarage
Anzahl
1
Kaufpreis
19.500 €

Objektbeschreibung

Moderne helle altersgerechte Wohnung mit moderner Technik im KFW 40 Energiesparhaus in

zentraler Lage von Saarbrücken-Dudweiler
Hohe Steuervorteile durch Neubauabschreibungen für Vermieter möglich !
Energiesparendes Bauen im KFW 40 Standard. Altengerechtes schönes Wohnen mit moderner kostengünstiger Heiztechnik in gefragter Lage in Saarbrücken-Dudweiler. In dieser exponierten Lage entstehen moderne attraktive Eigentumswohnungen von ca. 48 bis ca. 93 m² mit moderner Technik in altersgerechter Ausführung mit Aufzug und Tiefgarage. Elektrische Rollläden, schöne Fliesen und Sanitärausstattungen, hochwertige Wohnungseingangstüren, moderne 3-fach verglaste Fenster, eine gute Elektroausstattung, eine kontrollierte Wohnraumbelüftung mit Wärmerückgewinnung sowie attraktive Parkettböden werden ausgeführt. Bei der Konzeption des Objektes wurde besonders auf Energiesparendes Bauen geachtet, was durch den aufwendigen KFW 40 Standard dokumentiert wird (Energieklasse A +). Die Kombination von moderner Technik sowie hochwertiger Isolierung führt zu sehr günstigen Heizkosten bzw. Nebenkosten. Alle Wohnungen verfügen über schöne Balkone oder Wintergärten mit guter Besonnung .

Geniesen Sie den Wohnkomfort eines modernen hellen überwiegend barrierefreien Gebäudes mit neuester Technik.
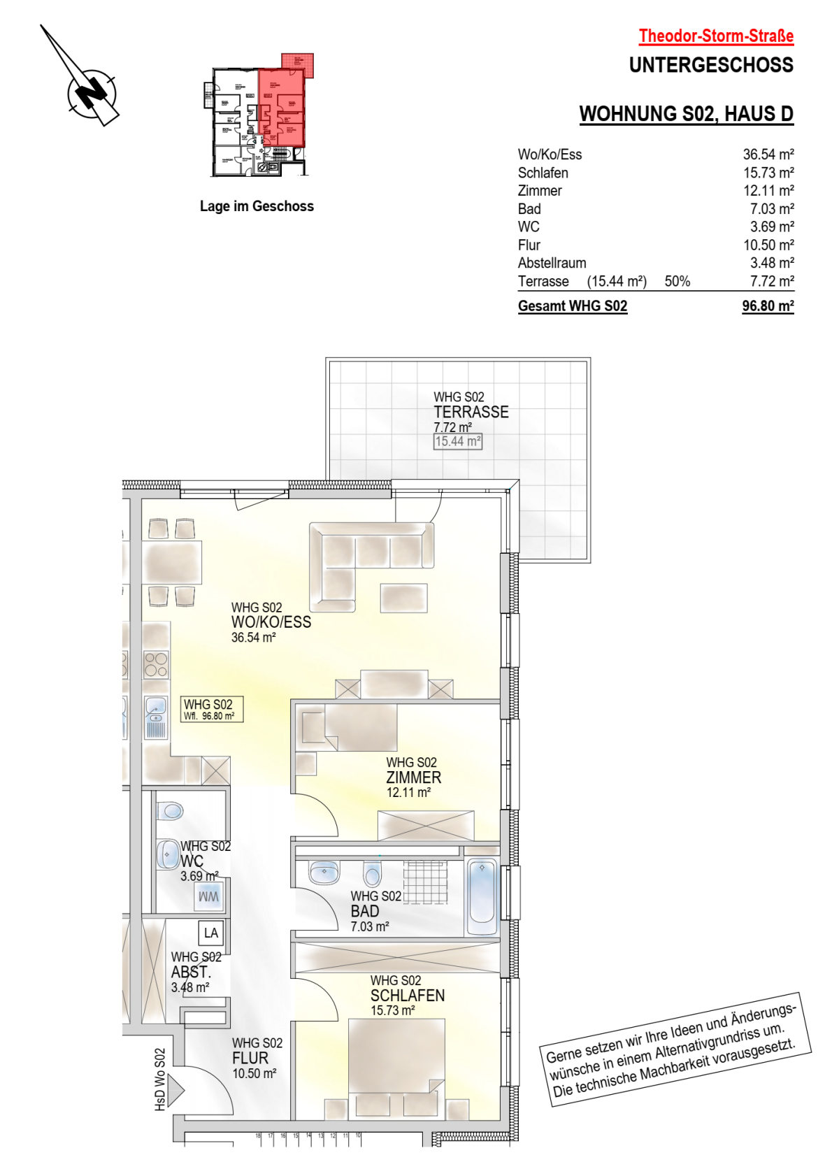
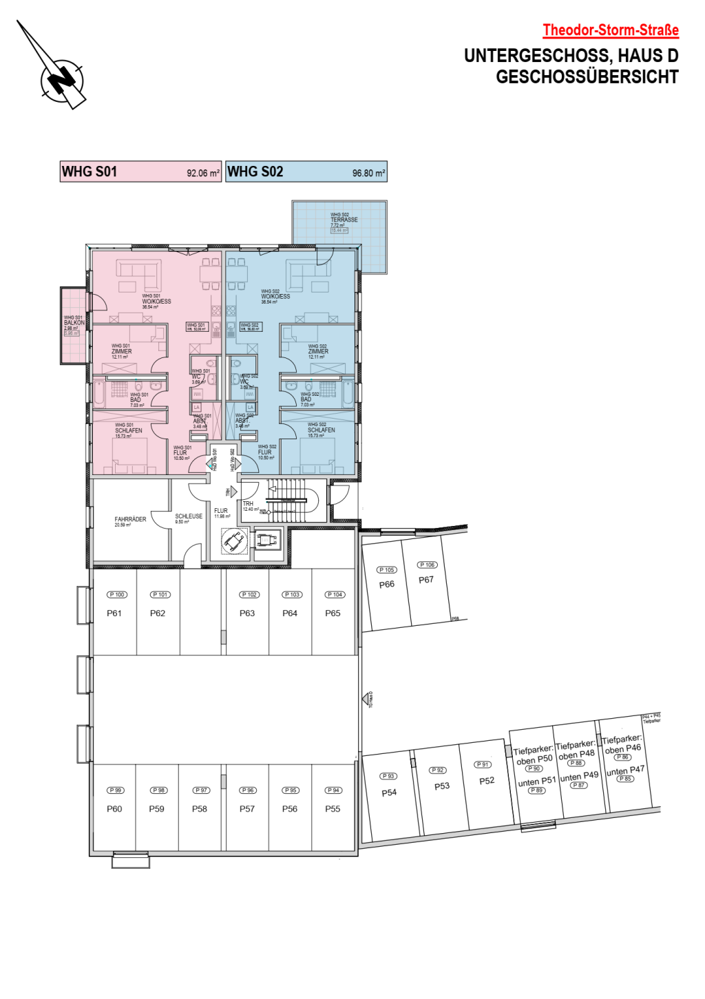
Das Angebot bezieht sich auf die Wohnung S 02 im Untergeschoß. Sie gelangen über eine geräumige Diele mit Garderobe in die Wohnung. Von der Diele gelangen Sie in den hellen geräumigen Wohn/Eßbereich mit offener Küche von ca. 37 m² mit Ausgang auf die schöne Terrasse. Von der Diele gelangen Sie ebenfalls in das Kinderzimmer/Büro von ca. 12 m² , das geräumige Bad mit Fenster von ca. 7 m² - ausgestattet mit Wanne und Dusche sowie das gut aufgeteilte Schlafzimmer von ca. 16 m². Garderobe, Gäste-WC und Abstellraum vervollständigen das Angebot. Die Wohnung hat eine Wohnfläche von ca. 97 m².
Es besteht die Möglichkeit einen Tiefgaragenstellplatz für 19.500 EUR zu erwerben.

Die Wohnung ist kurzfristig beziehbar.


Bausubstanz & Energieausweis

A+

15 kWh/(m²*a)

A

B

C

D

E

F

G

H

Baujahr
2024
Objektzustand
Erstbezug
Wesentlicher Energieträger
Luft/Wasser-Wärmepumpe
Heizungsart
Fußbodenheizung
Befeuerung
Wärmepumpe
Energieausweis
liegt vor
Energieausweistyp
Bedarfsausweis
Ausstellungsdatum
09.01.2024
Gültig bis
09.01.2034
Energieeffizienzklasse
A+
Endenergiebedarf
15 kWh/(m²*a)

Ausstattung

Moderne helle altersgerechte Wohnung mit moderner Technik im KFW 40 Energiesparhaus in

zentraler Lage von Saarbrücken-Dudweiler
Hohe Steuervorteile durch Neubauabschreibungen für Vermieter möglich !
Energiesparendes Bauen im KFW 40 Standard. Altengerechtes schönes Wohnen mit moderner kostengünstiger Heiztechnik in gefragter Lage in Saarbrücken-Dudweiler. In dieser exponierten Lage entstehen moderne attraktive Eigentumswohnungen von ca. 48 bis ca. 93 m² mit moderner Technik in altersgerechter Ausführung mit Aufzug und Tiefgarage. Elektrische Rollläden, schöne Fliesen und Sanitärausstattungen, hochwertige Wohnungseingangstüren, moderne 3-fach verglaste Fenster, eine gute Elektroausstattung, eine kontrollierte Wohnraumbelüftung mit Wärmerückgewinnung sowie attraktive Parkettböden werden ausgeführt. Bei der Konzeption des Objektes wurde besonders auf Energiesparendes Bauen geachtet, was durch den aufwendigen KFW 40 Standard dokumentiert wird (Energieklasse A +). Die Kombination von moderner Technik sowie hochwertiger Isolierung führt zu sehr günstigen Heizkosten bzw. Nebenkosten. Alle Wohnungen verfügen über schöne Balkone oder Wintergärten mit guter Besonnung .

Geniesen Sie den Wohnkomfort eines modernen hellen überwiegend barrierefreien Gebäudes mit neuester Technik.
Das Angebot bezieht sich auf die Wohnung S 02 im Untergeschoß. Sie gelangen über eine geräumige Diele mit Garderobe in die Wohnung. Von der Diele gelangen Sie in den hellen geräumigen Wohn/Eßbereich mit offener Küche von ca. 37 m² mit Ausgang auf die schöne Terrasse. Von der Diele gelangen Sie ebenfalls in das Kinderzimmer/Büro von ca. 12 m² , das geräumige Bad mit Fenster von ca. 7 m² - ausgestattet mit Wanne und Dusche sowie das gut aufgeteilte Schlafzimmer von ca. 16 m². Garderobe, Gäste-WC und Abstellraum vervollständigen das Angebot. Die Wohnung hat eine Wohnfläche von ca. 97 m².
Es besteht die Möglichkeit einen Tiefgaragenstellplatz für 19.500 EUR zu erwerben.

Die Wohnung ist kurzfristig beziehbar.


Lagebeschreibung

Saarbrücker Dudweiler, Am Anger zentrale Stadtlage im Stadtteil Dudweiler. Alle Einrichtungen des täglichen Bedarfs sind auf kurzen Wegen fußläufig oder per Fahrrad erreichbar. Sie sind in wenigen Gehminuten im Zentrum mit diversen Einkaufsmöglichkeiten bzw. weiteren Angeboten des täglichen Bedarfs.
Das Objekt befindet sich in der Theodor-Storm-Straße


Sonstige Angaben

Vereinbaren Sie einen Besichtigungstermin ! In Zusammenarbeit mit einem Finanzierungsvermittler sind wir Ihnen gerne bei der Gestaltung Ihrer Finanzierung behilflich. Die Zinsen können z.B. auf die Dauer von 10 oder 15 Jahren festgeschrieben werden. Hierdurch können sich Ihre monatlichen Raten nicht verändern !


Die KFW Darlehen können über die jeweils finanzierende Bank mit dem Sitz in Deutschland beantragt und abgewickelt werden. Die erforderliche Bestätigung des Energieberaters kann zeitnah erstellt werden.
Hinweis bei Vermietung: Die Wohnungen können bei einem Erwerb bis zum Jahr der Fertigstellung und einer Vermietung entsprechend den aktuellen Änderungen des Wirtschaftschancengesetzes mit einer degressiven Abschreibung von jährlich 5 % bezogen auf den jeweiligen Buchwert abgeschrieben werden. Hierdurch werden hohe Steuervorteile erzielt. Wir übernehmen weder eine steuerliche Beratung noch die Haftung für steuerliche Ziele. Sprechen Sie mit Ihrem Steuerberater. Dieser berät Sie gerne umfassend und fachgerecht.


Weitere interessante Kauf- oder Mietangebote finden Sie unter www.scherf-immobilien.de


Wohnung finden so einfach wie möglich - das ist unsere Mission!

Kostenlose Basic Features

0 € monatlich


  • Individuelles Such-Profil anlegen
  • Suchaufträge speichern
  • One-Klick Kontaktaufnahme

alles anzeigen

Jetzt kostenlos anmelden

Premium Features

19,99 € monatlich


  • Alle kostenlosen Features
  • Smart-Alarm per Whatsapp
  • Deine Chancen checken
  • Wohngegend analysieren

alles anzeigen

Jetzt Premium freischalten

Gewerblicher Anbieter

Scherf Profi Immobilien Service GmbH
Paulinstraße 104
54292 Trier

Wohnglück-ID:
Objekt-Nr.:
WGL-746132
ETWDU102A