Einfamilienhaus freistehend in Dillingen an der Donau (Dillingen a.d.Donau)

Balkon/­Terrasse

Rarität im Zentrum - Ensembleschutz - Kernsanierung vom Fachmann!

Anfragen bisher

Premium

Meine Chancen

Premium

Fairer Preis

Premium

525.000 €

Kaufpreis

203,6 m²

6 Zi.

89407 Dillingen a.d.Donau

Gewerblicher Anbieter

VR-Bank Handels- und Gewerbebank eG

Details

Grundstücksfläche
170 m²
Zimmerzahl
6
Haustyp
Einfamilienhaus freistehend
Bezugsfrei ab
sofort
Baujahr
1940

Kosten

Kaufpreis
525.000 €
Käuferprovision
2,380 %
Was kostet dein Umzug?

Objektbeschreibung

Die Große Kreisstadt Dillingen am Nordufer der Donau im Donauried ist Verwaltungssitz des gleichnamigen Landkreises im bayerischen Regierungsbezirk Schwaben. Mit der Regionalbahn können Donauwörth und Günzburg schnell erreicht werden. Die Lage an der B16 bietet einen direkten Anschluss zur A8 (Stuttgart München). Auch die A7 (Würzburg Ulm Füssen) ist in 25 km schnell zu erreichen. Die nahe gelegenen Donauauen und der durch die Stadt führende Donauradweg bietet für Freizeitaktivitäten ideale Möglichkeiten.

Das im Jahre 1940 errichtete Wohnhaus liegt mitten in der historischen Altstadt von Dillingen. Zahlreiche Einzelhandelsgeschäfte, Bahnhof, Ärzte, Apotheke, Sportplatz, Freibad, Schulen und Kindergarten sind fußläufig erreichbar. Die Seelgasse ist ein Straßenzug, welcher aufgrund seiner historischen Bedeutung unter Denkmalschutz (Ensembleschutz) steht. Der Eigentümer eines renommierten und ansässigen Handwerksbetriebes hat in diesem besonderen Objekt das große Potential gesehen und im Oktober 2024 mit der Kernsanierung begonnen. In enger Absprache mit der Denkmalschutzbehörde wurden alle Gewerke auf den Stand der heutigen Technik gebracht der neue Besitzer darf sich an dem Charme des Objekts erfreuen, alle Anforderungen an den Denkmalschutz wurden bereits erfüllt.

Ein besonderer Reiz dieses großartigen Objekts ist der private Stadtgarten, welcher von der Frau des Eigentümers liebevoll und pflegeleicht angelegt wurde. Dort können Sie Kinder oder Haustiere unbesorgt im Freien spielen lassen (der Garten ist in sich geschlossen), Kräuter anlegen oder einfach nur entspannt den Tag ausklingen lassen.

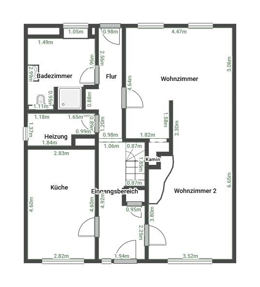
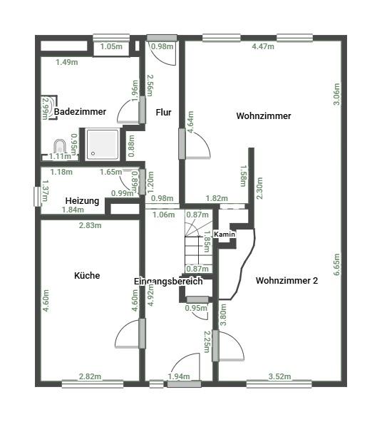
Das Schmuckstück erstreckt sich auf drei Etagen, im Erdgeschoß befindet sich die Küche, das großzügige Wohnzimmer mit originalem Kachelofen, das Tageslichtbad mit Dusche und der Heizungsraum. Vom lichtdurchfluteten Flur gelangt man in den Garten und Außenbereich mit Abstellkammer sowie Strom- und Wasseranschluss. Im ersten Stock finden Sie drei Schlafzimmer, ein Badezimmer mit Fußbodenheizung, freistehender Badewanne, Dusche und WC, sowie einen wettergeschützten Balkon mit praktischer Abstellkammer. Im 2. OG bietet der flexibel nutzbare Konferenzraum mit Sichtbalken und Deckenspots einen tollen Raum zum Arbeiten, Kurse geben oder z.B. als Heimkino! Auf der zweiten Etage befindet sich zudem ein separates (Schlaf-)Zimmer.

Die Qualität der Ausführung ist bemerkenswert, da der Bauherr als Fachmann gebaut hat, als würde er selbst einziehen. Die Böden wurden nivelliert und neu aufgebaut, die Dachplatten beschichtet, eine Zwischensparrendämmung von 18cm und zusätzlichen Bohlen (4cm) wurde als Stütze angebracht, die Wände von innen mit Silikatfaserplatten gedämmt, die Fassade neugestaltet und die Haustechnik ist auf dem Stand 07/2025. Alle Oberflächen im Haus dürfen als neu bezeichnet werden! Ein schönes Detail ist z.B. der originale Kachelofen im Wohnzimmer, welcher mit einer separat steuerbaren, elektrische Sitzheizung ergänzt wurde, sie bietet wohlige Wärme ohne den Ofen anzuschüren.

Ausstattungsmerkmale (alles 2024/2025):
Fliesenböden, Vinyl
Holzfenster mit Dreifachverglasung (Denkmalschutz)
Zwischensparrendämmung
Gas-Zentralheizung
Originalkachelofen im Wohnzimmer mit sep. Sitzheizung
Tageslichtbad mit Dusche im EG
Tageslichtbad mit freistehender Wanne, Dusche und Fußbodenheizung im 1. OG
Pflegeleicht angelegter Garten
Stellplatz vor der Tür
Frei ab sofort
Äußerst flexibel nutzbares Objekt Wohnen & Arbeiten

Bereits umgesetzte Instandsetzungsmaßnahmen:
Komplettsanierung in 2024/2025

Käuferseitiger Renovierungsumfang:
nichts

Bitte beachten Sie, dass aufgrund des Ensembleschutzes kein Energieausweis nötig ist.


Besuchen Sie den virtuellen und realitätsgetreuen 360°-Rundgang unter "ergänzende Links" und navigieren Sie sich einfach durch die Räume. Sie werden begeistert sein!

Dieses Objekt ist ideal für Familien, welche gerne zentral und in einer besonderen Immobilie wohnen wollen. Lassen Sie sich dieses einzigartige Objekt nicht entgehen und kontaktieren Sie uns für eine Vor-Ort-Besichtigung!


Bausubstanz & Energieausweis

Baujahr
1940
Heizungsart
Sonstige

Wohnung finden so einfach wie möglich - das ist unsere Mission!

Kostenlose Basic Features

0 € monatlich


  • Individuelles Such-Profil anlegen
  • Suchaufträge speichern
  • One-Klick Kontaktaufnahme

alles anzeigen

Jetzt kostenlos anmelden

Premium Features

19,99 € monatlich


  • Alle kostenlosen Features
  • Smart-Alarm per Whatsapp
  • Deine Chancen checken
  • Wohngegend analysieren

alles anzeigen

Jetzt Premium freischalten

Gewerblicher Anbieter

VR-Bank Handels- und Gewerbebank eG

Wohnglück-ID:
Objekt-Nr.:
WGL-735363
0-2755#BWeRsM