Mehrfamilienhaus in Selbach (Selbach (Sieg))

Garten/­-mitbenutzung

Ein-/Zweifamilienhaus in ruhiger Ortsrandlage mit großzügigem Grundstück!

Anfragen bisher

Premium

Meine Chancen

Premium

Fairer Preis

Premium

160.000 €

Kaufpreis

145 m²

6 Zi.

Grundriss

57537 Selbach

Gewerblicher Anbieter

Immobiliengesellschaft der Westerwald Bank mbH
Schloßplatz 6
57610 Altenkirchen (Westerwald)

Details

Grundstücksfläche
746 m²
Zimmerzahl
6
Haustyp
Mehrfamilienhaus
Baujahr
1948

Kosten

Kaufpreis
160.000 €
Käuferprovision
3,57 %
Was kostet dein Umzug?

Objektbeschreibung

Ein gepflegtes Wohnhaus in ruhiger Ortsrandlage, welches über ein großzügiges Grundstück verfügt und vielfältig nutzbar ist. Egal ob als Einfamilienhaus für die große Familie, als Zweifamilienhaus oder aber in Kombination zur Eigennutzung/Teilvermietung - vieles lässt sich hier umsetzen!


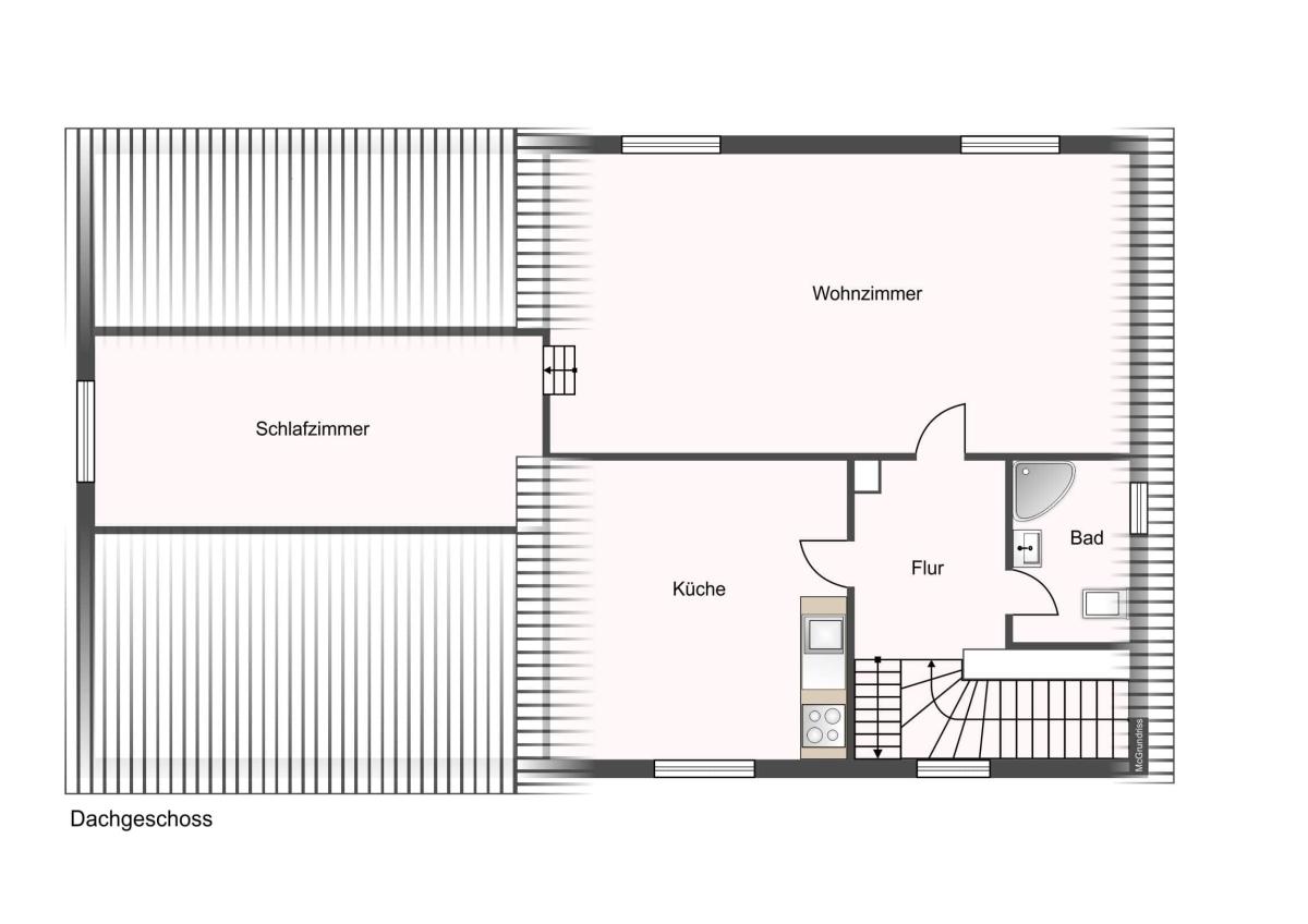
Im Ursprung wurde die Immobilie 1948 errichtet und 1954 um einen Anbau im Bereich Erdgeschoss/Untergeschoss erweitert. Heute beherbergt das Wohnhaus insgesamt rd. 145m² Wohnfläche, welche sich wie folgt aufteilt:


Über einen überdachten Windfang/Flur erhält man Zugang zur Wohnküche mit angrenzendem Wohn-/Essbereich. Weiterhin stehen ein Duschbad sowie zwei weitere Zimmer auf dieser Etage zur Verfügung.
Im Obergeschoss erwarten zwei weitere Zimmer, eine Küche sowie ein Duschbad.


Die Immobilie ist vollständig unterkellert; klassische Kellerräume sowie eine Garage für ein PKW runden den Bereich des Untergeschosses ab.
Hervorzuheben ist das hübsch angelegte Gartengrundstück, welches viel Freiraum für eigene Wünsche und Vorstellungen bietet.


Einige Gewerke der Immobilie befindet sich in einem nicht zeitgemäßen Zustand, sodass Renovierungs- und Modernisierungsmaßnahmen im Innen- sowie Außenbereich zu empfehlen sind.


Eine Übernahme der Immobilie kann, nach vorheriger Absprache, erfolgen.
Gerne stellen wir Ihnen das Anwesen im Zuge einer ausführlichen Besichtigung vor. Sprechen Sie uns an und vereinbaren Sie noch heute Ihren Termin!


Bausubstanz & Energieausweis

A+

A

B

C

D

E

F

G

H

318,96 kWh/(m²*a)

Baujahr
1948, Anbau 1954
Wesentlicher Energieträger
Öl
Heizungsart
Ölheizung
Befeuerung
Ölheizung
Energieausweis
liegt vor
Energieausweistyp
Bedarfsausweis
Ausstellungsdatum
27.07.2025
Gültig bis
26.07.2035
Energieeffizienzklasse
H
Endenergiebedarf
318,96 kWh/(m²*a)

Ausstattung

Massivbauweise/Fachwerkbauweise aus den Jahren 1948 sowie 1954, Innenwände tlw. in massiver Ausführung; tlw. als Fachwerkinnenwände, Außenwände verputzt und gestrichen, massive Geschossdecke zwischen KG und EG, Holzbalkendecke zwischen EG und DG, Ölzentralheizung aus 1989 mit zentraler Warmwasserbereitung, Satteldach mit Eindeckung in Pfannen, Kunststofffenster tlw. aus 1985; tlw. aus 1999 (isolierverglast), manuelle Kunststoffrollläden, einfache Holzinnentüren, Holzinnentreppe, Sanitärbereiche überwiegend aus 90iger Jahren


Einbauküche inkl. Elektroeinbaugeräte, Windfang, Garage


Lagebeschreibung

Selbach (Sieg) ist eine Ortsgemeinde im Landkreis Altenkirchen in Rheinland-Pfalz. Sie gehört der Verbandsgemeinde Wissen an und liegt etwa 4 km südöstlich der Stadt Wissen und 3 km westlich von Gebhardshain.
Zur Ortsgemeinde Selbach (Sieg) gehören die Ortsteile Selbach, Brunken und Kirchseifen sowie der Weiler Neuhöfchen. Teile von Kirchseifen und Neuhöfchen liegen auf dem Stadtgebiet von Wissen. Der Hauptort Selbach liegt in einem ruhigen Tal, in dem fünf Bäche fließen, die anderen Ortsteile befinden sich auf teilweise plateauartigen Lagen.
In Selbach frequentieren relativ eng getaktete öffentliche Buslinien; eine Landesstraße (L289) und zwei Kreisstraßen (K123 und K130) verbinden den Ort mit dem Umland. Der RegioBahnhof in Wissen bietet schnelle Zugverbindungen nach Siegen, Köln und Aachen.
Schulen, Ärzte und zahlreiche Einkaufsmöglichkeiten bietet das 4 km entfernte Mittelzentrum Wissen.


Wohnung finden so einfach wie möglich - das ist unsere Mission!

Kostenlose Basic Features

0 € monatlich


  • Individuelles Such-Profil anlegen
  • Suchaufträge speichern
  • One-Klick Kontaktaufnahme

alles anzeigen

Jetzt kostenlos anmelden

Premium Features

19,99 € monatlich


  • Alle kostenlosen Features
  • Smart-Alarm per Whatsapp
  • Deine Chancen checken
  • Wohngegend analysieren

alles anzeigen

Jetzt Premium freischalten

Gewerblicher Anbieter

Immobiliengesellschaft der Westerwald Bank mbH
Schloßplatz 6
57610 Altenkirchen (Westerwald)

Wohnglück-ID:
Objekt-Nr.:
WGL-735115
2 969 3