Erdgeschosswohnung in Hunderdorf

Balkon/­Terrasse
barrierefrei
derzeit vermietet
Einbauküche
Garage/­Stellplatz

Kapitalanlage - Moderne 2-Zimmer-Erdgeschosswohnung mit Terrasse in Hunderdorf (WHG 02)

Anfragen bisher

Premium

Meine Chancen

Premium

Fairer Preis

Premium

225.000 €

Kaufpreis

57,5 m²

2 Zi.

Erdg.

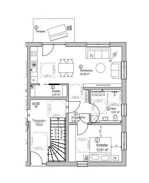
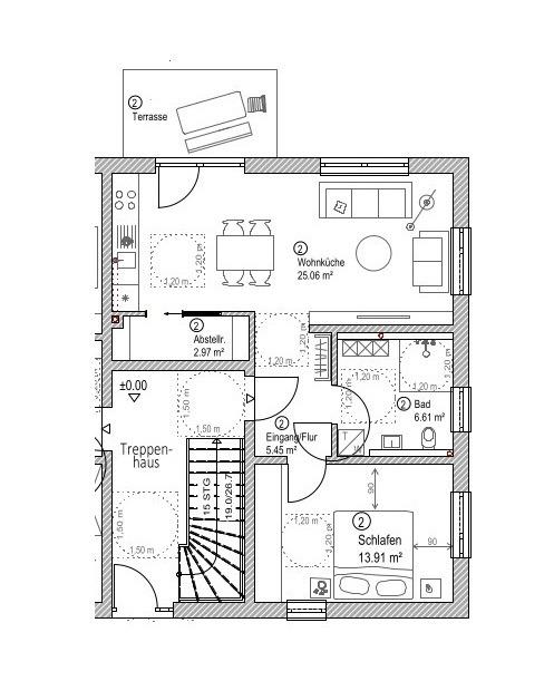
Grundriss

94336 Hunderdorf

Gewerblicher Anbieter


Kolbstr. 2
94315 Straubing

Details

Zimmerzahl
2
Wohnungstyp
Erdgeschosswohnung
Bezugsfrei ab
sofort
Anzahl Garage/ Stellplatz
1
Objektzustand
Erstbezug
Baujahr
2024

Kosten

Kaufpreis
225.000 €
Käuferprovision
3,57%
3,57%
Was kostet dein Umzug?

Stellplätze

Stellplatztyp
Freiplatz
Anzahl
2
Kaufpreis
26.000 €

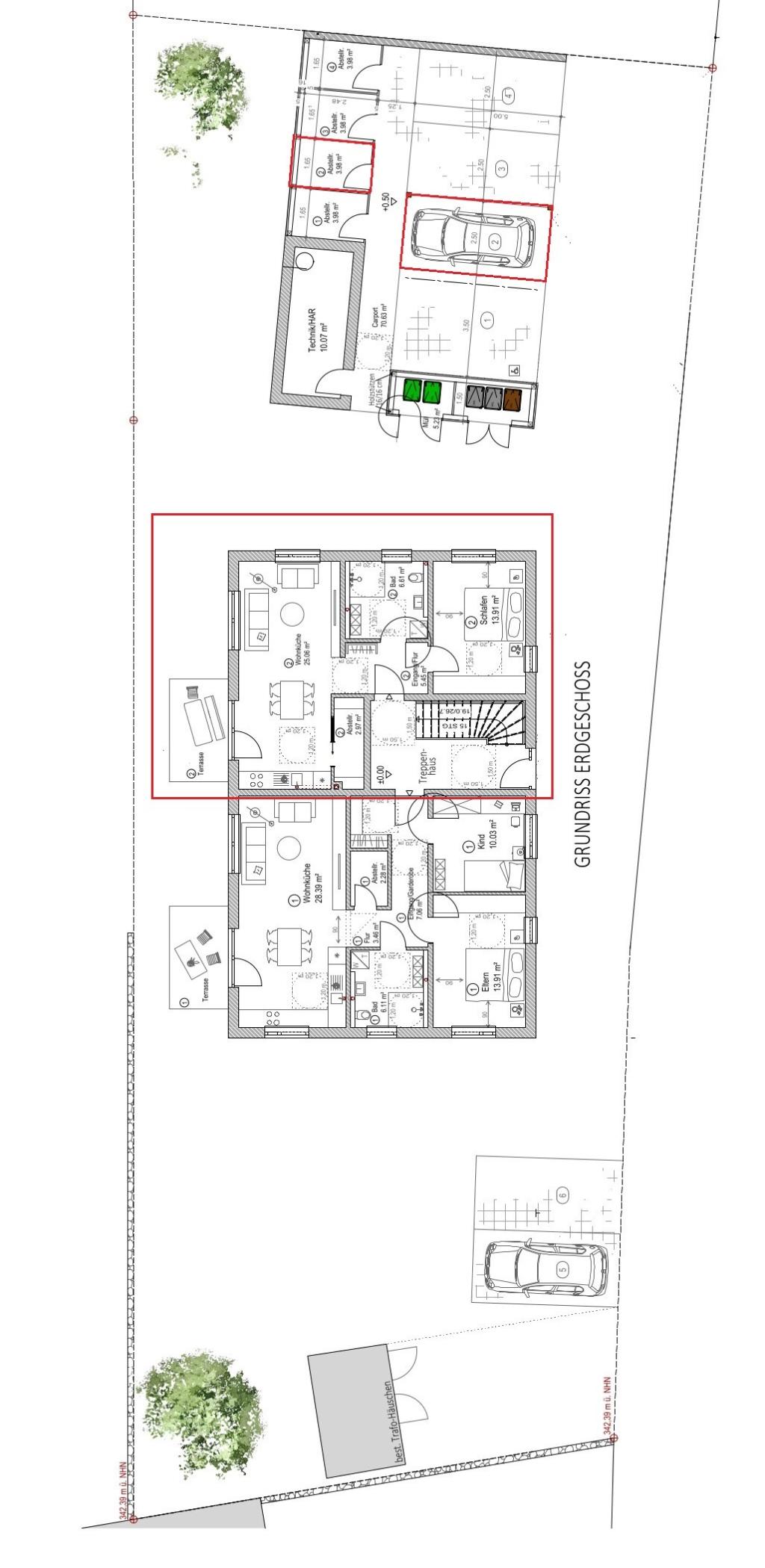
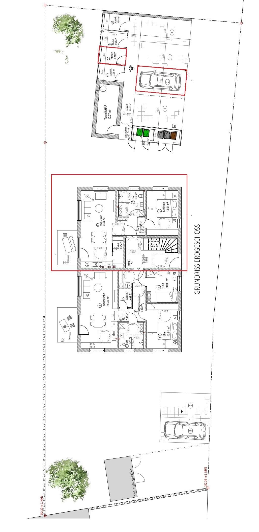
Objektbeschreibung

Wohnung 02 - EG rechts


Kurzübersicht:
Das Objekt wurde 2023-2024 in Massivbauweise errichtet. Insgesamt befinden sich in dem Mehrfamilienhaus vier Wohnungen, die sich über zwei Etagen erstrecken.


Die hier zum Verkauf stehende Wohneinheit Nr. 02 befindet sich im Erdgeschoss rechts.


Raumaufteilung:



  • Eingang/ Flur

  • Bad

  • Schlafen

  • Wohnküche

  • Abstellraum

  • Terrasse


Bausubstanz & Energieausweis

A+

20 kWh/(m²*a)

A

B

C

D

E

F

G

H

Baujahr
2024
Objektzustand
Erstbezug
Wesentlicher Energieträger
Wärmepumpe
Heizungsart
Fußbodenheizung
Befeuerung
Wärmepumpe
Energieausweistyp
Bedarfsausweis
Gültig bis
13.01.2032
Energieeffizienzklasse
A+
Endenergiebedarf
20 kWh/(m²*a)

Ausstattung

Innenausstattung:



  • Alu-Kunststofffenster (3-fach-Verglasung)

  • geölter Parkettboden

  • moderne Fliesenboden

  • barrierefreie Dusche

  • dezentrale Lüftungsanlage

  • elektrische Rollos

  • Enthärtungsanlage


Außenausstattung:



  • Terrasse (teilweise überdacht) Süd-West Ausrichtung

  • Carportstellplatz Nr. 2

  • Außenstellplatz

  • Abstellraum

  • Garten


Heizung:



  • Luft-Wärmepumpe

  • Fußbodenheizung


Lagebeschreibung

Das Gebäude liegt in einer ruhigen Wohngegend.
Alle wichtigen Geschäfte für den alltäglichen Bedarf befinden sich in unmittelbarer Nähe (z.B. Bank, Apotheke, Bäcker, etc.).
In fußläufiger Umgebung sind zahlreiche Einrichtungen und Freizeitaktivitäten vorhanden (z.B. Zahnarzt, Allgemeinärzte, Kindergarten, Schulen, Hallenbad und Sportgelände mit Tennis und Fußballplatz).
Die nächste größere Stadt ist Straubing und mit dem Auto innerhalb von ca. 20 Minuten (15 km) zu erreichen.


Verkehrsanbindung:



  • Autobahnauffahrt A3 Hunderdorf (ca. 5 Minuten entfernt)

  • B20 Anbindung bei Straubing (ca. 14km entfernt)

  • St. Englmar - Bayerischer Wald (ca. 15 km entfernt)

  • Stadt Bogen mit Klinikum (ca. 5km entfernt)


Hunderdorf ist mit drei verschiedenen Buslinien zu erreichen (Linie 11, 13 und 14 der ÖPNV LK Straubing Bogen).


Sonstige Angaben



  • aktuelles Hausgeld 2025 monatlich: 207,83 € (umlegbar: 155,22 € / nicht umlegbar: 52,93 €)




  • Rücklagenvorauszahlung 2025 monatlich: 18,17 €




  • Gesamt: 226,00 €




  • Die Wohnung ist ab 01.02.2025 auf unbestimmte Zeit vermietet. Mietaufstellung entnehmen Sie den Anlagen




Hinweis: Bei dem Gebäude handelt es sich um ein KfW-Effizienzhaus 55


Haftungsausschluss:
Alle Angaben stammen vom Verkäufer. Die Firma Gerl Immobilien e. K. übernimmt daher keine Haftung für die Richtigkeit der Angaben. Insbesondere die Angaben zur Wohnfläche, zur Nutzfläche und zur Aufteilung der Wohn- /Nutzfläche sind von uns nicht durch ein eigenes Aufmaß oder eine eigene Wohnflächenberechnung kontrolliert worden. Die Angaben zum Baujahr sind nicht durch eine Einsicht in die Bauakte überprüft worden.


Wohnung finden so einfach wie möglich - das ist unsere Mission!

Kostenlose Basic Features

0 € monatlich


  • Individuelles Such-Profil anlegen
  • Suchaufträge speichern
  • One-Klick Kontaktaufnahme

alles anzeigen

Jetzt kostenlos anmelden

Premium Features

19,99 € monatlich


  • Alle kostenlosen Features
  • Smart-Alarm per Whatsapp
  • Deine Chancen checken
  • Wohngegend analysieren

alles anzeigen

Jetzt Premium freischalten

Gewerblicher Anbieter


Kolbstr. 2
94315 Straubing

Wohnglück-ID:
Objekt-Nr.:
WGL-734361
135507984#5SNFs