Wohnung in Legden

Aufzug
Balkon/­Terrasse
Gäste WC
Keller
Garage/­Stellplatz

Moderne Neubau-Eigentumswohnung in Legden

Anfragen bisher

Premium

Meine Chancen

Premium

Fairer Preis

Premium

310.068 €

Kaufpreis

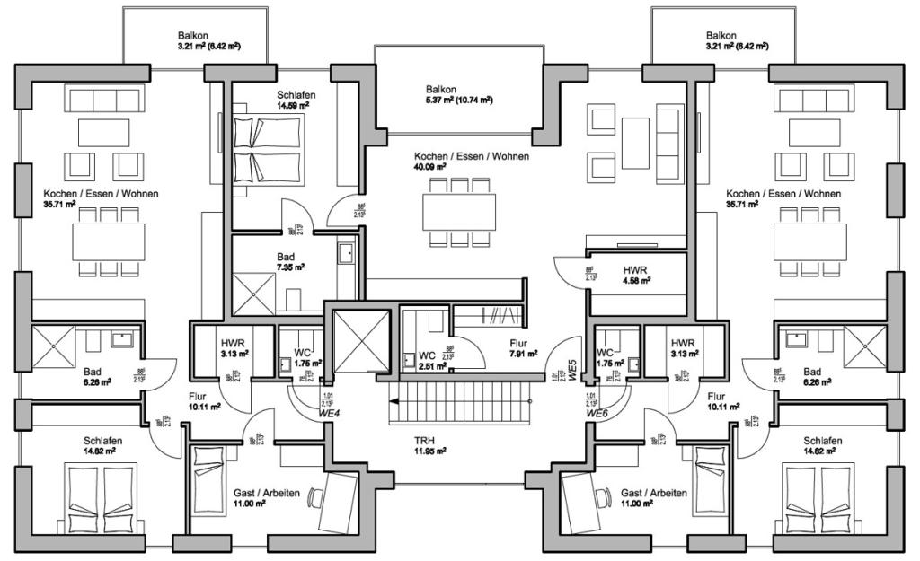
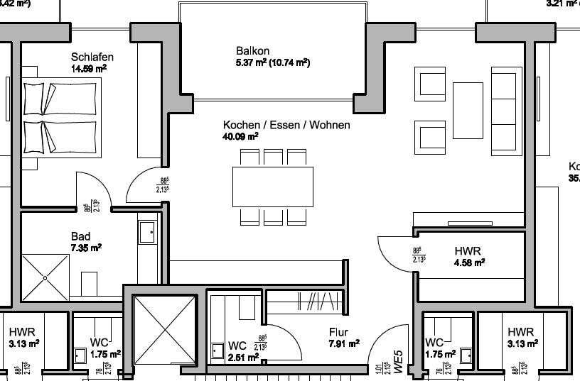
82,38 m²

2 Zi.

2. OG

Grundriss

48739 Legden

Gewerblicher Anbieter

Volksbank Gronau-Ahaus Immobilien GmbH
Neustr. 42-46
48599 Gronau

Details

Zimmerzahl
2
Immobilienart
Wohnung
Etage, Geschoss
2
Nutzfläche
2,51 m²
Anzahl Badezimmer
1
Anzahl Garage/ Stellplatz
1
Objektzustand
Projektiert
Baujahr
2026

Kosten

Kaufpreis
310.068 €
Was kostet dein Umzug?

Stellplätze

Stellplatztyp
Freiplatz
Anzahl
1

Objektbeschreibung


  • Voraussichtliche Fertigstellung im Jahr 2026/2027

  • Etwa 82 m² Wohnfläche, zusätzlich Nutzflächen

  • Zwei geräumige Zimmer sowie ein Badezimmer

  • Teilweise unterkellerter Bereich, zusätzlicher Stauraum im Dachgeschoss

  • Hochwertige Ausstattung mit Fliesen und Parkett

  • Zusätzlicher Komfort durch ein separates Gäste-WC

  • Großzügiger Balkon zur Erholung im Freien

  • Hochwertige Wohnqualität in einer ruhigen Wohngegend


Ein Pkw-Stellplatz ist der Wohnung zugewiesen und im Kaufpreis enthalten.


Bausubstanz & Energieausweis

Objektzustand
Projektiert
Heizungsart
Fußbodenheizung
Befeuerung
Wärmepumpe

Lagebeschreibung

Legden vereint eine idyllische ländliche Atmosphäre mit einem aktiven Dorfleben.


Die angebotene Eigentumswohnung befindet sich in einer malerischen Lage in unmittelbarer Nähe des Ortskerns und bietet somit das Beste aus beiden Welten: die Vorzüge eines entspannten Landlebens sowie die Annehmlichkeiten der unmittelbaren Umgebung.


Die Infrastruktur in Legden ist gut ausgebaut: Eine Vielzahl von Einkaufsmöglichkeiten ist innerhalb kurzer Zeit erreichbar, und die Anbindung an den öffentlichen Nahverkehr ermöglicht es, die umliegenden Städte mühelos zu erreichen.


Sonstige Angaben

Zusammenstellung aller Wohnungen


Wohnung 1 - 86,00 qm - 323.100,00 Euro inklusive Pkw-Stellplatz


Wohnung 2 - 82,38 qm - 310.068,00 Euro inklusive Pkw-Stellplatz


Wohnung 3 - 86,00 qm - 323.100,00 Euro inklusive Pkw-Stellplatz


Wohnung 4 - 86,00 qm - 323.100,00 Euro inklusive Pkw-Stellplatz


Wohnung 5 - 82,38 qm - 310.068,00 Euro inklusive Pkw-Stellplatz


Wohnung 6 - 86,00 qm - 323.100,00 Euro inklusive Pkw-Stellplatz


Wohnung 7 - 67,56 qm - 256.716,00 Euro inklusive Pkw-Stellplatz


Wohnung 8 - 67,56 qm - 256.716,00 Euro inklusive Pkw-Stellplatz


Wohnung finden so einfach wie möglich - das ist unsere Mission!

Kostenlose Basic Features

0 € monatlich


  • Individuelles Such-Profil anlegen
  • Suchaufträge speichern
  • One-Klick Kontaktaufnahme

alles anzeigen

Jetzt kostenlos anmelden

Premium Features

19,99 € monatlich


  • Alle kostenlosen Features
  • Smart-Alarm per Whatsapp
  • Deine Chancen checken
  • Wohngegend analysieren

alles anzeigen

Jetzt Premium freischalten

Gewerblicher Anbieter

Volksbank Gronau-Ahaus Immobilien GmbH
Neustr. 42-46
48599 Gronau

Wohnglück-ID:
Objekt-Nr.:
WGL-728755
7952_5