Wohnung in Legden

Aufzug
Balkon/­Terrasse
Keller
Garage/­Stellplatz

68 m² Neubau-Eigentumswohnung in Legden

Anfragen bisher

Premium

Meine Chancen

Premium

Fairer Preis

Premium

256.716 €

Kaufpreis

67,56 m²

3 Zi.

3. OG

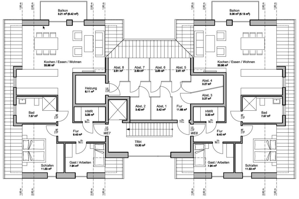
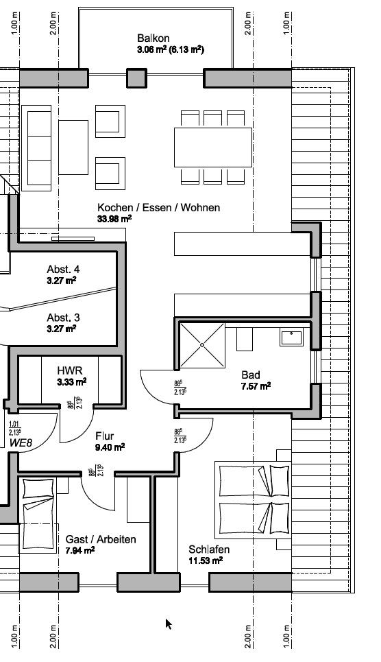
Grundriss

48739 Legden

Gewerblicher Anbieter

Volksbank Gronau-Ahaus Immobilien GmbH
Neustr. 42-46
48599 Gronau

Details

Zimmerzahl
3
Immobilienart
Wohnung
Etage, Geschoss
3
Nutzfläche
2,58 m²
Anzahl Schlafzimmer
2
Anzahl Badezimmer
1
Anzahl Garage/ Stellplatz
1
Objektzustand
Projektiert
Baujahr
2026

Kosten

Kaufpreis
256.716 €
Was kostet dein Umzug?

Stellplätze

Stellplatztyp
Freiplatz
Anzahl
1

Objektbeschreibung

Diese exquisite Immobilie besticht durch eine durchdachte Ausstattung, die Komfort und Stil harmonisch vereint. Das Badezimmer ist mit einem Fenster versehen und bietet eine moderne Dusche. Die Böden in der Wohnung sind liebevoll mit hochwertigem Parkett und langlebigen Fliesen gestaltet.


Ein besonderes Highlight ist der geräumige Balkon, der Ihnen zusätzlichen Raum im Freien bietet und zu entspannten Stunden einlädt. Ein Pkw-Stellplatz ist der Wohnung zugewiesen und im Kaufpreis enthalten.


Die Immobilie ist mit einer fortschrittlichen Fußbodenheizung ausgestattet, die von einer effizienten Luft/Wasser-Wärmepumpe betrieben wird. Diese sorgt für behagliche Wärme und trägt gleichzeitig zur Energieeinsparung bei.


Bausubstanz & Energieausweis

Objektzustand
Projektiert
Heizungsart
Fußbodenheizung
Befeuerung
Wärmepumpe

Lagebeschreibung

Herzlich willkommen in Legden, einer charmanten Gemeinde im Münsterland!


Legden bietet eine ideale Kombination aus ländlicher Idylle und lebendigem Dorfleben. Die angebotene Eigentumswohnung befindet sich in idyllischer Lage nahe des Ortskerns und ermöglicht Ihnen sowohl die Vorzüge des ländlichen Lebens als auch die Annehmlichkeiten der Umgebung zu genießen.


Die Infrastruktur in Legden ist gut entwickelt: Eine Vielzahl von Einkaufsmöglichkeiten ist in kürzester Zeit erreichbar, und die Anbindung an den öffentlichen Nahverkehr ermöglicht es, die benachbarten Städte problemlos zu erreichen.


Sonstige Angaben

Zusammenstellung aller Wohnungen


Wohnung 1 - 86,00 qm - 323.100,00 Euro inklusive Pkw-Stellplatz


Wohnung 2 - 82,38 qm - 310.068,00 Euro inklusive Pkw-Stellplatz


Wohnung 3 - 86,00 qm - 323.100,00 Euro inklusive Pkw-Stellplatz


Wohnung 4 - 86,00 qm - 323.100,00 Euro inklusive Pkw-Stellplatz


Wohnung 5 - 82,38 qm - 310.068,00 Euro inklusive Pkw-Stellplatz


Wohnung 6 - 86,00 qm - 323.100,00 Euro inklusive Pkw-Stellplatz


Wohnung 7 - 67,56 qm - 256.716,00 Euro inklusive Pkw-Stellplatz


Wohnung 8 - 67,56 qm - 256.716,00 Euro inklusive Pkw-Stellplatz


Wohnung finden so einfach wie möglich - das ist unsere Mission!

Kostenlose Basic Features

0 € monatlich


  • Individuelles Such-Profil anlegen
  • Suchaufträge speichern
  • One-Klick Kontaktaufnahme

alles anzeigen

Jetzt kostenlos anmelden

Premium Features

19,99 € monatlich


  • Alle kostenlosen Features
  • Smart-Alarm per Whatsapp
  • Deine Chancen checken
  • Wohngegend analysieren

alles anzeigen

Jetzt Premium freischalten

Gewerblicher Anbieter

Volksbank Gronau-Ahaus Immobilien GmbH
Neustr. 42-46
48599 Gronau

Wohnglück-ID:
Objekt-Nr.:
WGL-728754
7952_8