Maisonette in Eichstätt

Aufzug
Balkon/­Terrasse
Garten/­-mitbenutzung
Haustiere erlaubt
Keller
Garage/­Stellplatz

Exklusive Neubauwohnungen "Sonnwinkel" in Landershofen

Anfragen bisher

Premium

Meine Chancen

Premium

Fairer Preis

Premium

564.200 â‚¬

Kaufpreis

110,38 m²

5 Zi.

85072 Eichstätt

Gewerblicher Anbieter

Volksbank Raiffeisenbank Bayern Mitte eG
Domplatz 5
85072 Eichstätt

Details

Zimmerzahl
5
Wohnungstyp
Maisonette
Etagenzahl
4
Anzahl Schlafzimmer
1
Anzahl Badezimmer
1
Anzahl Garage/ Stellplatz
2
Objektzustand
Erstbezug
Baujahr
2027

Kosten

Kaufpreis
564.200 €
Käuferprovision
keine
Was kostet dein Umzug?

Stellplätze

Stellplatztyp
Freiplatz
Anzahl
1
Kaufpreis
12.500 €
Stellplatztyp
Tiefgarage
Anzahl
1
Kaufpreis
22.500 €

Objektbeschreibung

In begehrter Lage von Eichstätt–Landershofen entsteht eine moderne Wohnanlage, die durch zeitgemäße Architektur, hochwertige Ausstattung und durchdachte Grundrisse überzeugt - Fertigstellung voraussichtlich bis Ende 2027. Die Wohnungen werden im Erstbezug angeboten und eignen sich gleichermaßen für Eigennutzer wie Kapitalanleger.


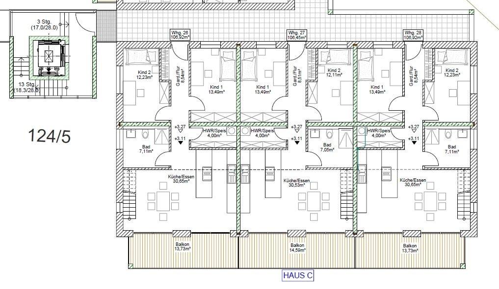
Das Projekt umfasst ein breites Spektrum an Wohneinheiten – von einem kompakten Apartment bis hin zu großzügigen 5-Zimmer-Maisonette-Wohnungen mit Wohnflächen von ca. 30 m² bis ca. 115 m². Die Kaufpreise bewegen sich je nach Größe und Lage innerhalb des Anwesens zwischen ca. 220.000,- € und ca. 565.000,- €.


Alle Gebäude sind mit Personenaufzügen ausgestattet und bieten einen komfortablen Zugang zur hauseigenen Tiefgarage, die direkt von den Wohneinheiten aus begehbar ist. Zusätzlich stehen oberirdische Stellplätze zur Verfügung.


Die Beheizung der Wohnanlage erfolgt über ein zentrales System aus Wärmepumpe und Gas, das effizient und umweltschonend für wohlige Wärme sorgt. In allen Wohnungen wird eine Fußbodenheizung installiert, die für ein angenehmes Wohnklima sorgt.


Die Kombination aus moderner Haustechnik, vielseitigen Wohnungsgrößen und ruhiger, naturnaher Lage macht dieses Neubauprojekt zu einer attraktiven Investition in die Zukunft.


Bei Interesse freuen wir uns über Ihre Kontaktaufnahme – gerne stehen wir Ihnen für weitere Informationen oder ein persönliches Beratungsgespräch zur Verfügung.


Bausubstanz & Energieausweis

A+

16,5 kWh/(m²*a)

A

B

C

D

E

F

G

H

Baujahr
2027
Objektzustand
Erstbezug
Wesentlicher Energieträger
Gas, Elektroenergie
Heizungsart
Zentralheizung
Befeuerung
Gasheizung
Energieausweis
liegt vor
Energieausweistyp
Bedarfsausweis
Ausstellungsdatum
10.06.2025
GĂĽltig bis
09.06.2035
Energieeffizienzklasse
A+
Endenergiebedarf
16,5 kWh/(m²*a)

Lagebeschreibung

Die moderne Wohnanlage entsteht in idyllischer Lage im Eichstätter Ortsteil Landershofen, am sonnigen Haselberg. Eingebettet in die sanfte Hügellandschaft des Altmühltals bietet der Standort eine gelungene Verbindung aus naturnahem Wohnen und urbaner Erreichbarkeit.


Die erhöhte Lage am Hang sorgt für eine ruhige Wohnatmosphäre und eröffnet teilweise weite Ausblicke ins Tal und auf die umliegende Natur. Zahlreiche Spazier- und Radwege beginnen direkt vor der Haustür – ideal für alle, die Erholung und Freizeitmöglichkeiten im Grünen schätzen.


Trotz der ruhigen Umgebung ist das Zentrum von Eichstätt in wenigen Minuten erreichbar. Dort befinden sich vielfältige Einkaufsmöglichkeiten, gastronomische Angebote, Schulen, Kindergärten sowie medizinische Versorgung. Auch die Anbindung an den öffentlichen Nahverkehr ist gut ausgebaut, was den Standort besonders attraktiv für Familien, Berufstätige und Ruhesuchende macht.


Sonstige Angaben

Bei Interesse freuen wir uns über Ihre Kontaktaufnahme – gerne stehen wir Ihnen für weitere Informationen oder ein persönliches Beratungsgespräch zur Verfügung.


Wohnung finden so einfach wie möglich - das ist unsere Mission!

Kostenlose Basic Features

0 € monatlich


  • Individuelles Such-Profil anlegen
  • Suchaufträge speichern
  • One-Klick Kontaktaufnahme

alles anzeigen

Jetzt kostenlos anmelden

Premium Features

19,99 € monatlich


  • Alle kostenlosen Features
  • Smart-Alarm per Whatsapp
  • Deine Chancen checken
  • Wohngegend analysieren

alles anzeigen

Jetzt Premium freischalten

Gewerblicher Anbieter

Volksbank Raiffeisenbank Bayern Mitte eG
Domplatz 5
85072 Eichstätt

WohnglĂĽck-ID:
Objekt-Nr.:
WGL-727772
25/SG-0159-28