Loft in Berlin (Neukölln)

Balkon/­Terrasse
Einbauküche

Exklusives Loft im historischen Fabrikgebäude am begehrten Maybachufer in Berlin Neukölln-Kreuzberg

Anfragen bisher

Premium

Meine Chancen

Premium

Fairer Preis

Premium

3.900.000 €

Kaufpreis

326 m²

5 Zi.

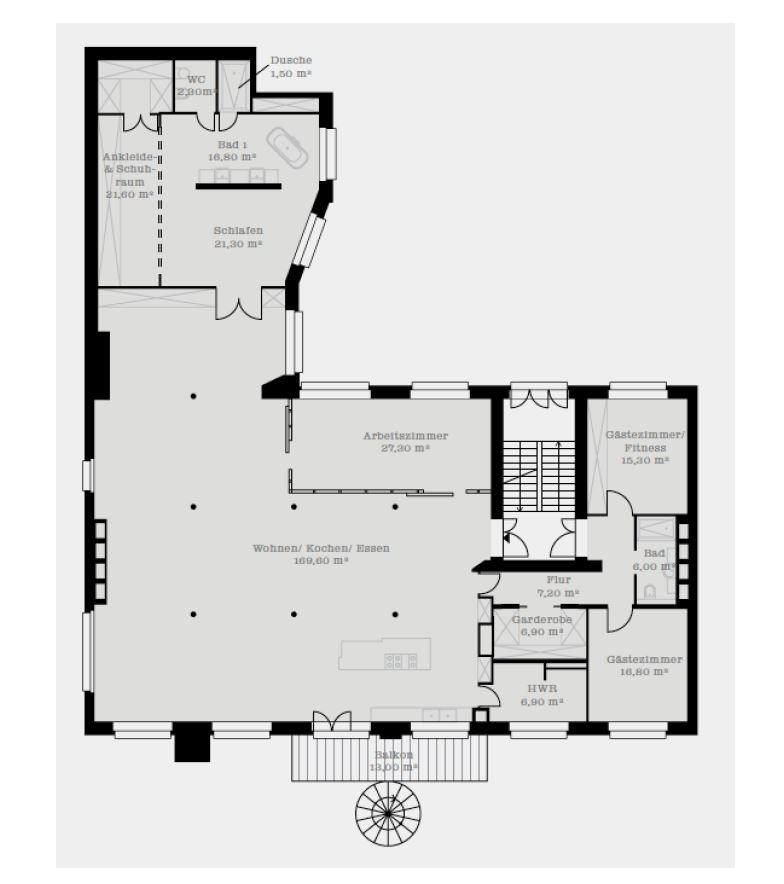
Grundriss

12047 Berlin

Gewerblicher Anbieter

Victor Investment GmbH
Kurfürstendamm 29
10719 Berlin

Details

Zimmerzahl
5
Wohnungstyp
Loft
Etagenzahl
3
Bezugsfrei ab
ab sofort
Anzahl Schlafzimmer
3
Anzahl Badezimmer
2
Objektzustand
Neuwertig
Baujahr
1910

Kosten

Kaufpreis
3.900.000 €
Hausgeld
1.100 €
Käuferprovision
Käuferprovision 3.57 % inkl. MwSt. vom Kaufpreis
Die oben genannte Provision ist verdient und fällig bei Kaufvertragsabschluss. Der Makler hat einen provisionspflichtigen Vertrag mit dem Verkäufer in gleicher Höhe abgeschlossen.
Was kostet dein Umzug?

Objektbeschreibung

Entdecken Sie ein außergewöhnliches Loft in der ehemaligen Schokoladenfabrik in Berlin Neukölln-kreuzberg, das modernes Luxusleben mit historischem Charme vereint. Dieses neuwertige Loft, ursprünglich 1910 erbaut, wurde unter Berücksichtigung der historischen Elemente aufwendig renoviert und stilvoll ausgestattet. Auf einer großzügigen Wohnfläche von ca. 326 m² erstreckt sich das Loft mit fünf geschmackvoll gestalteten Zimmern, darunter drei Schlafzimmer und zwei Bäder.
Der zentrale Wohn- und Essbereich beeindruckt durch seine Großzügigkeit und ist direkt mit einem weiträumigen, nicht einsehbaren Balkon verbunden, ideal für entspannte Stunden im Freien. Besondere Highlights dieses Lofts sind die modernen Metallinstallationen im Hauptschlafzimmer, die eine Mischung aus minimalistischem Stil und Zen-Atmosphäre schaffen. Ein elegantes Trennwandregal separiert das Schlafzimmer vom Wohnbereich, während moderne Designelemente das luxuriöse Bad mit freistehender Wanne umrahmen.Gästezimmer und ein weiteres Bad sind separat über einen zweiten Eingang erreichbar, was zusätzlichen Komfort bietet. Die charakteristischen Sprossenfenster lassen reichlich Licht in alle Räume und betonen den industriellen Charme, ebenso wie die preußischen Gewölbedecken und gusseisernen Säulen. Bodenbeläge aus hochwertigen, hellen Eichenholzdielen und eine moderne Fußbodenheizung runden das Ambiente ab.
Der offene Kamin im Wohnbereich, ein exklusives Modell von Focus, sowie die hochwertig ausgestattete Küche mit Edelstahlfronten und modernster Technik, sprechen für den hohen Anspruch an Qualität und Exklusivität. Technisch bleiben keine Wünsche offen: Klimaanlagen in Studio und Hauptschlafzimmer sorgen für ein perfektes Raumklima, und ein integriertes Unterhaltungssystem ist in allen Zimmern installiert.
Mit seiner optimalen Raumaufteilung und idealer Lage eignet sich dieses exklusive Loft perfekt für Familien mit Kindern, die ein ruhiges Rückzugsort im Herzen der Stadt suchen.


Bausubstanz & Energieausweis

A+

A

B

C

D

135,6 kWh/(m²*a)

E

F

G

H

Baujahr
1910
Objektzustand
Neuwertig
Wesentlicher Energieträger
FERN
Heizungsart
Fußbodenheizung
Befeuerung
Fernwärme
Energieausweis
liegt vor
Energieausweistyp
Bedarfsausweis
Gültig bis
29.08.2027
Energieeffizienzklasse
D
Endenergiebedarf
135,6 kWh/(m²*a)

Ausstattung

Erleben Sie ultimativen luxuriösen Wohnkomfort, der einen einzigartigen Charakter in Ihr neues Zuhause bringt:




  • Loft mit 326 m² Wohnfläche auf einer Ebenen mit 2 Zugängen in ehemaliger Schokoladenfabrik




  • Eine offene High-End Designerküche mit hochwertigsten Geräten, die zum kulinarischen Zentrum Ihres Wohnraums wird




  • Ein eleganter, offener Kamin von der Firma Focus, Modell Antefocus// es gibt nur wenige nummerierte Modelle




  • Ein großzügiger Balkon, ideal für entspannte Abende




  • Rund 200 Jahre alte Eichendielen aus französischen Schlössern mit Fußbodenheizung/ schwarz lackiert




  • Moderne Fernwärmetechnologie, die nicht nur umweltfreundlich, sondern auch effizient ist und gleichzeitig für Komfort sorgt.




  • Feinst justierte Klimaanlage in allen Räumen




  • Die ganze Wohnung ist Alarmgesichert




Lagebeschreibung

Der Stadtbezirk Neukölln hat sich in den letzten Jahren stark verändert und ist zu einem der beliebtesten Szeneviertel der Hauptstadt geworden. Die kulturelle Vielfalt und das Nebeneinander von jungen, kreativen Menschen aus aller Welt prägen das Image von Berlin-Neukölln. Kleine Boutiquen und Feinkostläden, Möbel- und Designgeschäfte säumen die schönen Straßen zwischen Kreuzberg und Neukölln. Entlang des Landwehrkanals am Maybachufer finden regelmäßig Wochen- und Flohmärkte statt, auf denen die Besucher in das bunte Treiben eintauchen und Gespräche und Geschäfte in allen erdenklichen Sprachen geführt werden. Die ehemalige Schokoladenfabrik liegt etwas versteckt in einem malerischen Innenhof südlich des Landwehrkanals, in einer wenig befahrenen Straße in Neukölln. Restaurants, Cafés und Geschäfte des täglichen Bedarfs sind bequem zu Fuß zu erreichen, die Vorteile einer zentralen und gleichzeitig ruhigen Wohnlage mit schneller Anbindung an das Zentrum der Hauptstadt kommen hier besonders zum Tragen.
Der U-Bahnhof Schönleinstraße bietet eine schnelle Anbindung an den öffentlichen Nahverkehr, die Warschauer Straße und die O2-Arena befinden sich in unmittelbarer Nähe. Die beiden Flughäfen Berlin Tegel und Schönefeld sind in nur 20 Minuten mit dem Auto zu erreichen.


Wohnung finden so einfach wie möglich - das ist unsere Mission!

Kostenlose Basic Features

0 € monatlich


  • Individuelles Such-Profil anlegen
  • Suchaufträge speichern
  • One-Klick Kontaktaufnahme

alles anzeigen

Jetzt kostenlos anmelden

Premium Features

19,99 € monatlich


  • Alle kostenlosen Features
  • Smart-Alarm per Whatsapp
  • Deine Chancen checken
  • Wohngegend analysieren

alles anzeigen

Jetzt Premium freischalten

Gewerblicher Anbieter

Victor Investment GmbH
Kurfürstendamm 29
10719 Berlin

Wohnglück-ID:
Objekt-Nr.:
WGL-719048
1369