Einfamilienhaus freistehend in Karben (Klein-Karben)

Balkon/­Terrasse
Keller
Garage/­Stellplatz

Großzügiges Einfamilienhaus in Toplage – 1.219 m² Grundstück & viel Platz für Ihre Wohnträume

Anfragen bisher

Premium

Meine Chancen

Premium

Fairer Preis

Premium

1.050.000 €

Kaufpreis

218 m²

7 Zi.

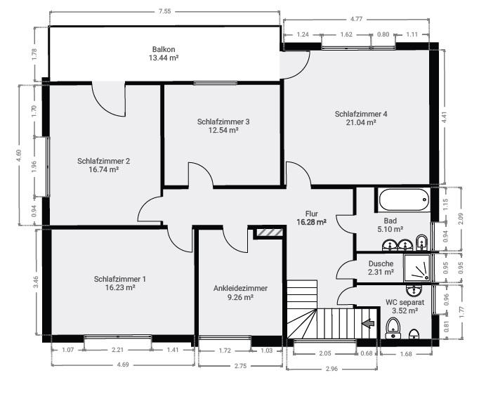
Grundriss

61184 Karben

Gewerblicher Anbieter

Immobilien Gesellschaft mbH der Frankfurter Volksbank Rhein/Main
Seligenstädter Straße 52
63179 Obertshausen

Details

Grundstücksfläche
1.219 m²
Zimmerzahl
7
Haustyp
Einfamilienhaus freistehend
Etagenzahl
2
Nutzfläche
122 m²
Anzahl Schlafzimmer
5
Anzahl Badezimmer
3
Anzahl Garage/ Stellplatz
1
Baujahr
1974

Kosten

Kaufpreis
1.050.000 €
Käuferprovision
3,57% inkl. MwSt.
Wir haben einen provisionspflichtigen Maklervertrag mit dem Verkäufer in gleicher Höhe abgeschlossen.
Was kostet dein Umzug?

Stellplätze

Stellplatztyp
Garage
Anzahl
2

Objektbeschreibung

Willkommen in Ihrem neuen Zuhause! In einer der begehrtesten und ruhigsten Wohnlagen von Karben erwartet Sie dieses beeindruckende, freistehende Einfamilienhaus. Das 1974 erbaute Anwesen steht auf einem großzügigen, 1.219 m² großen Grundstück und bietet Ihnen mit ca. 218 m² Wohnfläche und rund 128 m² zusätzlicher Nutzfläche außergewöhnlich viel Raum für Ihre individuellen Wohnideen.


Das Haus besticht durch eine durchdachte Grundrissgestaltung, die sowohl großzügige Gemeinschaftsbereiche als auch private Rückzugsorte bietet. Im Erdgeschoss empfängt Sie eine helle Diele, von der aus Sie in das große Wohnzimmer mit Zugang zur Terrasse und in den herrlich angelegten Garten gelangen – ein perfekter Ort für gesellige Stunden im Freien. Eine geräumige Küche, ein Esszimmer sowie ein Arbeitszimmer und ein Gäste-WC runden diese Ebene ab.


Das Obergeschoss verfügt über mehrere großzügige Schlafzimmer, ein Ankleidezimmer sowie zwei Bäder und ein separates WC. Hier findet jedes Familienmitglied seinen ganz persönlichen Wohlfühlbereich.


Das voll unterkellerte Haus bietet Ihnen vielfältige Nutzungsmöglichkeiten – ob als Hobbyraum, Fitnessbereich, Werkstatt oder für zusätzlichen Stauraum. Zwei Garagenstellplätze gehören ebenfalls zum Angebot und sorgen für komfortables Parken direkt am Haus.


Dieses Objekt überzeugt nicht nur durch seine Größe und Lage, sondern auch durch sein Potenzial, zu einem modernen Familienparadies umgestaltet zu werden. Ob als stilvolles Familiendomizil oder repräsentatives Zuhause – hier können Sie Ihre Wohnträume verwirklichen.


Eine Immobilie wie diese ist in Karben eine echte Seltenheit. Nutzen Sie die Gelegenheit und vereinbaren Sie noch heute einen Besichtigungstermin!


Bausubstanz & Energieausweis

A+

A

B

C

D

E

F

196,5 kWh/(m²*a)

G

H

Baujahr
1974
Wesentlicher Energieträger
OEL
Heizungsart
Ölheizung
Befeuerung
Ölheizung
Energieausweis
liegt vor
Energieausweistyp
Bedarfsausweis
Gültig bis
07.08.2035
Energieeffizienzklasse
F
Endenergiebedarf
196,5 kWh/(m²*a)

Lagebeschreibung

Karben liegt im Herzen der Wetterau und trotzdem nah an Frankfurt. Für viele Städter eine echte Wohnalternative. Ein dichtes Netz aus Wander-, Spazier- und Radwegen lädt zu Ausflügen ein.


Die Gemeinde ist über die B3 und A661 an die A5 angeschlossen. Mit der RMV-Linie S6 und Regionalbussen können Sie schnelle Verbindungen in die Stadtteile, nach Frankfurt und Friedberg nutzen. Park & Ride Möglichkeiten finden Sie direkt an den Bahnhöfen.


Das Karbener Gewerbe ist aktiv, vielseitig und attraktiv. Sie bekommen fast alles – von Karbenern für Karbener.


Das schulische Angebot beinhaltet Grundschulen und eine kooperative Gesamtschule. Vielfältige Kinderbetreuungsangebote können genutzt werden.


Für Ihre Freizeitgestaltung können Sie aus einem großen Freizeit- und Kulturangebot wählen. Die Vielfalt an Kulturvereinen und Initiativen sowie die zahlreichen Freizeitanlagen ermöglichen Ihnen eine hohe Lebensqualität.


Sonstige Angaben

Gerne stehen wir Ihnen für ein Beratungs- und Besichtigungstermin zur Verfügung.


Sie möchten selbst eine Immobilie verkaufen?
Wir ermitteln einen seriösen und marktgerechten Wert Ihrer Immobilie. Mit einem individuell für Sie abgestimmten Vermarktungsplan optimieren wir die Verkaufschancen. Als Tochtergesellschaft der Frankfurter Volksbank Rhein/Main unterstützt uns hierbei unser umfangreiches Netzwerk. Gerne begleiten wir Sie auf dem Weg zum erfolgreichen Verkauf Ihrer Immobilie und stehen Ihnen auch noch nach dem Beurkundungstermin zur Verfügung.


Für alle Fragen zur Finanzierung stehen Ihnen die Spezialisten der Frankfurter Volksbank Rhein/Main zur Verfügung. Hier stellen wir gerne einen Kontakt her.


Sprechen Sie uns an – wir freuen uns auf Sie!


Wohnung finden so einfach wie möglich - das ist unsere Mission!

Kostenlose Basic Features

0 € monatlich


  • Individuelles Such-Profil anlegen
  • Suchaufträge speichern
  • One-Klick Kontaktaufnahme

alles anzeigen

Jetzt kostenlos anmelden

Premium Features

19,99 € monatlich


  • Alle kostenlosen Features
  • Smart-Alarm per Whatsapp
  • Deine Chancen checken
  • Wohngegend analysieren

alles anzeigen

Jetzt Premium freischalten

Gewerblicher Anbieter

Immobilien Gesellschaft mbH der Frankfurter Volksbank Rhein/Main
Seligenstädter Straße 52
63179 Obertshausen

Wohnglück-ID:
Objekt-Nr.:
WGL-711720
12060