Büro / Praxen in Berlin (Tempelhof)

Aufzug
barrierefrei
Gäste WC
Einbauküche
Garage/­Stellplatz

Flexible teilbare Gewerbefläche mit vielen Möglichkeiten – 4. OG in Berlin-Tempelhof

Anfragen bisher

Premium

Meine Chancen

Premium

Fairer Preis

Premium

16.632 €

Kaltmiete

21 Zi.

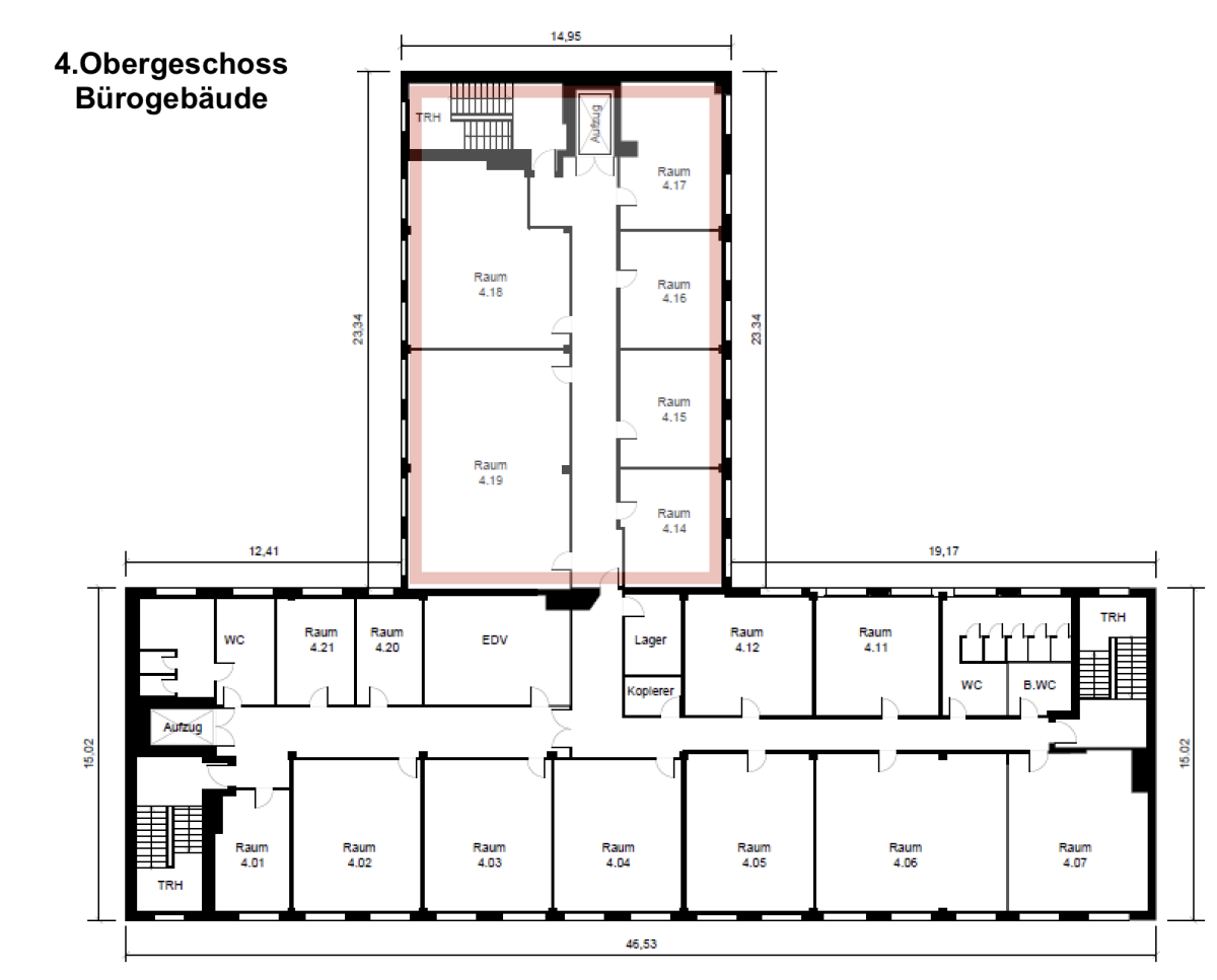
4. OG

Grundriss

12099 Berlin

Gewerblicher Anbieter

Amelia-Immobilien
Lietzenburgerstraße 107
10707 Berlin

Details

Bürofläche
924 m²
Zimmerzahl
21
Typ der Gewerbeimmobilie
Büro / Praxen
Etage, Geschoss
4
Bezugsfrei ab
ab sofort
Anzahl Garage/ Stellplatz
1
Objektzustand
Gepflegt
Baujahr
1930

Kosten

Kaltmiete
16.632 €
Nebenkosten
3.696 €
Was kostet dein Umzug?

Stellplätze

Stellplatztyp
Freiplatz
Anzahl
4

Objektbeschreibung

Im Herzen von Tempelhof wartet eine außergewöhnlich vielseitige Immobilie auf neue Nutzer: Die aktuell als Büro genutzte Fläche im 4. Obergeschoss umfasst ca. 924 m² mit rund 21 Räumen – und ist ab sofort verfügbar. Dank der Teilbarkeit ab einem einzelnen Zimmer eignet sich das Objekt sowohl für große Konzepte als auch für kleinere Einheiten.


Highlights auf einen Blick


Fläche: ca. 994 m² | Raumanzahl: ca. 21


Teilbar ab 1 Zimmer – flexible Anmietungsoptionen


Barrierefreier Zugang & Fahrstuhl


Einbauküche vorhanden


Außenstellplätze verfügbar


5 Gehminuten zur U-Bahn-Station Tempelhof (U6 / S-Bahn-Anschluss)


Gepflegter, sauberer Zustand – sofort nutzbar


Vielseitige Nutzungsmöglichkeiten
Ob Büro- und Praxisbetrieb, Kirchengemeinde, kleine Veranstaltungsformate, Seminar- und Schulungszentrum, Therapie- oder Beratungsräume, Coworking oder Projektbüros – die Raumaufteilung erlaubt unterschiedlichste Konzepte. Große wie kleine Einheiten können individuell gestaltet werden, Gemeinschaftsbereiche lassen sich ebenso realisieren wie abgeschlossene Einheiten.


Bausubstanz & Energieausweis

A+

A

B

C

D

117 kWh/(m²*a)

E

F

G

H

Objektzustand
Gepflegt
Wesentlicher Energieträger
Erdgas leicht
Heizungsart
Fernwärme
Energieausweis
liegt vor
Energieausweistyp
Bedarfsausweis
Ausstellungsdatum
01.07.2015
Gültig bis
30.06.2025
Energieeffizienzklasse
D
Endenergiebedarf
117 kWh/(m²*a)

Ausstattung

Ca. 21 unterschiedlich große Räume – ideal für Arbeits-, Besprechungs- oder Gruppenräume


Helle Flure und großzügige Verkehrsflächen


Sanitäranlagen auf der Etage (getrennt nutzbar)


Einbauküche für das Team-Catering oder Pausenversorgung


Starkstromanschlüsse (falls benötigt bitte separat anfragen)


Lagebeschreibung

Die Immobilie liegt in einem etablierten Gewerbeumfeld in Tempelhof. Die U-Bahn-Station Tempelhof ist in 5 Minuten fußläufig erreichbar; ebenso bestehen direkte Anschlüsse an Bus- und S-Bahnlinien. Die Nähe zum Tempelhofer Damm sorgt für eine gute Sichtbarkeit und schnelle Anbindung an die Stadtautobahn.


Sonstige Angaben

Warum diese Fläche?
Planungssicherheit: Sofortige Verfügbarkeit und gepflegter Zustand


Skalierbarkeit: Von der Einraumlösung bis zum Großraumkonzept


Repräsentativ & funktional: Seriöses Umfeld für professionelle Ansprüche – zugleich offen für kreative und gemeinnützige Nutzungen


Interesse geweckt?
Gern senden wir Ihnen weitere Unterlagen, Grundrisse und Konditionen oder vereinbaren einen kurzfristigen Besichtigungstermin. Teilen Sie uns einfach Ihr Nutzungskonzept und den gewünschten Flächenbedarf mit – wir finden die passende Lösung.


Wohnung finden so einfach wie möglich - das ist unsere Mission!

Kostenlose Basic Features

0 € monatlich


  • Individuelles Such-Profil anlegen
  • Suchaufträge speichern
  • One-Klick Kontaktaufnahme

alles anzeigen

Jetzt kostenlos anmelden

Premium Features

19,99 € monatlich


  • Alle kostenlosen Features
  • Smart-Alarm per Whatsapp
  • Deine Chancen checken
  • Wohngegend analysieren

alles anzeigen

Jetzt Premium freischalten

Gewerblicher Anbieter

Amelia-Immobilien
Lietzenburgerstraße 107
10707 Berlin

Wohnglück-ID:
Objekt-Nr.:
WGL-692923
Ring - Büro 4- OG