Bauernhaus in Strahwalde

Balkon/­Terrasse
Garten/­-mitbenutzung
Haustiere erlaubt
Garage/­Stellplatz

Ehemaliger Bauernhof Teilsaniert Alleinlage Autarkie möglich

Anfragen bisher

Premium

Meine Chancen

Premium

Fairer Preis

Premium

300.000 €

Kaufpreis

195 m²

5,5 Zi.

02747 Strahwalde

Privater Anbieter

Details

Grundstücksfläche
31.960 m²
Zimmerzahl
5,5
Haustyp
Bauernhaus
Bezugsfrei ab
nach Vereinbarung
Anzahl Garage/ Stellplatz
2
Objektzustand
Teilsaniert
Baujahr
1925

Kosten

Kaufpreis
300.000 €
Was kostet dein Umzug?

Stellplätze

Stellplatztyp
Garage
Anzahl
1
Stellplatztyp
Freiplatz
Anzahl
1

Objektbeschreibung

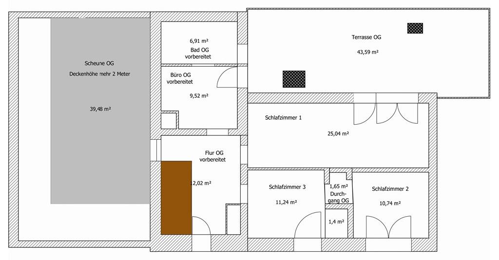
Wohnhaus mit anliegender Scheune und Nebengelasse
31960qm großes Grundstück mit Diversen Ausbaumöglichkeiten

Keine direkte Nachbarschaft, Alleinlage auf dem Grundstück, Ideal zur Tierhaltung, Landwirtschaftliche und oder Gewerblich- Wirtschaftliche Nutzung.

Wohnhaus gesamt 195qm auf 2 Etagen
2 Kellerräume + Kriechkeller (über Leiter von Außen zugänglich)
Dachboden als Kaltboden
43qm große Dachterrasse
Scheune gesamt 102qm auf 2 Etagen, Anbindung ans Wohnhaus, Durchgang vorhanden.
Werkstatt Massivbau gesamt 33qm groß, anliegend Holzschuppen gesamt 50qm Bestandschutz zur Ausbau Möglichkeit.

3960qm Garten/Nutzfläche um Haus / Nebengelasse
28000qm Grün/Ackerland direkt Anliegend, bis Ende 2026 Verpachtet (weiter verpachtung oder frühere Nutzung nach Absprache möglich).

Sanierungs- und Modernisierungs- Maßnahmen seit 2015 (Auflistung siehe Bild)

PV-Anlage inkl Speicher und Wallbox (Miet Übernahme, Kaufoption oder Abbau möglich)
Brunnen am Haus
Bachlauf auf dem Grundstück
Biologische Kleinkläranlage
Glasfaser Anschluss
3x Schornsteine.

Bei ernsthaftem Interesse schicken wir Ihnen gern gewünschte Unterlagen zu. Hierfür bitten wir aus Sicherheitsgründen um Ihre Persönlichen Kontaktdaten + Mailadresse (zwecks Unterlagen Zusendung).
Details sowie Besichtigungstermine können nur telefonisch Besprochen werden.

Unangemeldeter Besuch ist NICHT erwünscht, da das Objekt noch bewohnt ist.

Bausubstanz & Energieausweis

Objektzustand
Teilsaniert
Energieausweis
Bei Besichtigung

Wohnung finden so einfach wie möglich - das ist unsere Mission!

Kostenlose Basic Features

0 € monatlich


  • Individuelles Such-Profil anlegen
  • Suchaufträge speichern
  • One-Klick Kontaktaufnahme

alles anzeigen

Jetzt kostenlos anmelden

Premium Features

19,99 € monatlich


  • Alle kostenlosen Features
  • Smart-Alarm per Whatsapp
  • Deine Chancen checken
  • Wohngegend analysieren

alles anzeigen

Jetzt Premium freischalten

Privater Anbieter

Wohnglück-ID:
Objekt-Nr.:
WGL-672628