Doppelhaushälfte in Ockenfels

Balkon/­Terrasse
Keller
Garage/­Stellplatz

Viel Platz fĂĽr die ganze Familie Modernes Einfamilienhaus in Ockenfels mit Garten und Garage

Anfragen bisher

Premium

Meine Chancen

Premium

Fairer Preis

Premium

499.000 â‚¬

Kaufpreis

190 m²

6 Zi.

53545 Ockenfels

Gewerblicher Anbieter

wohnbar Immobilien-Management
Wolkenburgstr. 2
53639 Königswinter

Details

Grundstücksfläche
341 m²
Zimmerzahl
6
Haustyp
Doppelhaushälfte
Etagenzahl
4
Nutzfläche
100 m²
Bezugsfrei ab
01.10.2025
Anzahl Schlafzimmer
5
Anzahl Badezimmer
3
Anzahl Garage/ Stellplatz
3
Objektzustand
Gepflegt
Baujahr
2001

Kosten

Kaufpreis
499.000 €
Käuferprovision
3,57%
Was kostet dein Umzug?

Stellplätze

Stellplatztyp
Freiplatz
Anzahl
2
Stellplatztyp
Garage
Anzahl
1
Stellplatztyp
Parkhaus
Anzahl
2

Objektbeschreibung

Schauen wir uns Ihr neues Zuhause doch einmal genauer an:
Sie betreten die im Jahre 2001 in Massivbauweise errichtete Doppelhaushälfte über die Außentreppe und den überdachten Eingangsbereich. Beheizt wird die Immobilie mit einer modernen Gas-Brennwerttherme aus dem Jahr 2024 und Fußbodenheizung. Rechts neben dem Eingang befindet sich die erste Terrasse/Laube für gemütliche Abende. Wenn Sie den Eingang betreten, erwartet Sie ein langer Dielenbereich, der Sie rechterhand über den breiten Treppenaufgang ins OG und den Schlafräumen führt. Die Diele ist mit einer hellen-Bodenfliese ausgestattet. Vom Flur aus kommen Sie direkt in den schönen hellen Wohnraum mit direktem offenem Zugang in die helle und freundliche Küche.
Der große Wohn- und Essbereich umfasst ca. 29 m² und bietet viel Platz für Ihre Einrichtungsideen. Auch hier ist als Bodenbelag die helle-Bodenfliese verlegt.


In der Küche wartet bereits eine moderne helle Einbauküche auf Ihre Rezepte. Die Küche ist bereits ausgestattet mit Cerankochfeld, Backofen, Kühlschrank und Spülmaschine sowie viel Schrankfläche für Ihre Vorräte. Die vorhandenen Fenster schaffen eine sehr freundliche Atmosphäre.


Von der Diele aus erreichen Sie auch einen Vorratsraum mit viel Platz fĂĽr Putzzeug, Konserven oder auch als Garderobe.
Weiter geht es ins erste Wannenbad mit Fenster. Das stylische Stein-HWB gibt dem Raum ein modernes Flair.
Ein weiterer Raum auf dieser Etage wird aktuell als BĂĽro genutzt.


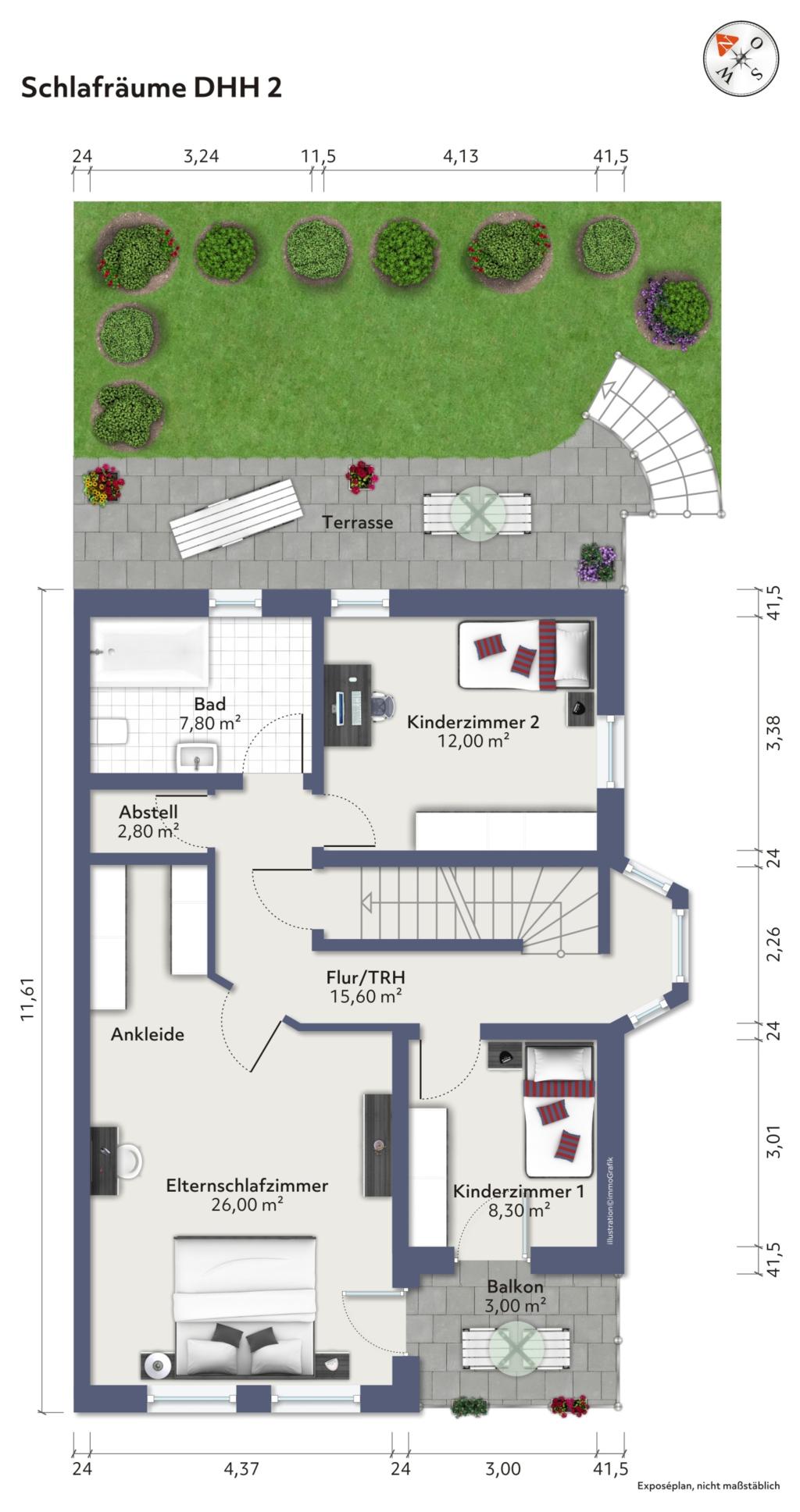
Weiter geht es in das Obergeschoss, in dem Sie insgesamt drei Schlafräume sowie ein weiteres Wannenbad und einen Abstellraum zur Verfügung haben. Auch auf dieser Etage wurde als Bodenbelag die helle-Bodenfliese verwendet.
Der Flur ist mit einem hellen Erker architektonisch aufgewertet und bietet Ihnen in dieser Etage viel Tageslicht. Von einem der Kinderzimmer sowie von dem groĂźen Elternschlafzimmer mit Ankleidebereich erreichen Sie den ĂĽberdachten Balkon mit bester Aussicht ins GrĂĽne. Das dritte Schlafzimmer, heute als Kinderzimmer genutzt, hat einen direkten Zugang ĂĽber ein bodentiefes Fenster auf die Terrasse und den Garten.


Der Garten besteht aus mehreren Ebenen. Auf der ersten wäre reichlich Platz für Ihre Gartenmöbel oder auch eine Feuerstelle. Die nächste Ebene könnte auch ein toller Platz für Sonnenanbeter werden. Auf der dritten Ebene steht bereits ein Gewächshaus und viel Platz für einen Nutzgarten.


Das geräumige Dachgeschoss erreichen Sie über eine offene Treppe.
Sie betreten das DG und stehen in einer offenen Galerie, wo Sie auch bequem die Gastherme bedienen können. Hier befindet sich viel Platz für den Spielbereich Ihrer Kinder. Auf dieser Ebene befindet sich auch ein drittes Badezimmer, diesmal mit einer Dusche ausgestattet. Natürlich darf auch hier das Fenster nicht fehlen. Zwei Schlafzimmer, jeweils mit einem Dachflächenfenster ausgestattet, bieten hier wieder Platz für Kinder, Gäste oder Büro.
Eines der Zimmer hat durch ein bodentiefes Fenster Zugang zu dem kleinen Balkon im Erkerbereich.


Das Kellergeschoss ist teilweise zur Wohnnutzung ausgebaut worden. Als erstes gibt es einen tollen Waschraum mit eingebauten Schränken, wo Sie viel Wäsche verstauen können und es sieht immer aufgeräumt aus. Durch den Flur gelangen Sie in den heute als Hobbyraum genutzten Bereich, der früher als Wohnraum diente. Von hier geht es über einen Bogendurchgang in einen Raum, in dem heute noch die früheren Küchenanschlüsse vorhanden sind.
Auch diese Ebene ist mit pflegeleichten Bodenfliesen ausgestattet. Auf dieser Ebene befindet sich noch ein Gäste-WC mit HWB sowie einem geräumigen Abstellraum, in dem auch eine Sauna eingerichtet werden könnte.
Den direkten Zugang in die Garage sowie der angrenzenden Werkstatt finden Sie ebenfalls im Kellergeschoss. Ihre Einkäufe schaffen Sie hier direkt ins Haus.


Bausubstanz & Energieausweis

A+

A

B

C

97,21 kWh/(m²*a)

D

E

F

G

H

Baujahr
2024
Objektzustand
Gepflegt
Wesentlicher Energieträger
ERDGAS_LEICHT
Heizungsart
FuĂźbodenheizung
Befeuerung
Gasheizung
Energieausweis
liegt vor
Energieausweistyp
Bedarfsausweis
GĂĽltig bis
01.07.2035
Energieeffizienzklasse
C
Endenergiebedarf
97,21 kWh/(m²*a)

Ausstattung

• Die Größe des Grundstückes beträgt ca. 341 m²


• EFH/Doppelhaushälfte in Massivbauweise von 2001 wurde verklinkert


• Die Wohnfläche der Immobilie beträgt ca. 190 m² zuzüglich ca. 100 m² Nutzfläche


• Die Gasheizung aus dem Jahr 2024 versorgt Sie auch mit Warmwasser


• Als Bodenbelag wurde eine helle und pflegeleichte Bodenfliese in modernem Format gewählt


• Die Kunststofffenster sind zweifachverglast


• Im Kellergeschoss sind zwei Räume zur Wohnnutzung aufwendig ausgebaut


• Direkter Zugang von der Garage ins Haus


• Sie, verfügen über zwei sonnige Terrassen, Garten in Terrassenform und zwei Balkone


• Hohe Internet-Übertragungsrate über Glasfaser, die bereits im Haus genutzt wird


• Zusätzlich zu der großen Garage können noch bis zu 2 weitere Pkw’s auf Ihrem Grundstück parken


• Die Immobilie verfügt über 5 Schlafzimmer


Lagebeschreibung

Sie interessieren sich für eine Doppelhaushälfte mit viel Platz, zwei Terrassen, Balkonen, Garten und Garage in Ockenfels.
Das geräumige Doppelhaus befindet sich in ruhiger Orts-Lage. Das Umfeld ist geprägt von Einfamilienhäusern in aufgelockerter Bauweise sowie großzügigen Grünanlagen.
Der Ort Ockenfels ist eine Ortsgemeinde im Landkreis Neuwied im Norden von Rheinland-Pfalz. Er gehört der Verbandsgemeinde Linz am Rhein an und grenzt nordwestlich an die Stadt Linz am Rhein und südlich an die Gemeinde Kasbach-Ohlenberg. Ihr neuer Wohnort bietet ganz besonders Menschen, die den Weitblick suchen, einen optimalen Wohnstandort. Ein malerisch gelegenes Restaurant, welches mit Blick auf den Rhein zum Verweilen einlädt, wird Sie begeistern. Alle Geschäfte des täglichen Bedarfs befinden sich im wenige Autominuten entfernten Linz am Rhein.
Ockenfels selbst verfügt über einen eigenen kommunalen Kindergarten. Grundschulen und weiterführende Schulen können in Linz am Rhein besucht werden. Die Verkehrsanbindung ist als hervorragend zu bezeichnen. Die links- und rechtsrheinischen Autobahnen A3 (Anschlussstelle Bad Honnef/Linz) und A61 (Dreieck Bad Neuenahr) sind schnell zu erreichen. Eine Autofähre verbindet die beiden Rheinufer. Alle 30 Minuten fahren Züge vom Linzer Bahnhof, der in 10 Minuten fußläufig zu erreichen ist, in Richtung Bonn, Köln und Koblenz. Auch das Freizeitangebot lässt keine Wünsche offen. Kultur- und Sportvereine, lebendiges gesellschaftliches Leben, kurze Wege zum gut erschlossenen Netz von Wanderwegen und den schönsten Weinanbaugebieten Deutschlands bieten viele Möglichkeiten. Eine Lage mit hoher Lebensqualität und Charme!


Sonstige Angaben

Energiekennwerte:


Energieausweistyp: bedarfsbasiert
GĂĽltig vom 02.07.2025 bis 01.07.2035
Wesentliche Energieträger: Gas
Baujahr Anlagentechnik: 2024
Baujahr Gebäude: 2001
Endenergiebedarf: 97,21 kWh/ (m² a)
Energiekennwert: C


Rechtlicher Hinweis:
Sämtliche hier genannten Angaben und Daten basieren auf den Auskünften und Unterlagen der Eigentümer. Die Grundrisse dienen zur Veranschaulichung der Immobilie und sind nicht zwingend maßstabsgerecht. Daher übernehmen wir für die Richtigkeit und Vollständigkeit sowie für die tatsächliche Übereinstimmung dieser Daten mit der Immobilie keine Gewähr. Als Rechtsgrundlage dient allein der notariell beurkundete Kaufvertrag.
Dieses Exposé ist nur für Sie persönlich bestimmt. Eine Weitergabe an Dritte ist nur mit unserer ausdrücklichen Zustimmung in schriftlicher Form erlaubt und entbindet nicht von der Zahlung unseres Provisionsanspruchs bei Zustandekommen eines notariell beurkundeten Kaufvertrags. Bei Zuwiderhandlung behalten wir uns die Forderung auf Schadenersatz bis zur Höhe der entgangenen Provisionsansprüche ausdrücklich vor.


Provisionshinweis:
Die Courtage beträgt für beide Parteien (Eigentümer und Käufer) jeweils die gleiche Höhe auf den beurkundeten Kaufpreis inkl. der gesetzlichen Umsatzsteuer. Die Provision/Courtage beträgt je Partei 3,57 % auf den beurkundeten Kaufpreis.
Der Maklervertrag kommt mit wohnbar Immobilien-Management durch die Bestätigung der Inanspruchnahme unserer Maklertätigkeit in Textform zustande, wie z.B. insbesondere der Erhalt des Objekt-Exposés. Die Höhe der Courtage richtet sich nach den ab dem 23.12.2020 in Kraft getretenen gesetzlichen Regelungen zur Teilung der Maklercourtage. Die Courtage ist für beide Parteien bei notariellem Vertragsabschluss verdient und fällig.
Die Grunderwerbsteuer, Notar- und Grundbuchkosten sind vom Käufer zu tragen.


Wohnung finden so einfach wie möglich - das ist unsere Mission!

Kostenlose Basic Features

0 € monatlich


  • Individuelles Such-Profil anlegen
  • Suchaufträge speichern
  • One-Klick Kontaktaufnahme

alles anzeigen

Jetzt kostenlos anmelden

Premium Features

19,99 € monatlich


  • Alle kostenlosen Features
  • Smart-Alarm per Whatsapp
  • Deine Chancen checken
  • Wohngegend analysieren

alles anzeigen

Jetzt Premium freischalten

Gewerblicher Anbieter

wohnbar Immobilien-Management
Wolkenburgstr. 2
53639 Königswinter

WohnglĂĽck-ID:
Objekt-Nr.:
WGL-672620
264