Einfamilienhaus freistehend in Burg (Dithmarschen)

Balkon/­Terrasse
Garten/­-mitbenutzung
Gäste WC
Keller
Einbauküche
Garage/­Stellplatz

Großzügig, solide und ruhig am Ortsrand gelegen

Anfragen bisher

Premium

Meine Chancen

Premium

Fairer Preis

Premium

360.000 €

Kaufpreis

171,55 m²

6 Zi.

25712 Burg (Dithmarschen)

Gewerblicher Anbieter

McMakler GmbH
Am Postbahnhof 17
10243 Berlin

Details

Grundstücksfläche
565 m²
Zimmerzahl
6
Haustyp
Einfamilienhaus freistehend
Etagenzahl
2
Bezugsfrei ab
nach Absprache
Anzahl Schlafzimmer
4
Anzahl Badezimmer
1
Anzahl Garage/ Stellplatz
1
Objektzustand
Gepflegt
Letzte Modernisierung/ Sanierung
2020
Baujahr
1973

Kosten

Kaufpreis
360.000 €
Käuferprovision
Die Provision i.H.v. 2,98 % inkl. MwSt. ist mit Kaufvertragsbeurkundung fällig, sofern der Verkaufspreis über 83.000,00 € liegt. Liegt der Verkaufspreis dagegen bei/unter 83.000,00 €, ist die fest vereinbarte Mindestprovision i.H.v. mind. 5.950,00
Was kostet dein Umzug?

Objektbeschreibung

Objektnr: 1067658


So viele Möglichkeiten und so viel Platz! Schon im Erdgeschoss finden Sie neben dem großzügigen Wohnbereich mit Ausgang zur Terrasse zwei weitere Zimmer - gut geeignet als Büro, Hobbyraum oder für Gäste. Die Küche wird durch einen beeindruckenden Einbauschrank mit Tür und einer sogenannten "Durchreiche" mit dem Wohn-Essbereich verbunden. Sehr praktisch für den Alltag, aber auch, um stilvoll Ihren Besuch zu bewirten. Der Eingangsbereich und das Treppenhaus werden durch ein großes Fenster erhellt.
Im Dachgeschoss befinden sich drei weitere helle Räume und das große Bad mit Dusche und zwei Waschbecken. Außerdem gibt es eine kleine Abstellkammer, um zum Beispiel Haushaltsgerät zu verstauen.
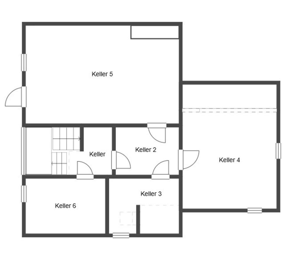
Im Keller setzt sich das enorme Platzangebot fort. Hier ist nicht nur die Heizung untergebracht, sondern es finden sich ebenso Möglichkeiten für Waschmaschine und Trockner, großzügige Bevorratung mit Lebensmitteln sowie weitere Flächen für Hobby und Heimwerken. Ein Glasfaseranschluss ist schon installiert. Ein Highlight ist auch der komplett mit Möbeln ausgestattete Partyraum.
Nicht nur über die Terrasse und durch die Garage, sondern auch vom Keller aus ist der Garten über eine Treppe zu erreichen. Geschützt und teilweise überdacht liegt die Terrasse direkt am Haus und gibt den Blick in den überschaubaren, leicht zu pflegenden Garten frei. Das Grundstück grenzt direkt an das Naherholungsgebiet "Paradiestal". In einer Sackgasse gelegen ist dieses Haus eine Oase der Ruhe.


Bausubstanz & Energieausweis

A+

A

B

C

D

E

144,9 kWh/(m²*a)

F

G

H

Baujahr
1973
Objektzustand
Gepflegt
Letzte Modernisierung
2020
Wesentlicher Energieträger
Öl
Heizungsart
Zentralheizung
Befeuerung
Ölheizung
Energieausweis
liegt vor
Energieausweistyp
Bedarfsausweis
Energieeffizienzklasse
E
Endenergiebedarf
144,9 kWh/(m²*a)

Ausstattung


  • In ruhiger Umgebung in Waldrandlage

  • Entspannung im Freien: sichtgeschützter Garten mit Terrasse

  • Das Objekt präsentiert sich in einem gepflegten Zustand - die letzte Renovierung erfolgte 2020

  • Drei Zimmer im Erdgeschoss und drei weitere im Dachgeschoss

  • Viel Staufläche im Keller, Platz für Fahrzeuge in Garage und auf dem Stellplatz


Lagebeschreibung

Lage: Echte Ruhe und Entspannung dank idyllischer Waldrandlage
Bildung und Betreuung: Gutes Bildungs- und Betreuungsangebot mit Schule und Kindergarten (max. 3 km Entfernung)
Nahversorgung: Täglicher Bedarf gedeckt: Supermarkt, Apotheke, Postfiliale und Bankfiliale in max. 6 km Entfernung
Anbindung: Nächste Bushaltestelle sowie nächste Autobahn gut erreichbar


Sonstige Angaben

Vereinbaren Sie noch heute einen Besichtigungstermin!








Alle Angaben sind ohne Gewähr und basieren ausschließlich auf Informationen, die uns von unserem Auftraggeber zur Verfügung gestellt wurden. Wir übernehmen keine Gewähr für die Vollständigkeit, Richtigkeit und Aktualität der Angaben.


Wohnung finden so einfach wie möglich - das ist unsere Mission!

Kostenlose Basic Features

0 € monatlich


  • Individuelles Such-Profil anlegen
  • Suchaufträge speichern
  • One-Klick Kontaktaufnahme

alles anzeigen

Jetzt kostenlos anmelden

Premium Features

19,99 € monatlich


  • Alle kostenlosen Features
  • Smart-Alarm per Whatsapp
  • Deine Chancen checken
  • Wohngegend analysieren

alles anzeigen

Jetzt Premium freischalten

Gewerblicher Anbieter

McMakler GmbH
Am Postbahnhof 17
10243 Berlin

Wohnglück-ID:
Objekt-Nr.:
WGL-662718
684ff4cd3cee51f4fa8f48a7