Büro / Praxen in Straubing

Garten/­-mitbenutzung
Keller
Einbauküche
Garage/­Stellplatz

PROVISIONSFREI: Gewerbeflächen in Straubing-Ittling zu vermieten

Anfragen bisher

Premium

Meine Chancen

Premium

Fairer Preis

Premium

Auf Anfrage

Kaufpreis

94315 Straubing

Gewerblicher Anbieter

Raiffeisen Immobilienzentrum
Wittelsbacherhöhe 14
94315 Straubing

Details

Typ der Gewerbeimmobilie
Büro / Praxen
Anzahl Garage/ Stellplatz
1
Objektzustand
Gepflegt
Baujahr
2002

Kosten

Kaufpreis
Auf Anfrage
Was kostet dein Umzug?

Stellplätze

Stellplatztyp
Freiplatz
Anzahl
40

Objektbeschreibung

Individuell belegbar ist dieses Gewerbeobjekt mit ca. 1.455 m² Gesamtfläche in Straubing-Ittling. Über drei Stockwerke hinweg verteilen sich insgesamt 34 Büro-/Besprechungsräume mit bis zu ca. 100 Arbeitsplätzen. Das Objekt lässt sich in mehrere abgetrennte Einheiten aufteilen. Im Keller befinden sich großzügige Lagerflächen und ausreichend Sanitärräume.


Im Erdgeschoss befinden sich zwei separate Gewerbeeinheiten: Das "Erdgeschoss 1" auf der mit ca. 187 m² bietet eine vielseitige und flexible Arbeitsumgebung für Unternehmen jeglicher Art. Das "Erdgeschoss 2" mit ca. 233 m² ist bereits an eine Hausarztpraxis vermietet.


Im Obergeschoss finden sich zwei weitere Einheiten: Das "Obergeschoss 1" (linke Seite) mit ca. 179m² sowie das "Obergeschoss 2" mit ca. 242m².


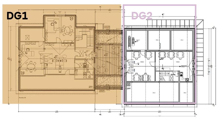
Im "Dachgeschoss 2" auf der rechten Seite mit ca. 69m², welches zusammen mit dem "Obergeschoss 2" vermietet wird, befindet sich eine Küche mit einem Sozialraum. Im angrenzenden großem Raum können Besprechungen, Schulungen etc. stattfinden.


Auf der linken Seite des Dachgeschosses mit ca. 128 m² befinden sich weitere Büroeinheiten "Dachgeschoss 1". Hier ist genügend Platz für Ihre individuelle Einrichtungswünsche.


Für kurze Pausen oder an schönen, sonnigen Tagen bietet die Dachterrasse einen Entspannungsort und bietet einen herrlichen Ausblick.


Im Kellerbereich befindet sich das Archiv, 5 Sanitärräume, ein Waschraum, die Haustechnik und weitere Lagerräume.


Ausreichend Parkmöglichkeiten befinden sich direkt am und um das Gebäude, sowie bietet die Bahn-Haltestation eine weitere attraktive Anbindung zu diesem Gewerbeobjekt


Die Gewerbeeinheit:
EG 1: 7 (Büro-)Räume
EG 2: 6 (Büro-)Räume, Empfang, WC - vermietet -
OG 1: 6 (Büro-)Räume, Abstellkammer
OG 2: 8 (Büro-)Räume, WC
DG 1: 3 (Büro-)Räume, WC, Küche
DG 2: 1 (Büro-)Räume, Küche
UG: 3 Lagerräume, 5 Sanitärräume, Technik, etc.


Die Gewerbeeinheit steht leer und kann jederzeit besichtigt werden.


Die Mietpreise variieren je nach Einheit.
Bei der Anmietung von mehreren Einheiten wird ein individueller Mietpreis vereinbart.


Das Obergeschoss 2 und Dachgeschoss 2 werden zusammen vermietet.


Der Stauraum im Keller kann nach individuellem Bedarf gemietet werden.


Bausubstanz & Energieausweis

Baujahr
2002, Anbau 2012
Objektzustand
Gepflegt
Wesentlicher Energieträger
Elektroenergie, Pellets
Heizungsart
Zentralheizung
Befeuerung
Elektroheizung
Energieausweis
liegt vor
Energieausweistyp
Verbrauchsausweis
Ausstellungsdatum
04.06.2025
Gültig bis
03.06.2035
Energieverbrauch für Warmwasser enthalten
Ja

Ausstattung

Gewerbeeinheit mit ca. 1.455 m² Gesamtfläche


EG 1 ca. 187 m² mit ca. 19 Arbeitsplätzen
EG 2 ca. 233 m² mit ca. 23 Arbeitsplätzen - vermietet -
OG 1 ca. 179 m² mit ca. 17 Arbeitsplätzen
OG 2 ca. 242 m² mit ca. 21 Arbeitsplätzen
DG 1 ca. 69 m² mit ca. 12 Arbeitsplätzen
DG 2 ca. 69 m² mit ca. 7 Arbeitsplätzen
KG ca. 376 m²


34 Büro- Besprechungsräume
Dachterrasse
Zwei vollausgestattete Küche
Sozialraum / Community Area
Insgesamt 9 Sanitärräume
Direkt gegenüber Bahnhofsstelle Ittling
Ausreichend Parkmöglichkeiten (40 Stellplätze) direkt vor der Tür
Separate Eingänge möglich
Kellergeschoss mit ca. 287 m² Nutzfläche, darunter viel Lagerfläche


Lagebeschreibung

Die Gewerbeeinheit befindet sich in Ittling, einem Ortsteil von Straubing, direkt am dortigen Bahnhof. Bis zur B20 sind es ca. 1,5 km, bis ins Stadtzentrum von Straubing ca. 5 km.


Durch die öffentlichen Verkehrsmittel, die Sie in wenigen Minuten von dem Objekt aus erreichen, kommen Sie wunderbar in die Innenstadt, zu den Einkaufsmöglichkeiten, die Sie für den Alltag benötigen, Ärztezentrum, Bildungseinrichtungen wie auch die Universität.


Straubing ist mit rund 48.000 Einwohnern eine liebenswerte Studentenstadt, in Mitte des Gäubodens. Altbayerische Lebensart, Kultur und modernes Leben vereinen sich hier. Die niederbayerische Stadt spielt in allen Bereichen eine führende Rolle, wie zum Beispiel in modernen Freizeiteinrichtungen, Tiergarten und das neue Stadttheater.
In den warmen Sommermonaten ist die Donau ein optimaler Ort um sich mit Freunden oder Familie eine gemütliche zeit zu machen. Auch die fünfte Jahreszeit, das Gäubodenvolksfest, zieht als zweitgrößtes Volksfest Bayerns jedes Jahr mehr als eine Millionen Besucher nach Straubing.


Wohnung finden so einfach wie möglich - das ist unsere Mission!

Kostenlose Basic Features

0 € monatlich


  • Individuelles Such-Profil anlegen
  • Suchaufträge speichern
  • One-Klick Kontaktaufnahme

alles anzeigen

Jetzt kostenlos anmelden

Premium Features

19,99 € monatlich


  • Alle kostenlosen Features
  • Smart-Alarm per Whatsapp
  • Deine Chancen checken
  • Wohngegend analysieren

alles anzeigen

Jetzt Premium freischalten

Gewerblicher Anbieter

Raiffeisen Immobilienzentrum
Wittelsbacherhöhe 14
94315 Straubing

Wohnglück-ID:
Objekt-Nr.:
WGL-656901
2407-E