Mehrfamilienhaus in Wiesau

derzeit vermietet
Keller
Garage/­Stellplatz

Attraktives Mehrfamilienhaus mit 11 Apartments und Top-Lage direkt am sanierten Bahnhof

Anfragen bisher

Premium

Meine Chancen

Premium

Fairer Preis

Premium

695.000 €

Kaufpreis

484 m²

22 Zi.

Grundriss

95676 Wiesau

Gewerblicher Anbieter

City Immobilien GmbH
Wörthstraße 9
92637 Weiden

Details

Grundstücksfläche
770 m²
Zimmerzahl
22
Haustyp
Mehrfamilienhaus
Bezugsfrei ab
sofort
Anzahl Garage/ Stellplatz
1
Baujahr
1903

Kosten

Kaufpreis
695.000 €
Käuferprovision
3,57% inkl. Mwst.
Was kostet dein Umzug?

Stellplätze

Stellplatztyp
Garage
Anzahl
4

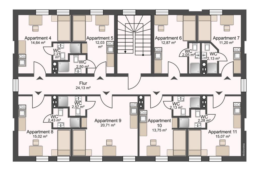
Objektbeschreibung

Diese außergewöhnliche Gewerbeimmobilie bietet eine hervorragende Gelegenheit für Kapitalanleger, die auf eine nachhaltige und stabile Vermietung setzen. Das Objekt überzeugt durch seine zentrale Lage, flexible Nutzungsmöglichkeiten und eine dauerhaft gut laufende Vermietung an Schüler der nahegelegenen EDV-Schule in Wiesau.


Das Gebäude besteht aus mehreren Wohneinheiten, die derzeit voll vermietet sind. Besonders hervorzuheben ist die erfolgreiche Vermietung der kleinen Appartements an Schüler, die die fußläufig erreichbare Schule besuchen. Die Mietverträge mit den Schülern laufen halbjährlich, was eine flexible und sichere Einnahmequelle darstellt. Die hohe Nachfrage nach diesen Einheiten sorgt für eine kontinuierliche Auslastung und stabile Mieteinnahmen.


Im Erdgeschoss befindet sich eine ca. 80 m² große 2-Zimmer-Wohnung, die derzeit von den Eigentümern bewohnt wird. Zudem gibt es dort drei im Jahr 2020 fertiggestellte Appartements, die sich ideal für kurzfristige oder langfristige Vermietungen eignen. Im ersten Obergeschoss sind acht weitere Appartements mit jeweils eigenem Badezimmer untergebracht, die ebenfalls voll vermietet sind. Das zweite Obergeschoss beherbergt zwei größere Wohneinheiten, eine davon ist umfassend saniert, die andere ist eine 4-Zimmer-Walk-in-Wohnung auf zwei Etagen. Im Dachgeschoss befindet sich eine 2-Zimmer-Wohnung, die momentan als Wohngemeinschaft genutzt wird.


Das freistehende Gebäude bietet auf 484 m² großzügigen Raum für individuelle Nutzungskonzepte. Das Grundstück umfasst 770 m² und ermöglicht vielfältige Erweiterungen oder Umgestaltungen – etwa für eine gewerbliche Nutzung, Studentenwohnheim oder alternative Nutzungskonzepte.


Die bestehende Photovoltaikanlage rundet das Objekt ab und sorgt für eine nachhaltige Energieversorgung.


Diese Immobilie überzeugt durch ihre stabile Vermietungssituation, insbesondere an Schüler, sowie durch ihre vielseitigen Nutzungsmöglichkeiten.


Bausubstanz & Energieausweis

A+

A

B

C

D

E

F

G

H

Baujahr
1939
Wesentlicher Energieträger
GAS
Heizungsart
Zentralheizung
Befeuerung
Gasheizung
Energieausweis
liegt vor
Energieausweistyp
Verbrauchsausweis
Gültig bis
29.09.2034
Energieverbrauchskennwert
134 kWh/(m²*a)
Energieeffizienzklasse
E

Lagebeschreibung

Wiesau ist ein Markt im Oberpfälzer Landkreis Tirschenreuth mit ca. 4.030 Einwohnern.
Sie befindet sich im Regierungsbezirk Oberpfalz in Bayern. Wiesau ist durch ihre Anbindung an die A93 und die Bundesstraße 299 nicht nur für Ortsansässige, sondern auch für überregionale Gäste gut erreichbar. Die nächstgrößere Stadt Marktredwitz liegt ca. 20 km nordwestlich von Wiesau und ist ebenfalls über die Anbindung an die A93 gut erreichbar.
Die Entfernung zur Landeshauptstadt München beträgt ca. 235 km. Wiesau ist zudem mit einem eigenen kleinen Bahnhof an wichtige Zugstrecken der Bahn angebunden. Von dort sind mit der Oberpfalzbahn und dem Regionalexpress Regensburg, Marktredwitz und Weiden in der Oberpfalz im Stundentakt erreichbar. Die medizinische Versorgung ist durch eine Vielzahl von Einrichtungen gedeckt, wie einer allgemeinmedizinischen Praxis, zwei Zahnärzten und einer Apotheke. In Wiesau gibt es drei Kindergärten sowie eine Grund-, Mittel- und Berufsschule. Des Weiteren gibt es eine Vielzahl von gesellschaftlichen, sportlichen, sowie politischen Vereine. Die Freizeitgestaltung zeichnet sich durch die schönen landschaftlichen Begebenheiten aus, die zum Wandern und Radfahren einlädt, außerdem gibt es Badeseen und einen Modellflugplatz.


Wohnung finden so einfach wie möglich - das ist unsere Mission!

Kostenlose Basic Features

0 € monatlich


  • Individuelles Such-Profil anlegen
  • Suchaufträge speichern
  • One-Klick Kontaktaufnahme

alles anzeigen

Jetzt kostenlos anmelden

Premium Features

19,99 € monatlich


  • Alle kostenlosen Features
  • Smart-Alarm per Whatsapp
  • Deine Chancen checken
  • Wohngegend analysieren

alles anzeigen

Jetzt Premium freischalten

Gewerblicher Anbieter

City Immobilien GmbH
Wörthstraße 9
92637 Weiden

Wohnglück-ID:
Objekt-Nr.:
WGL-656842
4068