Doppelhaushälfte in Ratekau

Balkon/­Terrasse
Garten/­-mitbenutzung
Keller
Einbauküche
Garage/­Stellplatz

Doppelhaushälfte mit Garage und großem Garten

Anfragen bisher

Premium

Meine Chancen

Premium

Fairer Preis

Premium

259.000 €

Kaufpreis

79 m²

4 Zi.

Grundriss

23626 Ratekau

Gewerblicher Anbieter

Sparda Immobilien GmbH
Werner-Kock-Straße 6
23554 Lübeck

Details

Grundstücksfläche
524 m²
Zimmerzahl
4
Haustyp
Doppelhaushälfte
Etagenzahl
2
Anzahl Schlafzimmer
2
Anzahl Badezimmer
1
Anzahl Garage/ Stellplatz
1
Objektzustand
Renovierungsbedürftig
Baujahr
1930

Kosten

Kaufpreis
259.000 €
Käuferprovision
3,57 % inkl. MwSt.
Was kostet dein Umzug?

Stellplätze

Stellplatztyp
Garage
Anzahl
1

Objektbeschreibung

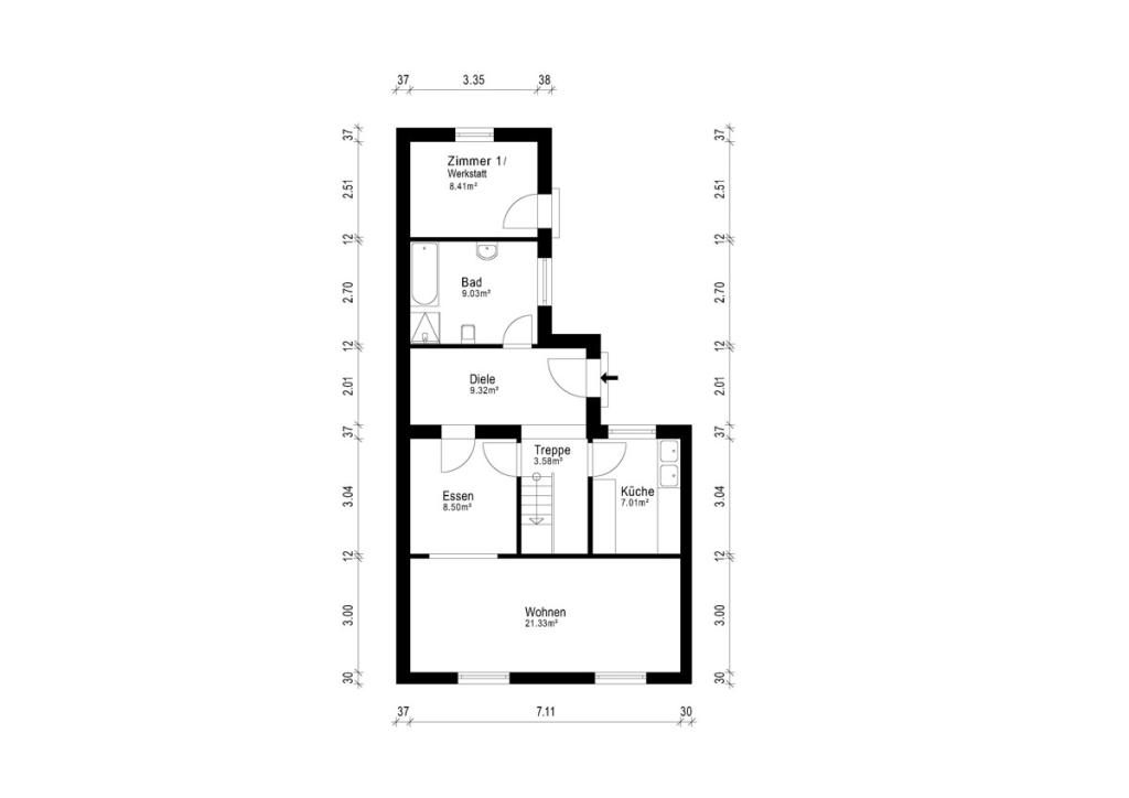
Bei der von uns angebotenen Immobilie handelt es sich ursprünglich um eine Doppelhaushälfte aus dem Jahr 1930 auf einem ca. 524,00 m² großen Grundstück. Im Jahr 1990 wurde dieses durch einen Anbau erweitert und die Wohnfläche vergrößert.


Der Eingang zu Ihrem Haus befindet sich an der Garage vorbei auf der straßenabgewandten Seite. Das Erdgeschoss verfügt über eine Wohnfläche von ca. 60,00 m². Über den zentralen Flur erreichen Sie im Uhrzeigersinn alle Zimmer. Auf der linken Seite befindet sich Ihre Küche. Diese ist mit einer gepflegten Einbauküche ausgestattet. Vom mittig gelegenen Wohnzimmer wurde der hintere Teil abgetrennt und es entstand ein weiteres kleines Schlafzimmer. Ein Duschbad befindet sich rechts des Flures im angebauten Teil der Immobilie. Dieses ist ausgestattet mit Dusche, Waschtisch und WC.


Eine schmale Holztreppe führt ins Dachgeschoss. Hier finden Sie zwei Zimmer, die als Schlaf- oder Arbeitszimmer genutzt werden können.


Der nach hinten ausgerichtete, großzügige Garten ist gut eingewachsen und freut sich auf Ihre Pflege. Zwei Terrassenplätze bieten viel Platz für z.B. einen erfrischenden Swimmingpool oder entspannte Grillabende. Eine Werkstatt am Anbau bietet viel zusätzlichen Platz für Hobby und Gartengeräte.


Zusätzliche Pkw-Stellplätze vor der Garage runden das Platzangebot im Vordergarten ab. Die Immobilie ist sofort verfügbar. Wir freuen uns auf eine gemeinsame Besichtigung.


Bausubstanz & Energieausweis

A+

A

B

C

D

E

F

G

H

297,6 kWh/(m²*a)

Baujahr
1992
Objektzustand
Renovierungsbedürftig
Wesentlicher Energieträger
GAS
Heizungsart
Zentralheizung
Befeuerung
Gasheizung
Energieausweis
liegt vor
Energieausweistyp
Bedarfsausweis
Gültig bis
12.06.2035
Energieeffizienzklasse
H
Endenergiebedarf
297,6 kWh/(m²*a)

Ausstattung

Fenster:
doppelt isolierverglaste Kunststofffenster


Heizung und Warmwasser:
Vaillant Gastherme


Bodenbeläge:
Fliesen und Teppichboden


Küche:
Einbauküche


Bäder:
Wannenbad im Erdgeschoss


Modernisierungen:
Anbau ca. 1990
Dach ca. 1981


Besonderheiten:
massive Garage, ruhige Lage, eingewachsener Garten


Lagebeschreibung

Die Gemeinde Ratekau, im Kreis Ostholstein, ist zentral gelegen und bei jungen Familien sehr beliebt. Die Gemeinde besteht aus 13 Dörfern mit ländlichem Charakter. Sie liegen zum Teil um den Hemmelsdorfer See herum. Die größten Dorfschaften der Gemeinde sind Sereetz, Ratekau, Pansdorf und Techau. Rund 20 Prozent der Gemeindefläche sind von Wäldern bedeckt.


Ratekau bietet seinen Einwohnern ein dörfliches Flair in zentraler Lage. So sind es nur ca.10 Kilometer bis nach Lübeck und bis zur Ostsee an den Timmendorfer Strand auch nur ca. 7 Kilometer. Für den täglichen Lebensbedarf finden Sie vom Discounter bis zum Supermarkt alles vor Ort. Auch eine Grundschule sowie zwei Kindergärten sind vor Ort vorhanden. Aufgrund der Lage, ist Ratekau gut in das öffentliche Verkehrsnetz eingebunden. Mit dem Auto erreichen Sie die A1 in ca. 7 Minuten.


Umwelt- und Naturschutz werden in Ratekau groß geschrieben. Dafür setzen sich viele Einwohner bereits seit Anfang der 80er-Jahre ein. Somit wurde Ratekau Ende 1983 zur „Modellgemeinde Landschaftspflege“, die neben dem Klimaschutz auch den Erhalt der biologischen Vielfalt in der Prioritätenliste ganz nach oben stellte.


Wohnung finden so einfach wie möglich - das ist unsere Mission!

Kostenlose Basic Features

0 € monatlich


  • Individuelles Such-Profil anlegen
  • Suchaufträge speichern
  • One-Klick Kontaktaufnahme

alles anzeigen

Jetzt kostenlos anmelden

Premium Features

19,99 € monatlich


  • Alle kostenlosen Features
  • Smart-Alarm per Whatsapp
  • Deine Chancen checken
  • Wohngegend analysieren

alles anzeigen

Jetzt Premium freischalten

Gewerblicher Anbieter

Sparda Immobilien GmbH
Werner-Kock-Straße 6
23554 Lübeck

Wohnglück-ID:
Objekt-Nr.:
WGL-648880
KA_6130