Maisonette in Unterammergau

Balkon/­Terrasse
Garten/­-mitbenutzung
Gäste WC
Haustiere erlaubt
Keller
Garage/­Stellplatz

Bergblick. Exklusive Materialien. Nachhaltig.

Anfragen bisher

Premium

Meine Chancen

Premium

Fairer Preis

Premium

515.000 €

Kaufpreis

86,59 m²

4 Zi.

Erdg.

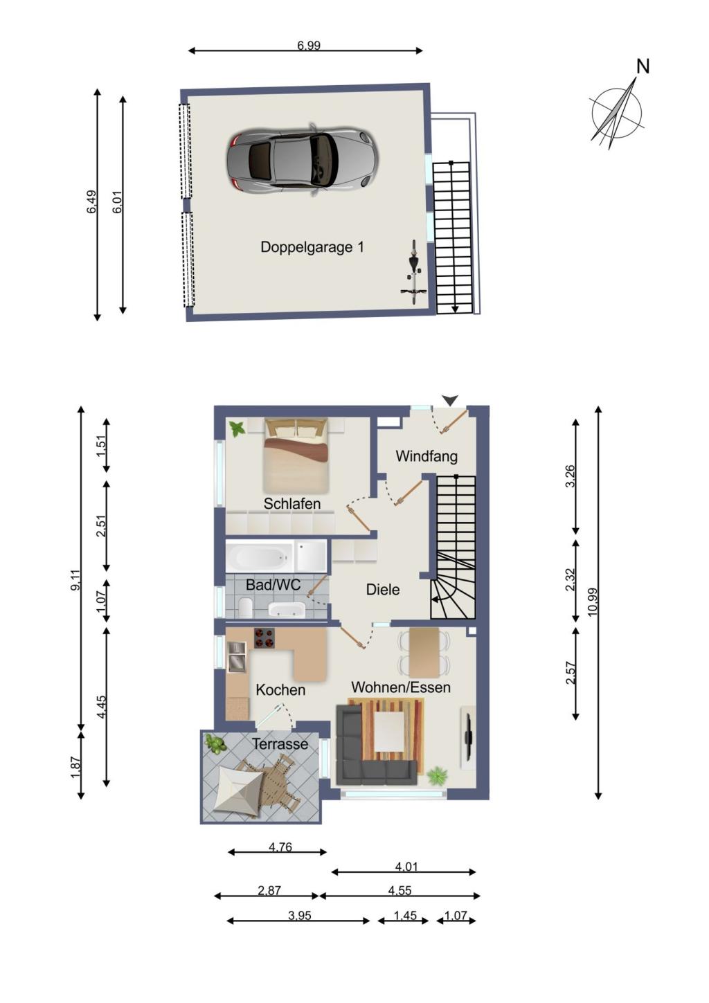
Grundriss

82497 Unterammergau

Gewerblicher Anbieter

VR-Bank Werdenfels eG
Bahnhofstraße 43
82467 Garmisch-Partenkirchen

Details

Zimmerzahl
4
Wohnungstyp
Maisonette
Bezugsfrei ab
06/2027
Anzahl Schlafzimmer
1
Anzahl Badezimmer
2
Anzahl Garage/ Stellplatz
2
Objektzustand
Erstbezug
Baujahr
2025

Kosten

Kaufpreis
515.000 €
Käuferprovision
2,50 % inkl. gesetzl. MwSt.
Was kostet dein Umzug?

Stellplätze

Stellplatztyp
Freiplatz
Anzahl
1
Kaufpreis
10.000 €
Stellplatztyp
Garage
Anzahl
1
Kaufpreis
30.000 €

Objektbeschreibung

DIE IMMOBILIE IM ÜBERBLICK



  • 4 Zimmer auf 2 Ebenen, ca. 87 m² Wohnfläche

  • Genießen Sie Ihren eigenen, 193 m² großen Garten, den Sie individuell gestalten können

  • Neubau-Erstbezug mit zahlreichen Individualisierungsmöglichkeiten

  • Lichterfüllte Räume im Untergeschoss dank moderner Gestaltung

  • Ruhige Lage mit einem traumhaften Bergblick auf den „Aufacker“

  • Große XXL-Garage, effiziente Beheizung über eine Luftwärmepumpe

  • Nachhaltige Energieversorgung durch eine Photovoltaikanlage

  • Ideal auch als Ferienwohnung geeignet

  • Moderne, architektonische Bauweise mit exklusiven Materialien


Bausubstanz & Energieausweis

A+

17 kWh/(m²*a)

A

B

C

D

E

F

G

H

Baujahr
2025
Objektzustand
Erstbezug
Wesentlicher Energieträger
LUFTWP
Heizungsart
Zentralheizung
Befeuerung
Wärmepumpe
Energieausweis
liegt vor
Energieausweistyp
Bedarfsausweis
Gültig bis
13.06.2035
Energieeffizienzklasse
A+
Endenergiebedarf
17 kWh/(m²*a)

Ausstattung

DIE IMMOBILIE IM DETAIL


Der Hauptwohnbereich der Wohnung Nummer 1 befindet sich im Erdgeschoss.


Ergänzend hierzu finden Sie über das, durch eine Innentreppe verbundene Untergeschoss, weitere hochwertige und lichtdurchflutete Räume zum Wohlfühlen.


Sie betreten Ihr neues Zuhause über einen großen Flur mit Platz für einen Garderobenschrank und einem praktischen Windfang.


Der großzügige Wohn- und Essbereich mit einer offenen Küche bietet viel Platz zum Wohlfühlen und Leben. Die Panorama-Fenster verwöhnen Sie mit einem traumhaften, freien Bergblick der Ihren Gästen den Atem rauben wird.


Ebenfalls im Erdgeschoss befindet sich das Schlafzimmer mit Platz für einen großen Kleiderschrank.


Das Tageslicht-Badezimmer sorgt dank der Kombination aus Badewanne und Dusche für Komfort.


Im verbunden Untergeschoss befindet sich ein weiteres Badezimmer mit einer Dusche – ideal für Ihre Gäste.
Zwei große Hobbyräume können von Ihnen als Arbeits- oder Schlafräume genutzt werden. Vielleicht möchte ja auch Ihr Kind sein eigenes Reich dort unten gestalten?


Dank der modernen Verglasung erhalten die Räume trotz Ihrer Lage im Untergeschoss außergewöhnlich viel Tageslicht.


Im Untergeschoss befindet sich ebenfalls der Technikraum, der sich als kombinierter Wasch- und Trockenraum eignet.


Für Ihr Auto steht eine XXL-Garage zur Verfügung, die für zzgl. 30.000 € gekauft werden kann.


Lagebeschreibung

Diese Immobilie befindet sich am idyllisch gelegenen Ortsrand von Unterammergau.


Neben allen Vorzügen, die ein Neubau bietet, genießt man hier zudem Ruhe und viel Grün mit einem traumhaften Bergblick über eine landwirtschaftliche Fläche hinweg in Richtung Aufacker.


Die Highlights von Unterammergau:



  • ca. 1.619 Einwohner

  • Am Alpen-Nordrand im Ammertal, am Rande des Naturschutzgebietes »Ammergauer Alpen«,

  • ca. 90 km südlich von München

  • Bundesstraße B23 Oberau – Peiting

  • Autobahn München – Garmisch

  • Nahversorger, Gasthäuser und Cafes

  • Das Kloster Ettal ist 4 km und Schloss Linderhof 12 km entfernt

  • Anerkannter Luftkurort

  • Bestandteil der „Zugspitzregion“

  • Traumhafte Natur wie die Schleifmühltalklamm oder die Berge rund um den Pürschling

  • Kunsthandwerk der Lüftlmalerei

  • Viele Museen und Kulturangebote

  • Ausgeprägtes Vereinsleben


Sonstige Angaben

Gerne vereinbaren wir mit Ihnen einen unverbindlichen Besichtigungstermin. Verwenden Sie hierzu einfach das Kontaktformular unter Angabe Ihrer Telefonnummer.


Für Fragen rund um diese Immobilie stehen wir Ihnen gerne zur Verfügung.


Es wird ausdrücklich darauf hingewiesen, dass abhängig vom Alter der Immobilie, der Art des Gebäudes, der Nutzungsart und den bisherigen Instandhaltungs- und/oder Instandsetzungsarbeiten des bisherigen Eigentümers Pflichten zur Sanierung nach dem Gebäudeenergiegesetz (GEG) binnen zwei Jahren ab Eigentumswechsel bestehen können, um die energetischen Voraussetzungen des GEG zu erfüllen. Dazu gehören u.a. die Dämmung der Geschossdecken, § 47 GEG, die Dämmung von Rohren, § 69 GEG, sowie die Modernisierung der Heizungsanlage, §§ 71,72 GEG.


Wohnung finden so einfach wie möglich - das ist unsere Mission!

Kostenlose Basic Features

0 € monatlich


  • Individuelles Such-Profil anlegen
  • Suchaufträge speichern
  • One-Klick Kontaktaufnahme

alles anzeigen

Jetzt kostenlos anmelden

Premium Features

19,99 € monatlich


  • Alle kostenlosen Features
  • Smart-Alarm per Whatsapp
  • Deine Chancen checken
  • Wohngegend analysieren

alles anzeigen

Jetzt Premium freischalten

Gewerblicher Anbieter

VR-Bank Werdenfels eG
Bahnhofstraße 43
82467 Garmisch-Partenkirchen

Wohnglück-ID:
Objekt-Nr.:
WGL-647147
2024-050-10