Hallen / Lager / Produktion in Kirkel (Limbach)

ANGEBOT: Lager-/Logistik-/Produktionshalle sowie Bürofläche - mit exzellenter Autobahnanbindung

Anfragen bisher

Premium

Meine Chancen

Premium

Fairer Preis

Premium

7.500 €

Kaltmiete

66459 Kirkel / Limbach bei Homburg (Saar)

Gewerblicher Anbieter

VON POLL IMMOBILIEN Homburg - Carsten Cherdron
Saarbrücker Straße 41
66424 Homburg

Details

Grundstücksfläche
15.000 m²
Lagerfläche
3.000 m²
Bürofläche
300 m²
Typ der Gewerbeimmobilie
Hallen / Lager / Produktion
Etagenzahl
1
Objektzustand
Gepflegt
Baujahr
1969

Kosten

Kaltmiete
7.500 €
Was kostet dein Umzug?

Objektbeschreibung

ANGEBOT: NUR JETZT BIS 31.08.2025 DIE LAGERFLÄCHE FÜR 7.500 € (netto) MIETEN!


Wir freuen uns, Ihnen diese vielseitig nutzbare Lager-/Logistik-/Produktionshalle mit großzügigen Büroflächen vorstellen zu dürfen. Das massiv gebaute Objekt bietet Ihnen ideale Voraussetzungen für effiziente Arbeitsabläufe und eine exzellente Verkehrsanbindung.


Hierbei können Sie entweder nur die Lagerhalle, eine Ausstellungshalle oder nur die Büroräumlichkeiten oder das gesamte Areal anmieten.


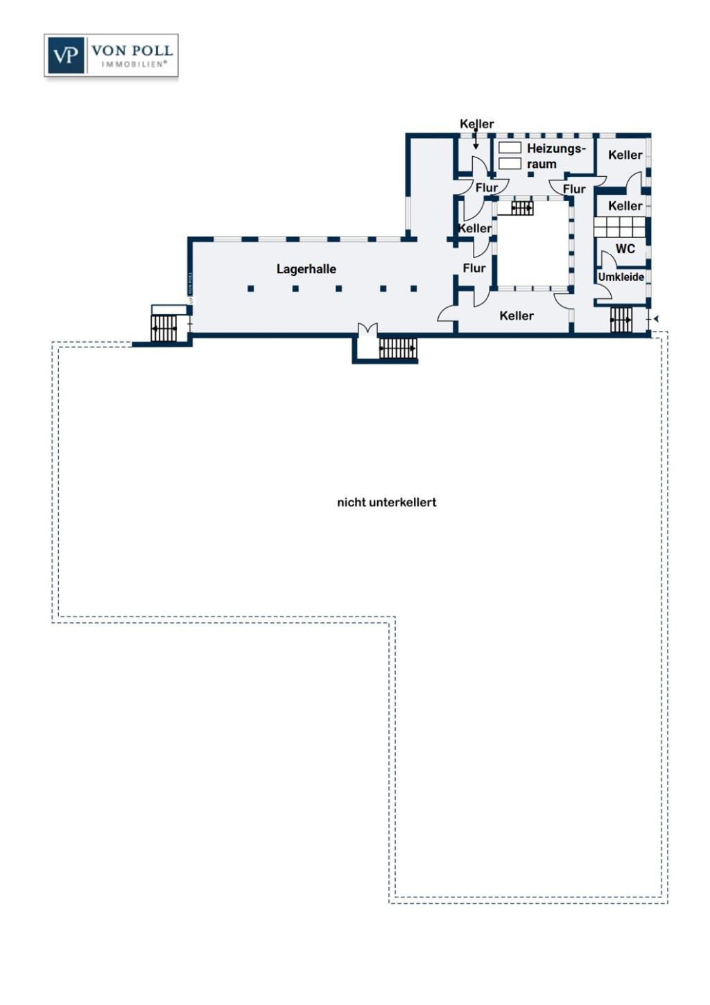
Die kleine Halle ist 29 x 34 m groß und umfasst ca. 1.000 m2. Die größere Halle ist 29 x 69 m groß und hat eine Fläche von 2.000 m2. Beide Hallen sind direkt miteinander verbunden, so dass insgesamt ca. 3.000 m2 zur Verfügung stehen.
Sie verfügt über eine Zugbandhöhe von 2,85 m und eine Gesamthöhe der Halle 6,20 m.
Hierbei haben Sie über 9 Verladungstore Zugang.


Zusätzlich stehen Ihnen zwei Ausstellungs-/Lagerhallen mit ca. 300 m2 zur Verfügung.


Die Büro- und Verwaltungsräume erstrecken sich über ca. 600 m² und bieten Ihnen und Ihrem Team eine komfortable und produktive Arbeitsumgebung. Die 10 Büroräume sind flexibel nutzbar und können individuell an Ihre Bedürfnisse angepasst werden.


Besonderheiten:



  • Massivbauweise für höchste Stabilität und Langlebigkeit

  • Runddachkonstruktion für optimierte Raumnutzung und Beleuchtung

  • 9 Verladungstore ermöglichen eine reibungslose Be- und Entladung

  • Nahe gelegene Autobahnanbindung zur A6 und A8 erleichtert den Logistikprozess


Diese Immobilie ist ideal für Unternehmen, die eine vielseitig nutzbare Halle mit umfangreichen Büroflächen suchen. Die exzellente Lage, die großzügigen Flächen und die durchdachte Bauweise bieten Ihnen optimale Bedingungen für Ihre logistischen und produktiven Tätigkeiten.


Die verkehrsgünstige Anbindung, das lebendige Umfeld und die vielfältigen Versorgungsmöglichkeiten machen diesen Standort besonders attraktiv für Gewerbebetriebe aus verschiedenen Branchen.


Für weitere Informationen oder zur Vereinbarung eines Besichtigungstermins stehen wir Ihnen jederzeit gerne zur Verfügung. Nutzen Sie die Chance und machen Sie diese Immobilie zu Ihrem neuen Unternehmensstandort!


Zum Zeitpunkt der Anzeigenerstellung lag kein Energieausweis vor. Dieser wird gerade erstellt.


Bausubstanz & Energieausweis

Objektzustand
Gepflegt
Heizungsart
Sonstige
Energieausweis
Laut Gesetz nicht erforderlich

Ausstattung


  • Lager-/Logistik-/Produktionshalle mit ca. 3.000 m2

  • Zwei Ausstellungs-/Lagerhallen mit ca. 300 m2

  • 9 Verladungstore

  • 10 Büroräume

  • Verwaltungsräume ca. 600 m2

  • 2 km Entfernung zum BAB-Kreuz ( A6 und A8 )


Lagebeschreibung

Die Gewerbehalle befindet sich in einer attraktiven und verkehrsgünstigen Lage. Der Ortsteil Limbach ist neben Kirkel-Neuhäusel und Altstadt einer der drei Ortsteile der Gemeinde Kirkel im saarländischen Saarpfalz-Kreis.
Limbach ist ein aufstrebender Ort mit einer wachsenden Infrastruktur, ideal für geschäftliche Aktivitäten. Die unmittelbare Umgebung ist geprägt von einer Mischung aus Gewerbe- und Wohngebieten, die eine lebendige und dynamische Atmosphäre schaffen.


In wenigen Minuten gelangt man zur Autobahnanbindung A6 Richtung Mannheim / Saarbrücken bzw. zur Autobahn A8 Neunkirchen / Pirmasens. Auch der Bahnhof Limbach (bei Homburg, Saar) befindet sich in unmittelbarer Nähe.


Wohnung finden so einfach wie möglich - das ist unsere Mission!

Kostenlose Basic Features

0 € monatlich


  • Individuelles Such-Profil anlegen
  • Suchaufträge speichern
  • One-Klick Kontaktaufnahme

alles anzeigen

Jetzt kostenlos anmelden

Premium Features

19,99 € monatlich


  • Alle kostenlosen Features
  • Smart-Alarm per Whatsapp
  • Deine Chancen checken
  • Wohngegend analysieren

alles anzeigen

Jetzt Premium freischalten

Gewerblicher Anbieter

VON POLL IMMOBILIEN Homburg - Carsten Cherdron
Saarbrücker Straße 41
66424 Homburg

Wohnglück-ID:
Objekt-Nr.:
WGL-646664
24 309 6080