Doppelhaushälfte in Norderstedt

Balkon/­Terrasse
Gäste WC
Keller
Einbauküche
Garage/­Stellplatz

Ruhig und zentral nach Norderstedt-Mitte

Anfragen bisher

Premium

Meine Chancen

Premium

Fairer Preis

Premium

599.000 €

Kaufpreis

104 m²

5 Zi.

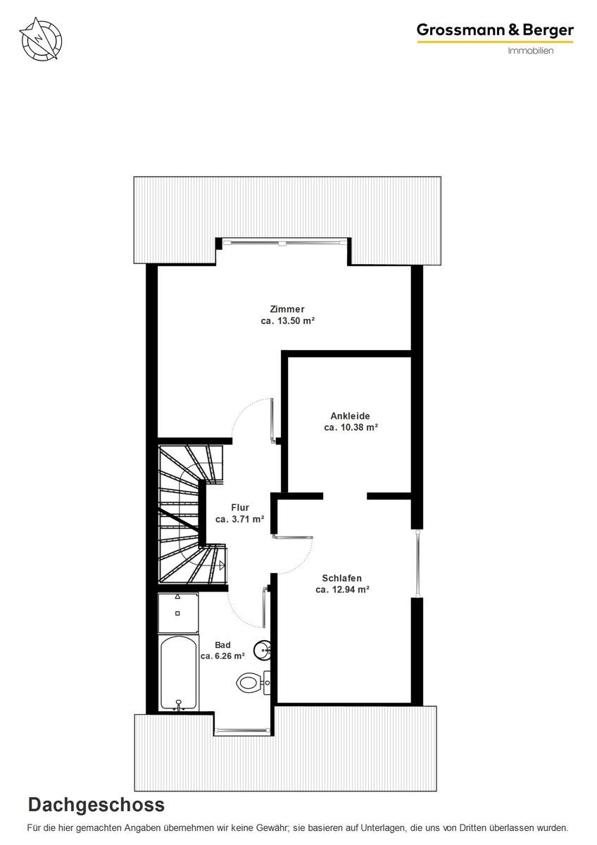
Grundriss

22844 Norderstedt

Gewerblicher Anbieter

Grossmann & Berger GmbH
Rathausallee 27a
22846 Norderstedt

Details

Grundstücksfläche
262 m²
Zimmerzahl
5
Haustyp
Doppelhaushälfte
Nutzfläche
72 m²
Bezugsfrei ab
nach Vereinbarung
Anzahl Badezimmer
1
Anzahl Garage/ Stellplatz
1
Baujahr
2001

Kosten

Kaufpreis
599.000 €
Käuferprovision
3,57 % inkl. MwSt.
Was kostet dein Umzug?

Stellplätze

Stellplatztyp
Carport
Anzahl
1

Objektbeschreibung

Diese charmante Doppelhaushälfte wurde im Jahr 2001 auf einem ca. 262 m² großen Grundstück errichtet und bietet Ihnen ein Zuhause mit einer Wohnfläche von ca. 104 m² sowie einer zusätzlichen Nutzfläche von ca. 72 m².


Die Immobilie befindet sich in einem äußerst gepflegten Zustand und besticht durch seine gute Ausstattung. Hierzu zählen unter anderem eine Fußbodenheizung, elektrische Außenrollläden sowie eine überdachte Terrasse, die zum Verweilen im Freien einlädt.


Abgerundet wird dieses Angebot durch einen Doppelcarport, welcher sich durch ein praktisches Rolltor sicher verschließen lässt – ideal für Ihre Fahrzeuge und zusätzlichen Stauraum.


Bausubstanz & Energieausweis

A+

A

B

C

D

129,27 kWh/(m²*a)

E

F

G

H

Baujahr
2001
Wesentlicher Energieträger
GAS
Heizungsart
Zentralheizung
Befeuerung
Gasheizung
Energieausweis
liegt vor
Energieausweistyp
Bedarfsausweis
Gültig bis
20.05.2035
Energieeffizienzklasse
D
Endenergiebedarf
129,27 kWh/(m²*a)

Ausstattung

Die Doppelhaushälfte verfügt über vier Zimmer, verteilt auf Erdgeschoss, Dachgeschoss und einen ausgebauten Spitzboden. Zusätzlich ist das Haus voll unterkellert.


Im Erdgeschoss befinden sich ein großzügiger Wohn- und Essbereich mit Zugang zur überdachten Terrasse, eine separate Küche sowie ein Gäste-WC und ein Garderobenbereich.


Das Dachgeschoss bietet zwei Schlafzimmer, ein Ankleidezimmer und ein Badezimmer mit Fenster.


Der Spitzboden ist ausgebaut und bietet zusätzlichen Raum, der flexibel genutzt werden kann.


Der Vollkeller umfasst mehrere Räume, darunter einen Heizungsraum und eine Infrarotsauna, was zusätzlichen Stauraum und Entspannungsmöglichkeiten bietet.


Lagebeschreibung

In zentraler und sehr beliebter Lage von Norderstedt-Mitte befindet sich in einer Wohnstraße diese Doppelhaushälfte.


Die Lage zeichnet sich durch seine Ruhe und doch seine sehr gute Infrastruktur aus. Die Anbindung an den öffentlichen Nahverkehr ist durch die nur wenige Gehminuten entfernt gelegene Bahnstation "Norderstedt-Mitte" der Linie U1 gewährleistet.


Einkaufsmöglichkeiten für die Dinge des täglichen Bedarfs finden Sie fußläufig sowohl am Harksheider Markt als auch in Norderstedt-Mitte.


Ein direkt angrenzender Park bietet im Gegenzug Ruhe und die Möglichkeit für einen kleinen Spaziergang.


Zahlreiche Angebote für die Freizeitgestaltung bzw. sportliche Betätigung sowie unterschiedliche Schulformen befinden sich in der näheren Umgebung.


Wohnung finden so einfach wie möglich - das ist unsere Mission!

Kostenlose Basic Features

0 € monatlich


  • Individuelles Such-Profil anlegen
  • Suchaufträge speichern
  • One-Klick Kontaktaufnahme

alles anzeigen

Jetzt kostenlos anmelden

Premium Features

19,99 € monatlich


  • Alle kostenlosen Features
  • Smart-Alarm per Whatsapp
  • Deine Chancen checken
  • Wohngegend analysieren

alles anzeigen

Jetzt Premium freischalten

Gewerblicher Anbieter

Grossmann & Berger GmbH
Rathausallee 27a
22846 Norderstedt

Wohnglück-ID:
Objekt-Nr.:
WGL-640276
WB 5054