Büro / Praxen in Karben (Groß-Karben)

Aufzug
Balkon/­Terrasse
Keller
Einbauküche
Garage/­Stellplatz

WRS Immobilien - Karben - direkt im Zentrum - barrierefreie Bürofläche / Praxisfläche mit Aufzug

Anfragen bisher

Premium

Meine Chancen

Premium

Fairer Preis

Premium

299.000 €

Kaufpreis

61184 Karben

Gewerblicher Anbieter

WRS REAL ESTATE GROUP Inc. - WRS Immobilien
Oberdorfelder Strasse 60
61138 Niederdorfelden

Details

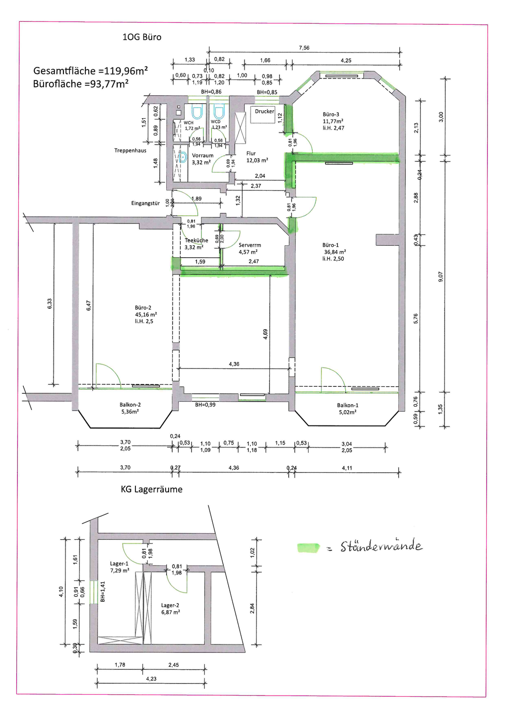
Bürofläche
119,96 m²
Zimmerzahl
2
Typ der Gewerbeimmobilie
Büro / Praxen
Bezugsfrei ab
sofort
Anzahl Garage/ Stellplatz
1
Objektzustand
Neuwertig
Baujahr
1986

Kosten

Kaufpreis
299.000 €
Hausgeld
768,13 €
Käuferprovision
5,95 % des protokollierten Kaufpreises
Für den Fall des erfolgreichen Nachweises der Immobilie und den Abschluss eines notariellen Kaufvertrages verpflichtet sich der Käufer zur Zahlung der folgenden Provision: Der Käufer bezahlt im Erfolgsfall eine Käufer-Provision in Höhe von 5,95 % inkl. MwSt. vom beurkundeten Kaufpreis. Die Käufer-Provision ist verdient und fällig mit der Beurkundung des notariellen Kaufvertrages.
Was kostet dein Umzug?

Stellplätze

Stellplatztyp
Freiplatz
Anzahl
2

Objektbeschreibung

Gebäude mit 12 Wohneinheiten und 1 Gewerbeeinheit. Das Haus verfügt über einen Aufzug, daher sind die Räumlichkeiten im 1. OG barrierefrei zu erreichen.


Die Gesamtfläche beläuft sich auf ca. 120 m², aufgeteilt auf 2 große Räume mit 4 großzügig ausgestatteten Arbeitsplätzen.


Die Fläche kann in 2 Einheiten mit je ca. 60 m² geteilt werden


Nutzbar als Büro oder auch Praxis.


Zu der Einheit gehören 2 Außen-Stellplätze.


Bausubstanz & Energieausweis

Objektzustand
Neuwertig
Wesentlicher Energieträger
Gas
Heizungsart
Zentralheizung
Befeuerung
Gasheizung
Energieausweis
liegt vor
Energieausweistyp
Verbrauchsausweis
Ausstellungsdatum
02.10.2019
Gültig bis
01.10.2029

Ausstattung

• Fläche: ca. 120 m², flexibel nutzbar
• Bürofläche komplett klimatisiert
• Baujahr: 1986
• Aufteilung: 2 große Büroräume mit jeweils 4 großzügig ausgestatten Arbeitsplätzen, Besprechungsraum,
Diele, getrennte WC’s für Damen und Herren mit Vorraum, Teeküche, 2 Kellerräume
• Sanitär: gepflegte getrennte WC-Anlagen
• Teeküche: voll ausgestattete Teeküche mit Mikrowelle, Kühlschrank, Hängeschränken Spüle und Geschirrspüler
• Fenster: Holz, sehr guter Zustand, groß, doppelt verglast
• Netzwerk: Strukturierte Verkabelung
• Aufzug: direkter Zugang vom EG
• Stellplätze: 2 PKW-Stellplätze im Hof
• Zustand: Sehr gepflegt
• Teilbarkeit: Nach geringem Umbau in zwei separate Einheiten möglich


Lagebeschreibung

Die Büro-/Praxisfläche befindet sich in direkter Zentrumslage von Karben. Öffentliche Verkehrsmittel sind in unmittelbarer Nähe.
Bushaltestelle ist direkt vor dem Gebäude, die S-Bahn-Station ist in ca. 5 Minuten zu Fuß zu erreichen.


Alle Einrichtungen, Einkaufsmöglichkeiten und gastronomische Angebote sind in unmittelbarer Nähe:


Einkaufsmöglichkeiten: Aldi, REWE, tegut, KIK, Tedi, Netto, Fristo Getränke, Bäcker, Apotheke usw.


Vor dem Gebäude befindet sich ein öffentlicher Parkplatz, direkt vor dem Karbener Rathaus.


Sonstige Angaben

Die Bürofläche ist mit hochwertigen Büromöbeln von König & Neurath ausgestattet. Diese können gerne bei Bedarf gegen Abstand übernommen werden.


Wohnung finden so einfach wie möglich - das ist unsere Mission!

Kostenlose Basic Features

0 € monatlich


  • Individuelles Such-Profil anlegen
  • Suchaufträge speichern
  • One-Klick Kontaktaufnahme

alles anzeigen

Jetzt kostenlos anmelden

Premium Features

19,99 € monatlich


  • Alle kostenlosen Features
  • Smart-Alarm per Whatsapp
  • Deine Chancen checken
  • Wohngegend analysieren

alles anzeigen

Jetzt Premium freischalten

Gewerblicher Anbieter

WRS REAL ESTATE GROUP Inc. - WRS Immobilien
Oberdorfelder Strasse 60
61138 Niederdorfelden

Wohnglück-ID:
Objekt-Nr.:
WGL-636136
1923