Gewerbe-Grundstück in Pinneberg

Gäste WC
Keller

Mischgebiet! Tolles Grundstück mit Bestandsimmobilie zu verkaufen

Anfragen bisher

Premium

Meine Chancen

Premium

Fairer Preis

Premium

499.999 €

Kaufpreis

25421 Pinneberg

Gewerblicher Anbieter

Borchert Immobilien GmbH
Königstraße 17
25335 Elmshorn

Details

Grundstücksfläche
833 m²
Typ des Grundstücks
Gewerbe-Grundstück
Bezugsfrei ab
ab sofort

Kosten

Kaufpreis
499.999 €
Was kostet dein Umzug?

Objektbeschreibung

Mischgebiet! In absolut zentraler Lage von Pinneberg steht dieses Grundstück mit ca. 833 m², bebaut mit einem Bungalow aus dem Jahre 1972, zum Verkauf!


Ausgestattet mit einer kleinen Küche, zwei Schlafzimmern sowie einem Familienbad und Gäste-WC erwartet Sie in diesem Objekt ein großzügiges Wohnzimmer mit angrenzendem Kaminzimmer! Die allgemeine Ausstattung ist eher einfach gehalten und bedarf an einigen Stellen, wie z.B. Küche und Bäder, einer Neugestaltung. Auch die Erneuerung der Elektrik ist zu überdenken. Die Bodenbeläge im Wohnzimmer und in den Schlafräumen wurden bereits erneuert.


An der Elmshorner Straße wurden in der Vergangenheit Neubauten in Form von Mehrfamilienhäusern generiert, sodass auch hier ein Abriss der Bestandsimmobilie und ein Neubau unter Berücksichtigung des gültigen B-Plans (Mischgebiet) denkbar wäre.
Die vordere Fläche könnte sich ggf. auch als Stellfläche für den PKW Verkauf eignen.


Bausubstanz & Energieausweis

A+

A

B

C

D

E

F

179,8 kWh/(m²*a)

G

H

Baujahr
1972
Wesentlicher Energieträger
OEL
Heizungsart
Sonstige
Energieausweis
liegt vor
Energieausweistyp
Bedarfsausweis
Gültig bis
14.01.2025
Energieeffizienzklasse
F
Endenergiebedarf
179,8 kWh/(m²*a)

Ausstattung


  • Mischgebiet mit gewerblicher Nutzung möglich

  • Garage mit elektrischem Tor

  • Teilkeller mit Ölheizung

  • Kaminzimmer

  • Außenrollläden (tlw. elektrisch)

  • einfache Küchenausstattung

  • zwei Schlafzimme, Gäste-WC, Bad mit Dusche und Wanne

  • Feuchtigkeit an der Decke im Kaminzimmer und im Keller


Lagebeschreibung

Die pulsierende Kreisstadt Pinneberg vor den Toren Hamburgs zählt rund 42.000 Einwohner und bietet ein umfangreiches Freizeit- und Sportangebot für Jung und Alt. Außerdem besteht eine Vielzahl von Ärzten und Einkaufsmöglichkeiten über den täglichen Bedarf hinaus. Sämtliche Schulformen sowie Kindertagesstätten sind ebenfalls vorhanden.


Über die Anschlussstelle der A23, die Bundesbahnstrecke Kiel/ Flensburg und die S-Bahn-Anbindung nach Hamburg ist Pinneberg sehr gut in das überregionale Verkehrsnetz eingebunden.


Sonstige Angaben

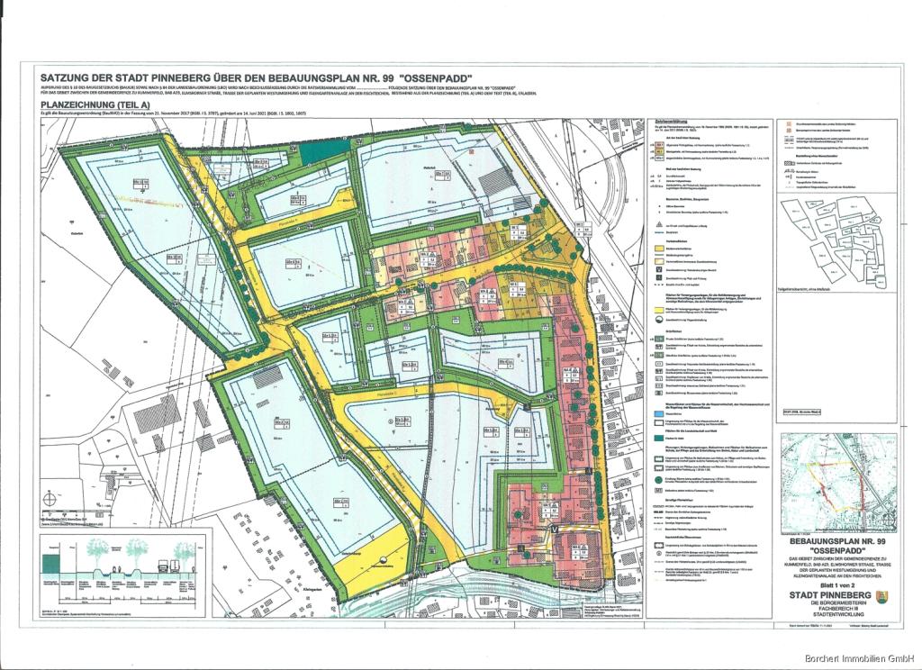
Der B-Plan Entwurf Nr. 99 setzt eine Bebauung mit Einzel- oder Doppelhausbebauung mit maximal 8 Einheiten fest, die Baugrenzen sind einzuhalten.
GRZ 0,2


Gebäudeenergiegesetz (GEG) - Hinweispflicht des Maklers


Mir ist bekannt, dass abhängig vom Alter der Immobilie, der Art des Gebäudes, der Nutzungsart und den bisherigen Instandhaltungs- und/oder Instandsetzungsarbeiten des bisherigen Eigentümers Pflichten zur Sanierung nach dem Gebäudeenergiegesetz (GEG) binnen zwei Jahren ab Eigentumswechsel bestehen können, um die energetischen Voraussetzungen des GEG zu erfüllen.
Dazu gehören u.a. die Dämmung der Geschossdecken, § 47 GEG, die Dämmung von Rohren, § 69 GEG, sowie die Modernisierung der Heizungsanlage, §§ 71, 72 GEG.


Ich bestätige, dass ich den Hinweis des Maklers zur Kenntnis genommen habe, dass die Hinzuziehung eines Energieberaters zwecks Prüfung von Sanierungspflichten nach dem GEG sowie deren Kostenumfang empfohlen wird.


Wohnung finden so einfach wie möglich - das ist unsere Mission!

Kostenlose Basic Features

0 € monatlich


  • Individuelles Such-Profil anlegen
  • Suchaufträge speichern
  • One-Klick Kontaktaufnahme

alles anzeigen

Jetzt kostenlos anmelden

Premium Features

19,99 € monatlich


  • Alle kostenlosen Features
  • Smart-Alarm per Whatsapp
  • Deine Chancen checken
  • Wohngegend analysieren

alles anzeigen

Jetzt Premium freischalten

Gewerblicher Anbieter

Borchert Immobilien GmbH
Königstraße 17
25335 Elmshorn

Wohnglück-ID:
Objekt-Nr.:
WGL-633910
Objekt-Nr.3307