Einfamilienhaus freistehend in Wörth (Hofsingelding)

Balkon/­Terrasse
Einliegerwohnung
Gäste WC
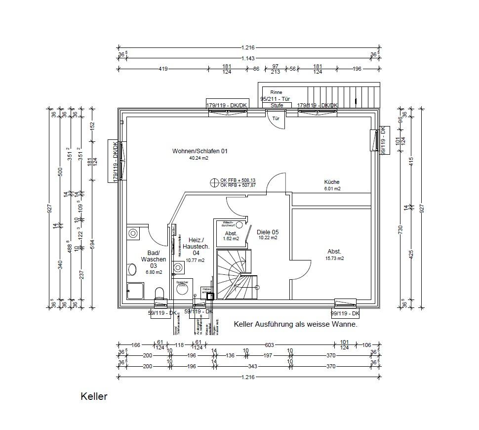
Keller
Einbauküche
Garage/­Stellplatz

"VIEL PLATZ FÜR DIE FAMILIE - MIT SCHÖNER EINLIEGERWOHNUNG"

Anfragen bisher

Premium

Meine Chancen

Premium

Fairer Preis

Premium

1.299.000 €

Kaufpreis

251,72 m²

6 Zi.

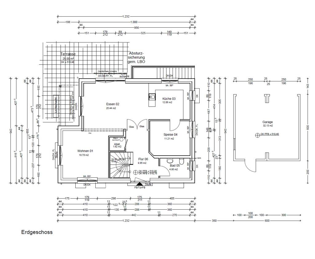
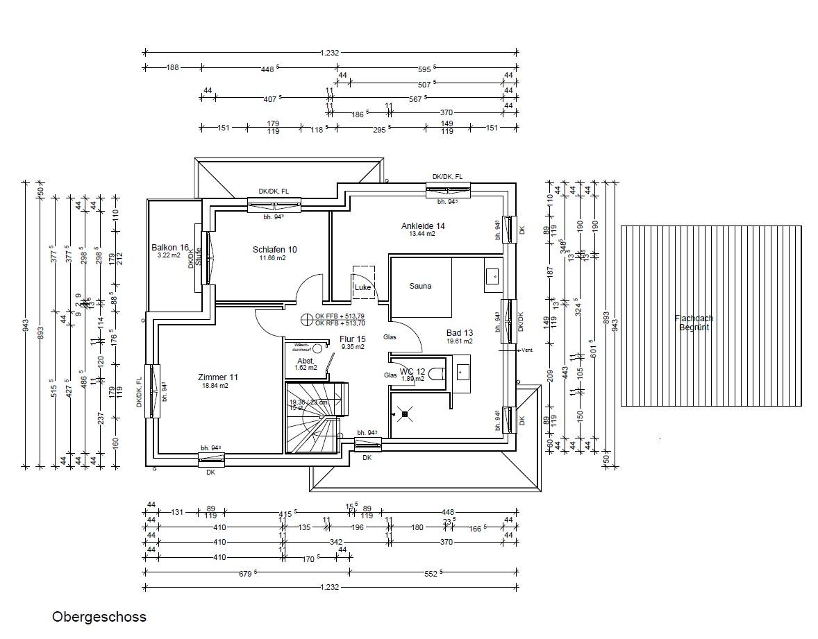
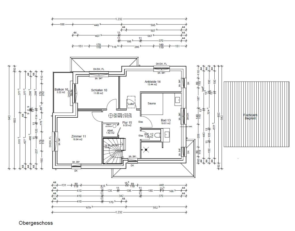
Grundriss

85457 Wörth

Gewerblicher Anbieter

VR-Immobilien Erding GmbH
Thomas-Wimmer-Str. 33
85435 Erding

Details

Grundstücksfläche
960 m²
Zimmerzahl
6
Haustyp
Einfamilienhaus freistehend
Bezugsfrei ab
sofort
Anzahl Schlafzimmer
3
Anzahl Badezimmer
2
Anzahl Garage/ Stellplatz
2
Objektzustand
Neuwertig
Baujahr
2012

Kosten

Kaufpreis
1.299.000 €
Käuferprovision
2,38%
Was kostet dein Umzug?

Stellplätze

Stellplatztyp
Freiplatz
Anzahl
3
Stellplatztyp
Garage
Anzahl
2

Objektbeschreibung

Dieses exklusive und besondere Einfamilienhaus im Villen-Stil wurde im Jahr 2012 errichtet.
Über eine mit neuester Schließtechnik ausgestatteten Haustüre gelangen Sie in das Erdgeschoss des Hauses, hier befindet sich der große Wohn-, Koch- und Essbereich sowie eine geräumige Gästetoilette. Die großen Fensterfronten verleihen dem Wohn- und Essbereich eine luftige und helle Atmosphäre. Angrenzend zur Küche befindet sich eine geräumige Speisekammer. Durch die Entfernung der Wand ließe sich die Küche problemlos vergrößern. Vom Keller bis zum Obergeschoss befindet sich neben der Treppe ein Abstellraum, der mit einem Aufzug ausgestattet werden könnte. Die Geschosse werden mit einer formschönen Echtholztreppe verbunden. Im Obergeschoss befinden sich die beiden Schlafzimmer und ein Arbeitszimmer sowie das große Badezimmer mit begehbarer Dusche, zwei Waschbecken und einer Sauna. Anstelle der Sauna könnte aber auch eine Badewanne installiert werden, da die Anschlüsse dafür bereits vorhanden sind. Im Kellergeschoss wurde der Technikraum mit Waschmaschinenanschluss, ein Gästezimmer und eine separate Einliegerwohnung mit Einbauküche und Badezimmer untergebracht. Die Einliegerwohnung kann über eine Außentreppe und eine eigene Eingangstüre erreicht werden. Das Haus ist in den Wohnräumen mit wunderschönen Fliesen in Holzoptik ausgestattet. Eingangsbereich und Gästetoilette erhielten hochwertige Natursteinfliesen. Die beiden Badezimmer im Obergeschoss und in der Einliegerwohnung wurden modern in den Farben Weiß und Anthrazit gefliest. Alle Etagen sind mit einer zeitgemäßen Fußbodenheizung ausgestattet, die über zwei moderne Luft-Wärmepumpen gespeist wird. Hier haben wir die Besonderheit, dass das Heizsystem auf Wärmen und bei Bedarf auf Kühlen umgestellt werden kann. In den dreifachverglasten Fenstern wurde eine Zwangsbelüftung verbaut. Im Keller des Hauses ist eine Entkalkungsanlage installiert. Die nach Süden ausgerichtete Terrasse bietet einen entspannenden Blick auf den schön angelegten Garten und den Gartenteich. Die äußerst praktische Gartenbewässerung wird über eine Zisterne versorgt. Ein schöner Jacuzzi - perfekt für den Wellnessurlaub zu Hause- sowie eine praktische Gartenhütte zum Abstellen von Geräten und Fahrrädern runden den Außenbereich perfekt ab.
Die Immobilie zeichnet sich durch ihre energieeffiziente Bauweise aus (Holzrahmenbau mit beidseitigem Fermacell beplankt) und verfügt über die Energieeffizienzklasse A+. Das Einfamilienhaus bietet somit nicht nur viel Platz, sondern auch ein angenehmes Wohnklima mit niedrigen Energiekosten. Insgesamt präsentiert sich dieses Haus als ideales Zuhause für eine Familie, die modernes und komfortables Wohnen in einer ruhigen Nachbarschaft schätzt.


Dieses Angebot wird ergänzt durch eine Doppelgarage mit elektrischen Garagentoren und drei Außenstellplätzen, die von Besuchern oder zum Abstellen eines Wohnmobils etc. genutzt werden können.


Bausubstanz & Energieausweis

A+

A

B

C

D

E

F

G

H

Baujahr
2012
Objektzustand
Neuwertig
Wesentlicher Energieträger
Wärmepumpe
Heizungsart
Wärmepumpe
Befeuerung
Wärmepumpe
Energieausweis
liegt vor
Energieausweistyp
Verbrauchsausweis
Ausstellungsdatum
21.04.2024
Gültig bis
20.04.2034
Energieverbrauchskennwert
16 kWh/(m²*a)
Energieeffizienzklasse
A+

Lagebeschreibung

Dieses Objekt befindet sich in der Gemeinde Wörth im Ortsteil Hofsingelding. Hier verbindet sich ländlicher Charme mit moderner Infrastruktur. Durch die gute Verkehrsanbindung sind umliegende Städte und Gemeinden schnell erreichbar. Besonders die Nähe zum Flughafen bietet für Vielreisende eine optimale Anbindung. Diesen erreichen Sie mit dem PKW in ca. 19 Minuten Fahrtzeit. Zum Hauptbahnhof München gelangen Sie mit dem PKW über den Autobahnanschluss A94 in ca. 34 Minuten Fahrtzeit oder über den nahe gelegenen S-Bahn-Anschluss (S2) St.-Koloman-Straße in ca. 45 Minuten Fahrtzeit. In ca. 10 Minuten Fahrtzeit mit dem PKW erreichen Sie die Stadt Erding, dort finden Sie Geschäfte des täglichen Bedarfs, Cafés, Restaurants und vieles mehr. Ein weiterer Vorteil für Wander- und Skibegeisterte ist die Nähe zu den Bergen.


Sonstige Angaben

Die Käuferprovision in Höhe von 2,38% inkl. MwSt. vom beurkundeten Kaufpreis, ist verdient und fällig mit notarieller Beurkundung. Wir haben mit dem Verkäufer einen provisionspflichtigen Maklervertrag in gleicher Höhe abgeschlossen."


Wohnung finden so einfach wie möglich - das ist unsere Mission!

Kostenlose Basic Features

0 € monatlich


  • Individuelles Such-Profil anlegen
  • Suchaufträge speichern
  • One-Klick Kontaktaufnahme

alles anzeigen

Jetzt kostenlos anmelden

Premium Features

19,99 € monatlich


  • Alle kostenlosen Features
  • Smart-Alarm per Whatsapp
  • Deine Chancen checken
  • Wohngegend analysieren

alles anzeigen

Jetzt Premium freischalten

Gewerblicher Anbieter

VR-Immobilien Erding GmbH
Thomas-Wimmer-Str. 33
85435 Erding

Wohnglück-ID:
Objekt-Nr.:
WGL-633768
1741#OPpuo5