Etagenwohnung in Kaltenkirchen

Aufzug
Balkon/­Terrasse
Keller
Einbauküche

Lichtdurchflutete 2 Zimmerwohnung

Anfragen bisher

Premium

Meine Chancen

Premium

Fairer Preis

Premium

770 €

Kaltmiete

72,87 m²

2 Zi.

2. OG

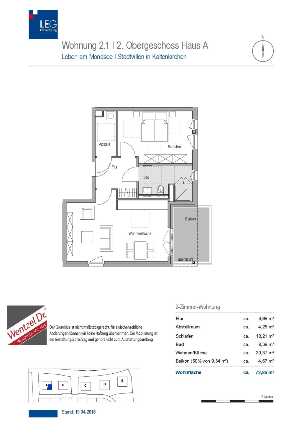
Grundriss

Am Mondsee 1
24568 Kaltenkirchen

Gewerblicher Anbieter

Wentzel Dr. Immobilienmanagement GmbH
Stresemannallee 102-104
22529 Hamburg

Details

Zimmerzahl
2
Wohnungstyp
Etagenwohnung
Etage, Geschoss
2
Bezugsfrei ab
01.09.2025
Objektzustand
Neuwertig
Baujahr
2019

Kosten

Kaltmiete
770 €
Nebenkosten
325 €
Heizkosten
160 €
Kaution
2.310 €
Was kostet dein Umzug?

Bausubstanz & Energieausweis

Baujahr
2019
Objektzustand
Neuwertig
Wesentlicher Energieträger
FERN
Heizungsart
Fernwärme
Energieausweis
liegt vor
Energieausweistyp
Bedarfsausweis
Ausstellungsdatum
20.06.2019
Endenergiebedarf
63 kWh/(m²*a)

Ausstattung

Die barrierefreie Wohnung zeichnet sich durch eine zeitlos moderne und stilvolle Ausstattung aus. Die Wohnung ist mit einer hochwertigen Komfort-Einbauküchen der Marke "Hummelküchen" ausgestattet, welche über ein Glaskeramik-Kochfeld, eine Kühl-/ Gefrierkombination, Geschirrspülmaschine, Backofen und eine Umlufthaube verfügt.


Durch den Einbau von größtenteils bodentiefen Fenstern ist die Wohnung lichtdurchflutet und bieten ein hohes Maß an Helligkeit. Die Wohnräume verfügen über einen hochwertigen Designfußboden und über eine individuell steuerbare Fußbodenheizung. Das Badezimmer verfügt über eine Dusche sowie einem Fenster und ist mit großformatigen hellen Fliesen, modernen Armaturen, Spiegel, sowie einem Handtuchheizkörper ausgestattet.


Die Wohnung besitzt darüber hinaus über ein überdachten Balkon.
Telefon- und TV-Anschlüsse sind in allen Zimmern vorhanden. Die Anschlüsse für Waschmaschine und Trockner befinden sich im Abstellraum.


Im Untergeschoss des Hauses befinden sich die Fahrradstellplätze.
Zu jeder Wohnung gehört ein eigener Kellerraum.


Ein Tiefgaragenstellplatz gehört zur Wohnung muss für mtl. 60,00€ angemietet werden.


Bei den gezeigten Bildern im Exposé, handelt es sich um Beispielbilder aus dem Objekt.


Lagebeschreibung

Das Objekt besticht durch die idyllische ruhige Lage mit Blick ins Grüne. In Kaltenkirchen sind 22 hochwertige Neubau-Mietwohnungen mit einer schönen Aussicht entstanden. Die Stadt Kaltenkirchen liegt im Kreis Segeberg in Schleswig-Holstein und hat über 20.000 Einwohner. Kaltenkirchen liegt ca. 35 km nördlich von Hamburg an der A 7 sowie an der Regionalbahnlinie A1 der AKN.
Einkaufsmöglichkeiten für den täglichen Bedarf sowie Schulen, Ärzte und Spielplätze finden Sie in näherer Umgebung. Ein weiteres Highlight ist die nahegelegene Holsten Therme, welche innerhalb 5 Minuten mit dem Auto zu erreichen ist.


Sonstige Angaben

Bei Mietvertragsabschluss wird ein Kündigungsausschluss von einem Jahr und eine Indexmiete (erste Anpassung zum 01.01.2030) vereinbart.


Bitte nutzen Sie für Ihre Anfrage das Schnellkontaktformular auf dieser Seite. Sie erhalten dann umgehend ein Exposé mit weiteren Informationen.


Wohnung finden so einfach wie möglich - das ist unsere Mission!

Kostenlose Basic Features

0 € monatlich


  • Individuelles Such-Profil anlegen
  • Suchaufträge speichern
  • One-Klick Kontaktaufnahme

alles anzeigen

Jetzt kostenlos anmelden

Premium Features

19,99 € monatlich


  • Alle kostenlosen Features
  • Smart-Alarm per Whatsapp
  • Deine Chancen checken
  • Wohngegend analysieren

alles anzeigen

Jetzt Premium freischalten

Gewerblicher Anbieter

Wentzel Dr. Immobilienmanagement GmbH
Stresemannallee 102-104
22529 Hamburg

Wohnglück-ID:
Objekt-Nr.:
WGL-627648
5774.0007