Etagenwohnung in Ulm

Balkon/­Terrasse
derzeit vermietet
Keller

+++Gelegenheit! Ulm-Mitte, 4-Zi.-ETW, 117 m² Wfl., Balkon, vermietet+++

Anfragen bisher

Premium

Meine Chancen

Premium

Fairer Preis

Premium

660.000 €

Kaufpreis

117,22 m²

4 Zi.

2. OG

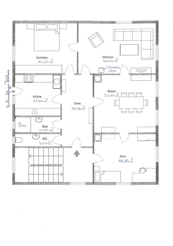
Grundriss

89073 Ulm

Gewerblicher Anbieter

VR-Bank Neu-Ulm eG
Hauptstraße 30
89233 Neu-Ulm

Details

Zimmerzahl
4
Wohnungstyp
Etagenwohnung
Etage, Geschoss
2
Etagenzahl
2
Bezugsfrei ab
Vermietet
Anzahl Badezimmer
1
Baujahr
1900

Kosten

Kaufpreis
660.000 €
Hausgeld
470 €
Käuferprovision
3,57 % inkl. MwSt.
Was kostet dein Umzug?

Objektbeschreibung

Altbaujuwel mitten in Ulm


Heute dürfen wir Ihnen diese charmante 4-Zi.-Altbauwohnung anbieten.
Die Wohnung befindet sich im 2. Obergeschoss eines 4-Familienhauses
und ist derzeit vermietet. Über die Konditionen des Mietverhältnisses
würden wir uns gerne persönlich mit Ihnen unterhalten.


Die Wohnung entfaltet einen Altbaucharme wie man es sich vorstellt:
Klinkerfassade
Holzdielen
Fischgrätparkett
Küche, Bad und WC hochwertiger PU Boden
Bad und WC ausgewählte italienische Wandfliesen
Kaminofen
Gasetagenbrennwertheizung
Raumhöhe ca. 2,94 m


Nachstehende Renovierungen/Sanierungen wurden bzw. werden durchgeführt:
Heizungsanlage, Heizungsrohre und Heizkörper ca. 2010
Zum Großteil Wasser- und Stromleitungen ca. 2010
Kunststoffisolierglasfenster ca. 2010
WC ca. 2010
Duschbad mit Regendusche ca. 2010 und ca. 2018
Bodengleiche Dusche ca. 1,38 m x 1,06 m
Schwedenofen und Kamininnenrohr ca. 2013
Dachsanierung ca. 2023
Fenster Treppenhaus ca. 2022/2023
Anbau Balkon Westseite, ca. 2,5 m x 3 m, April 2025


Dieser Wohnung sind zwei Kellerabteile, darunter ein Gewölbekeller,
sowie ein Speicherabteil im Dachgeschoss zugeordnet. An gemeinsamen
Räumen sind im Untergeschoss ein Waschraum und im Dachboden
eine Fläche zum Wäschetrocknen vorhanden.


Eine moderne Einbauküche inkl. Elektrogroßgeräte und Gasherd,
sowie der Kaminofen, sind im Kaufpreis bereits inkludiert.


Ein Pkw-Stellplatz und ein Fahrstuhl sind nicht vorhanden.


Bitte beachten Sie, dass die Innenaufnahmen vom vorherigen Nutzer stammen.


Mit wenigen Schritten erreichen Sie die Straßenbahn- und Bushaltestelle.
Durch die Innenstadtlage der Wohnung sind öffentliche Einrichtungen,
Kindergarten, Schulen, Einkaufsmöglichkeiten, Ärzte, Apotheken, Hauptbahnhof
und der Münsterplatz bequem erreichbar.


Bausubstanz & Energieausweis

A+

A

B

C

D

E

F

196,1 kWh/(m²*a)

G

H

Baujahr
1900
Wesentlicher Energieträger
GAS
Heizungsart
Etagenheizung
Energieausweis
liegt vor
Energieausweistyp
Bedarfsausweis
Gültig bis
07.10.2031
Energieeffizienzklasse
F
Endenergiebedarf
196,1 kWh/(m²*a)

Wohnung finden so einfach wie möglich - das ist unsere Mission!

Kostenlose Basic Features

0 € monatlich


  • Individuelles Such-Profil anlegen
  • Suchaufträge speichern
  • One-Klick Kontaktaufnahme

alles anzeigen

Jetzt kostenlos anmelden

Premium Features

19,99 € monatlich


  • Alle kostenlosen Features
  • Smart-Alarm per Whatsapp
  • Deine Chancen checken
  • Wohngegend analysieren

alles anzeigen

Jetzt Premium freischalten

Gewerblicher Anbieter

VR-Bank Neu-Ulm eG
Hauptstraße 30
89233 Neu-Ulm

Wohnglück-ID:
Objekt-Nr.:
WGL-625032
sch11608